Briar Close, Honiton, Devon, EX14
By Greenslade Taylor Hunt
£ 175,000
Reviews
3 out of 5 stars
Greenslade Taylor Hunt says ..
A one bedroom property in a quiet cul-de-sac location.
Property Oracle says ..
This is a one-bedroom end-of-terrace property located in Honiton, Devon. The property is in generally good condition, with a well-maintained garden. The location is convenient, with nearby schools and transportation options. The asking price of £175,000 seems reasonable considering the property’s size, condition, and location. The property is located close to Honiton train station.
Therefore, we give this property 7 / 10. *Disclaimer: This is our option and does constitute a recommendation or financial advice. Do your own research. *
- Price
- 8
- Condition
- 7
- Location
- 7
- Land
- 6
- Bedrooms
- 1
- Bathrooms
- 1
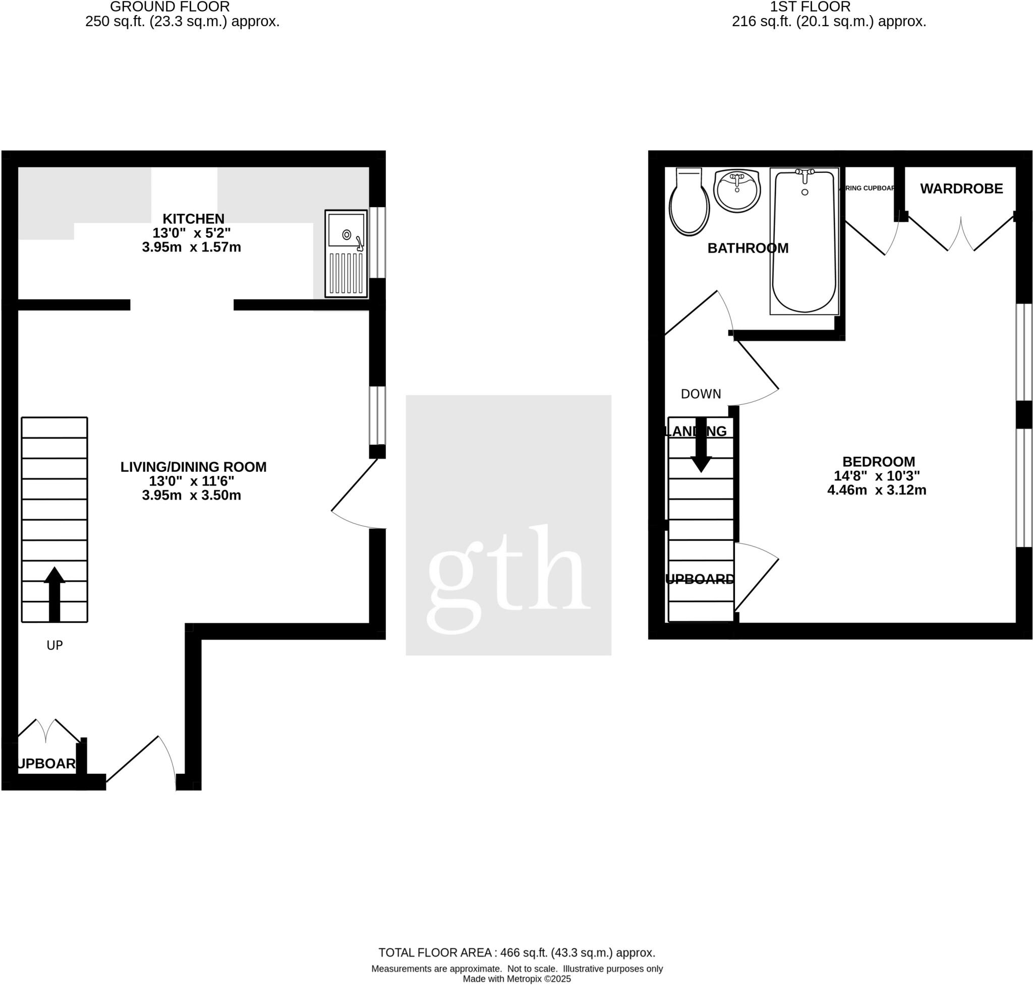
- Sqft (est)
- 466.08
The heatmap indicates the level of crime in the area. The color of the heatmap indicates the crime severity and recency.
Metrics Year-on-Year
- Average area value
- 322,500.00 £Increased by 7.16 %
- Est sale value
- 162,661.92 £Increased by 28.31 %
- Average area rental value
- 850.00 £/moDecreased by 16.58 %
- Est letting value
- 0.00 £/mo
- Est rental Yield
- 3.16 %Decreased by 22.17 %
- Crime Rate
- 3.00 %Unchanged by 0.00 %
Agent Activity
Greenslade Taylor Hunt created the listing.
Nearby Schools
| Name | Type | Ofsted | Distance |
|---|---|---|---|
| Honiton & District Children'S Centre | Children's Centre | 0.36 KM | |
| Littletown Primary Academy | Academy Converter | Good | 0.45 KM |
| Honiton Community College | Academy Converter | Good | 1.54 KM |
| Honiton Primary School | Community School | Requires improvement | 1.62 KM |
| Farway Church Of England Primary School | Voluntary Aided School | Good | 3.42 KM |
Images
Nearby Streets
| Name | Average Price | Average Sqft | Distance |
|---|---|---|---|
| Coombe Close | £ 0 | 0 | 0.00 KM |
| Dove Close | £ 550,000 | 0 | 0.00 KM |
| Avenue Mezidon-Canon | £ 412,500 | 0 | 0.00 KM |
| Weatherill Road | £ 0 | 0 | 0.00 KM |
| Hawthorn Close | £ 0 | 0 | 0.00 KM |
Nearby Transport
| Name | NLC | TLC | Distance |
|---|---|---|---|
| Honiton | 5717 | HON | 1.10 KM |
Nearby Listings
| Address | Price | Type | Score | Distance |
|---|---|---|---|---|
| Briar Close, Honiton, Devon, EX14 | £ 175,000 | BUY | 7 / 10 | 0.00 KM |
| Briar Close, Honiton, Devon, EX14 | £ 175,000 | BUY | 7 / 10 | 0.04 KM |
| Briar Close, Honiton, Devon | £ 179,950 | BUY | Unknown | 0.08 KM |
| Spindlewood Close, Honiton | £ 210,000 | BUY | 7 / 10 | 0.14 KM |
| Hazelwood Close, Honiton, EX14 | £ 275,000 | BUY | 7 / 10 | 0.16 KM |
Nearby Properties
| Address | Price | Distance |
|---|---|---|
| 3 Briar Close | £ 160,000 | 0.03 KM |
| 14 Briar Close | £ 108,000 | 0.03 KM |
| 12 Briar Close | £ 117,500 | 0.03 KM |
| 19 Briar Close | £ 142,000 | 0.03 KM |
| 1 Briar Close | £ 180,000 | 0.03 KM |