WI
Waghorn Road, Harrow, Middlesex, HA3
By Winkworth
£ 630,000
Reviews
3 out of 5 stars
Winkworth says ..
Nestled within a peaceful residential enclave in Harrow, this well-presented semi-detached family home offers generous living space and modern convenience in an area popular with families. Ideally situated close to local amenities, excellent transport links, and highly regarded schools, it provid...
Property Oracle says ..
Therefore, we give this property 6 / 10. *Disclaimer: This is our option and does constitute a recommendation or financial advice. Do your own research. *
- Price
- 5
- Condition
- 6
- Location
- 7
- Land
- 7
- Bedrooms
- 4
- Bathrooms
- 3
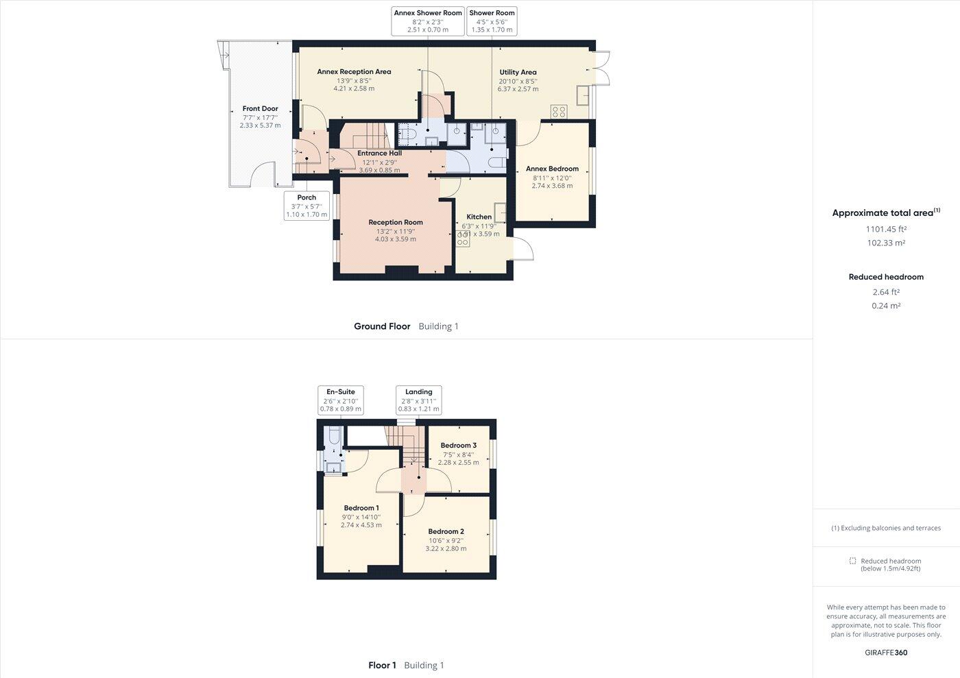
- Sqft (est)
- 1,256.58
The heatmap indicates the level of crime in the area. The color of the heatmap indicates the crime severity and recency.
Metrics Year-on-Year
- Average area value
- 341,429.00 £Increased by 9.95 %
- Est sale value
- 393,309.54 £Decreased by 25.65 %
- Average area rental value
- 875.00 £/moDecreased by 18.53 %
- Est letting value
- 0.00 £/moDecreased by 100.00 %
- Est rental Yield
- 3.08 %Decreased by 25.78 %
- Crime Rate
- 5.00 %Unchanged by 0.00 %
from 310,533.00 £
from 529,020.18 £
from 1,074.00 £/mo
from 1,256.58 £/mo
from 4.15 %
from 5.00 %
Agent Activity
Winkworth created the listing.
Nearby Schools
| Name | Type | Ofsted | Distance |
|---|---|---|---|
| Kenmore Park Children'S Centre | Children's Centre Linked Site | 0.17 KM | |
| Glebe Primary School | Community School | Outstanding | 0.31 KM |
| Kenmore Park Infant And Nursery School | Community School | Good | 0.34 KM |
| Kenmore Park Junior School | Community School | Good | 0.34 KM |
| Uxendon Manor Primary School | Community School | Good | 0.93 KM |
Images
Nearby Streets
| Name | Average Price | Average Sqft | Distance |
|---|---|---|---|
| Court Close | £ 0 | 0 | 0.00 KM |
| Glebe Lane | £ 355,000 | 0 | 0.00 KM |
| D'Arcy Drive | £ 0 | 0 | 0.00 KM |
| Westfield Drive | £ 0 | 0 | 0.00 KM |
| Kenton Park Parade | £ 185,000 | 0 | 0.00 KM |
Nearby Transport
| Name | NLC | TLC | Distance |
|---|---|---|---|
| Kenton | 1399 | KNT | 2.27 KM |
| South Kenton | 1453 | SOK | 2.61 KM |
| North Wembley | 1422 | NWB | 3.28 KM |
| Harrow And Wealdstone | 1397 | HRW | 3.92 KM |
| Wembley Central | 1423 | WMB | 4.39 KM |
Nearby Listings
| Address | Price | Type | Score | Distance |
|---|---|---|---|---|
| Waghorn Road, Harrow, Middlesex, HA3 | £ 630,000 | BUY | 6 / 10 | 0.00 KM |
| Waghorn Road, Harrow, HA3 | £ 615,000 | BUY | Unknown | 0.09 KM |
| Charlton Road, Kenton, HA3 9HN | £ 615,000 | BUY | 7 / 10 | 0.17 KM |
| Charlton Road, Harrow, HA3 | £ 500,000 | BUY | 5 / 10 | 0.23 KM |
| Westfield Gardens, Harrow, HA3 | £ 625,000 | BUY | 6 / 10 | 0.24 KM |
Nearby Properties
| Address | Price | Distance |
|---|---|---|
| 4 Waghorn Road | £ 60,000 | 0.01 KM |
| 38 Waghorn Road | £ 435,000 | 0.01 KM |
| 2 Waghorn Road | £ 245,000 | 0.01 KM |
| 16 Waghorn Road | £ 117,000 | 0.01 KM |
| 32 Waghorn Road | £ 259,000 | 0.01 KM |