Grove Mews, Garrison Lane, Felixstowe
By Diamond Mills & Co
£ 275,000
Reviews
3 out of 5 stars
Diamond Mills & Co says ..
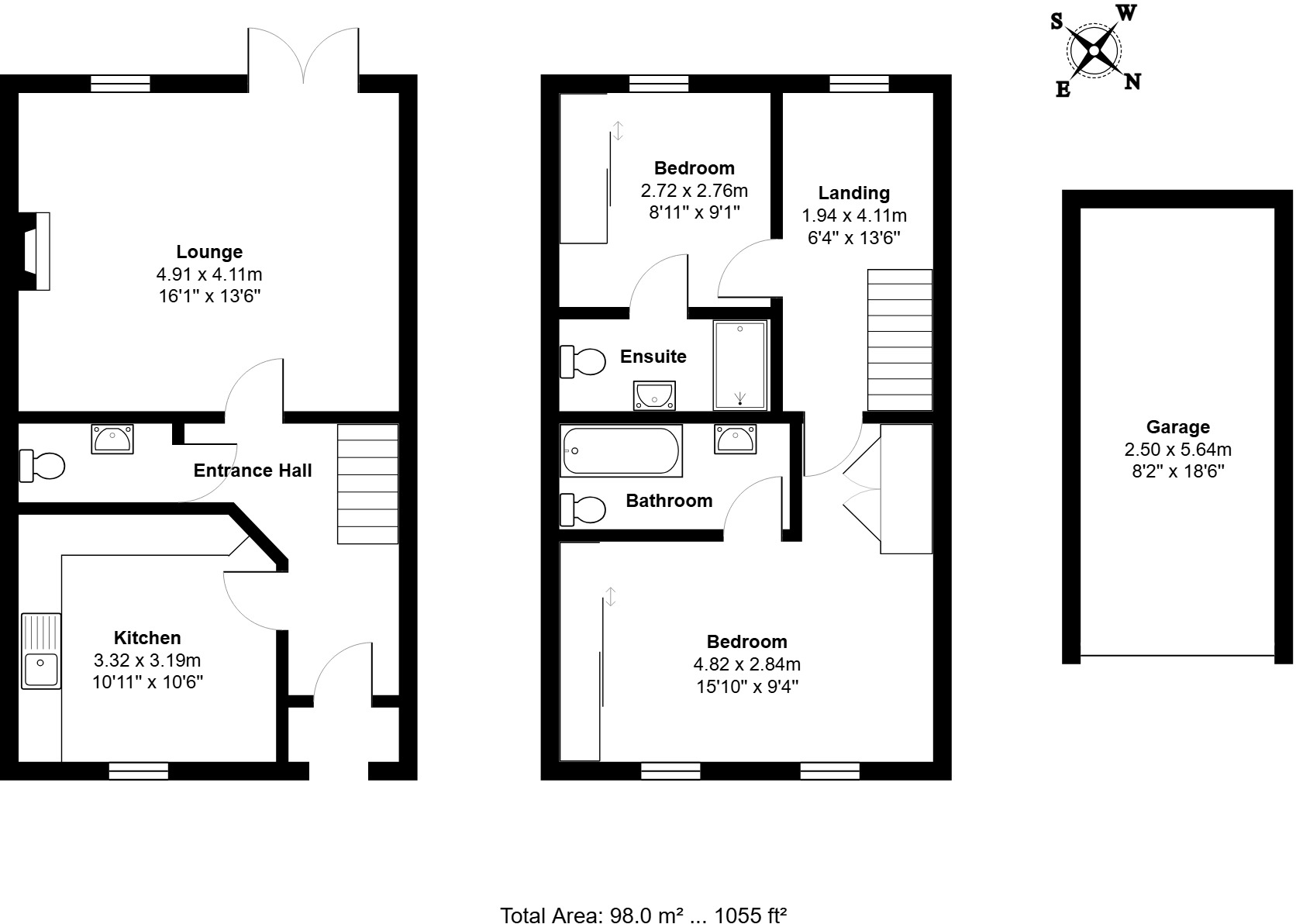
An exceptional terrace house within a gated development close to the Town Centre. The house has a living room, kitchen and cloakroom on the ground floor and two bedrooms, both with en-suites on the first floor. There is off road parking, a garage and sunny cottage garden to the South West. No onw...
Property Oracle says ..
Therefore, we give this property 7 / 10. *Disclaimer: This is our option and does constitute a recommendation or financial advice. Do your own research. *
- Price
- 9
- Condition
- 7
- Location
- 7
- Land
- 7
- Bedrooms
- 2
- Bathrooms
- 2
- Sqft (est)
- 1,054.86
The heatmap indicates the level of crime in the area. The color of the heatmap indicates the crime severity and recency.
Metrics Year-on-Year
- Average area value
- 302,328.00 £Increased by 25.92 %
- Est sale value
- 488,400.18 £Increased by 106.70 %
- Average area rental value
- 950.00 £/moDecreased by 3.85 %
- Est letting value
- 1,054.86 £/mo
- Est rental Yield
- 3.77 %Decreased by 23.68 %
- Crime Rate
- 6.00 %Unchanged by 0.00 %
from 240,090.00 £
from 236,288.64 £
from 988.00 £/mo
from 0.00 £/mo
from 4.94 %
from 6.00 %
Agent Activity
Diamond Mills & Co created the listing.
Nearby Schools
| Name | Type | Ofsted | Distance |
|---|---|---|---|
| Fairfield Infant School | Community School | Good | 0.55 KM |
| Set Maidstone | Academy Converter | 1.31 KM | |
| Set Causton | Academy Converter | 1.37 KM | |
| Colneis Junior School | Community School | Good | 1.49 KM |
| Felixstowe School | Academy Sponsor Led | Special Measures | 1.66 KM |
Images
Nearby Streets
| Name | Average Price | Average Sqft | Distance |
|---|---|---|---|
| Plymouth Road | £ 0 | 0 | 0.00 KM |
| Taunton Road | £ 0 | 0 | 0.00 KM |
| Bluebell Way | £ 0 | 0 | 0.00 KM |
| Poppy Lane | £ 0 | 0 | 0.00 KM |
| Buttercup Crescent | £ 0 | 0 | 0.00 KM |
Nearby Transport
| Name | NLC | TLC | Distance |
|---|---|---|---|
| Felixstowe | 7214 | FLX | 0.51 KM |
| Trimley | 7225 | TRM | 3.10 KM |
| Harwich Town | 6905 | HWC | 7.22 KM |
| Dovercourt | 6901 | DVC | 8.08 KM |
Nearby Listings
| Address | Price | Type | Score | Distance |
|---|---|---|---|---|
| Grove Mews, Garrison Lane, Felixstowe | £ 275,000 | BUY | 7 / 10 | 0.00 KM |
| Candlet Grove, Felixstowe, Suffolk, IP11 | £ 850,000 | BUY | 8 / 10 | 0.10 KM |
| Exeter Road, Felixstowe | £ 575,000 | BUY | 7 / 10 | 0.10 KM |
| Taunton Road, Felixstowe | £ 220,000 | BUY | 6 / 10 | 0.16 KM |
| Springfield Avenue, Felixstowe | £ 450,000 | BUY | Unknown | 0.17 KM |
Nearby Properties
| Address | Price | Distance |
|---|---|---|
| 3 Candlet Grove | £ 500,000 | 0.10 KM |
| 50 Exeter Road | £ 211,600 | 0.10 KM |
| 46 Exeter Road | £ 320,000 | 0.10 KM |
| 32 Exeter Road | £ 205,000 | 0.10 KM |
| 28 Exeter Road | £ 235,000 | 0.10 KM |