The Maultway North, Camberley, Surrey, GU15
By Orchard
£ 180,000
Reviews
3 out of 5 stars
Orchard says ..
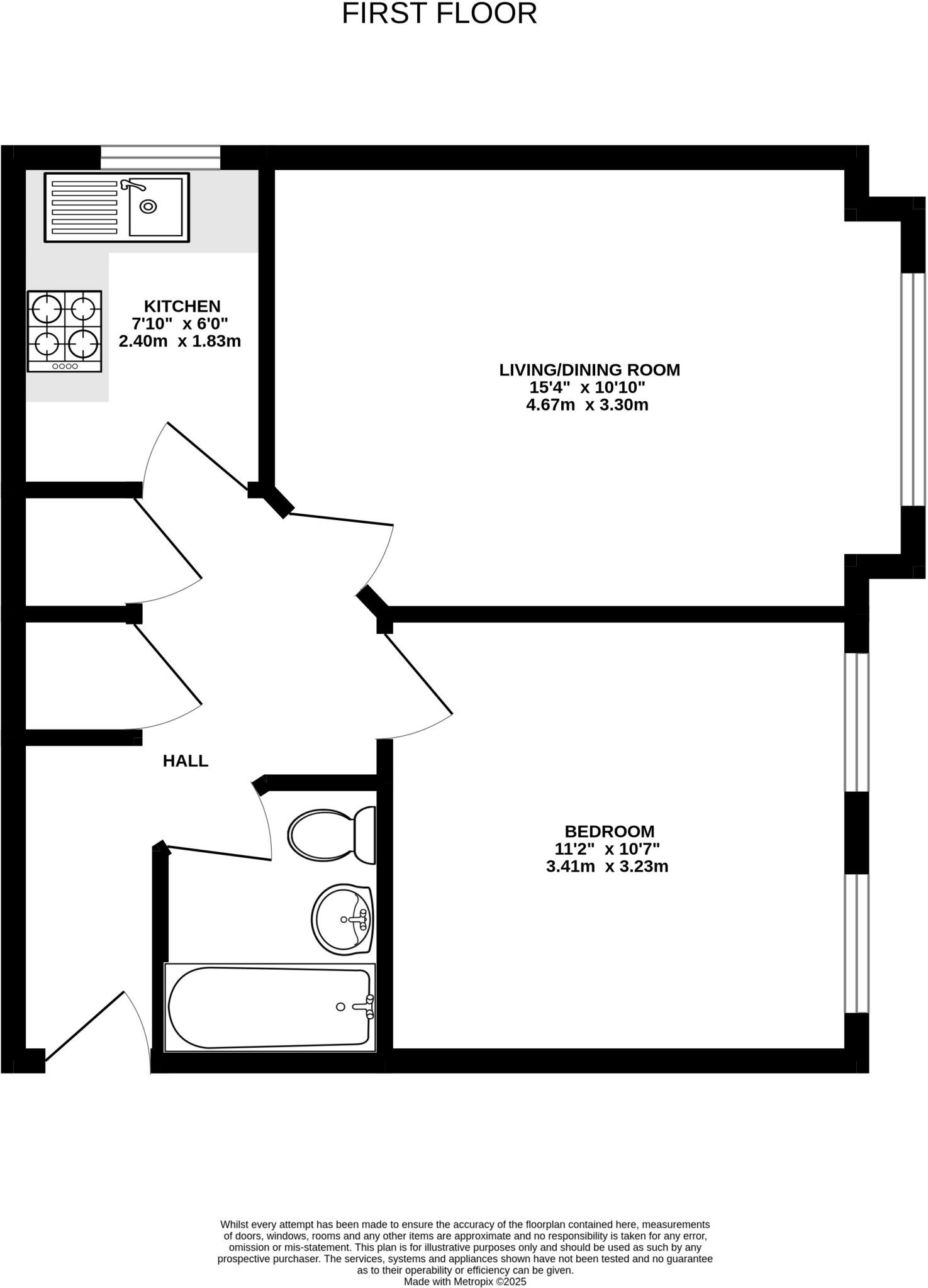
A light and spacious one double bedroom first floor apartment located in a convenient location within easy access to both Camberley town centre and Bagshot Village. The property if offered for sale with allocated parking and no onward chain. The accommodation comprises a spacious living room, a m...
Property Oracle says ..
This is a one-bedroom flat in Camberley, Surrey. The property is in good condition and benefits from communal gardens. The location is convenient for schools, transportation, and local amenities. The property is listed at £180,000, which is below the average price for the area. This property would be ideal for a first-time buyer or investor.
Therefore, we give this property 7 / 10. *Disclaimer: This is our option and does constitute a recommendation or financial advice. Do your own research. *
- Price
- 8
- Condition
- 7
- Location
- 7
- Land
- 6
- Bedrooms
- 1
- Bathrooms
- 1
- Sqft (est)
- 331.96
The heatmap indicates the level of crime in the area. The color of the heatmap indicates the crime severity and recency.
Metrics Year-on-Year
- Average area value
- 221,414.00 £Increased by 15.05 %
- Est sale value
- 82,658.04 £Decreased by 1.19 %
- Average area rental value
- 1,011.00 £/moIncreased by 14.50 %
- Est letting value
- 331.96 £/moUnchanged by 0.00 %
- Est rental Yield
- 5.48 %Decreased by 0.54 %
- Crime Rate
- 6.00 %Unchanged by 0.00 %
Agent Activity
Orchard created the listing.
Nearby Schools
| Name | Type | Ofsted | Distance |
|---|---|---|---|
| Pine Ridge School Sure Start Children'S Centre | Children's Centre | 0.63 KM | |
| Pine Ridge Infant School | Academy Converter | Good | 0.63 KM |
| Collingwood College | Academy Converter | Good | 0.93 KM |
| Cordwalles Junior School | Academy Sponsor Led | Good | 1.28 KM |
| Crawley Ridge Infant School | Academy Converter | 1.43 KM |
Images
Nearby Streets
| Name | Average Price | Average Sqft | Distance |
|---|---|---|---|
| Eliot Close | £ 0 | 0 | 0.00 KM |
| Gibbet Lane | £ 0 | 0 | 0.00 KM |
| Lupin Close | £ 0 | 0 | 0.00 KM |
| Clewborough Drive | £ 700,000 | 0 | 0.00 KM |
| Youlden Drive | £ 0 | 0 | 0.00 KM |
Nearby Transport
| Name | NLC | TLC | Distance |
|---|---|---|---|
| Bagshot | 5681 | BAG | 3.18 KM |
| Camberley | 5682 | CAM | 3.73 KM |
| Frimley | 5683 | FML | 5.61 KM |
| Farnborough North | 5688 | FNN | 6.23 KM |
| Martins Heron | 5692 | MAO | 6.55 KM |
Nearby Listings
| Address | Price | Type | Score | Distance |
|---|---|---|---|---|
| The Maultway North, Camberley, Surrey, GU15 | £ 180,000 | BUY | 7 / 10 | 0.00 KM |
| The Maultway North, Camberley, Surrey | £ 210,000 | BUY | 6 / 10 | 0.00 KM |
| Pear Tree Court, The Maultway North, Camberley | £ 200,000 | BUY | 7 / 10 | 0.05 KM |
| Pear Tree Court, The Maultway North, Camberley | £ 180,000 | BUY | Unknown | 0.05 KM |
| London Road, Camberley, GU15 | £ 875,000 | BUY | Unknown | 0.16 KM |
Nearby Properties
| Address | Price | Distance |
|---|---|---|
| 20 London Road | £ 495,000 | 0.11 KM |
| 22 London Road | £ 460,000 | 0.11 KM |
| Crown Land House | £ 428,000 | 0.14 KM |
| Heathermount | £ 625,000 | 0.14 KM |
| Applebank | £ 349,000 | 0.14 KM |