FI
Durants Road, Enfield, EN3
By Filey Properties
£ 440,000
Reviews
3 out of 5 stars
Filey Properties says ..
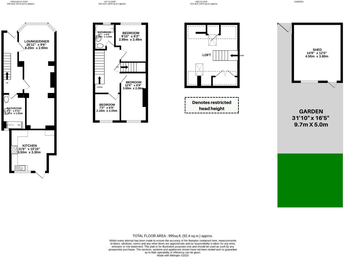
FILEY PROPERTIES are delighted to offer on the market this THREE BEDROOM TERRACED HOUSE with an Additional Loft Room & Rear Access, situated in a highly convenient location on Durants Road, EN3. This property benefits from a Spacious Reception/Through Lounge, Three Bedrooms and an Additional L...
Property Oracle says ..
Therefore, we give this property 6 / 10. *Disclaimer: This is our option and does constitute a recommendation or financial advice. Do your own research. *
- Price
- 6
- Condition
- 6
- Location
- 7
- Land
- 7
- Bedrooms
- 3
- Bathrooms
- 2
The heatmap indicates the level of crime in the area. The color of the heatmap indicates the crime severity and recency.
Metrics Year-on-Year
- Average area value
- 240,000.00 £Decreased by 38.64 %
- Average area rental value
- 1,713.00 £/moDecreased by 9.46 %
- Est rental Yield
- 8.57 %Increased by 47.76 %
- Crime Rate
- 12.00 %Unchanged by 0.00 %
from 391,129.00 £
from 1,892.00 £/mo
from 5.80 %
from 12.00 %
Agent Activity
Filey Properties created the listing.
Nearby Schools
| Name | Type | Ofsted | Distance |
|---|---|---|---|
| Alma Primary School | Academy Converter | 0.37 KM | |
| St Mary'S Catholic Primary School | Voluntary Aided School | Good | 0.39 KM |
| Oasis Academy Hadley | Academy Sponsor Led | Good | 0.63 KM |
| Brimsdown Primary School | Academy Converter | Good | 0.79 KM |
| St Matthew'S Cofe Primary School | Voluntary Aided School | Good | 1.00 KM |
Images
Nearby Streets
| Name | Average Price | Average Sqft | Distance |
|---|---|---|---|
| Scotland Green Road North | £ 375,000 | 0 | 0.00 KM |
| Lea Valley Road | £ 0 | 0 | 0.00 KM |
| Exeter Road | £ 465,000 | 0 | 0.00 KM |
| Moat Side | £ 0 | 0 | 0.00 KM |
| Morson Road | £ 0 | 0 | 0.00 KM |
Nearby Transport
| Name | NLC | TLC | Distance |
|---|---|---|---|
| Ponders End | 6819 | PON | 0.62 KM |
| Brimsdown | 6810 | BMD | 1.02 KM |
| Southbury | 6947 | SBU | 1.85 KM |
| Enfield Lock | 6815 | ENL | 2.69 KM |
| Turkey Street | 6952 | TUR | 3.04 KM |
Nearby Listings
| Address | Price | Type | Score | Distance |
|---|---|---|---|---|
| Durants Road, Enfield, EN3 | £ 440,000 | BUY | 6 / 10 | 0.00 KM |
| Durants Road, Enfield | £ 424,995 | BUY | Unknown | 0.03 KM |
| Durants Road, Enfield | £ 450,000 | BUY | 6 / 10 | 0.07 KM |
| Scotland Green Road North, Enfield | £ 390,000 | BUY | 5 / 10 | 0.14 KM |
| King Edwards Road, EN3 | £ 365,000 | BUY | 6 / 10 | 0.15 KM |
Nearby Properties
| Address | Price | Distance |
|---|---|---|
| 278 Durants Road | £ 240,000 | 0.01 KM |
| 286 Durants Road | £ 126,000 | 0.01 KM |
| 272 Durants Road | £ 205,000 | 0.01 KM |
| 242 Durants Road | £ 250,000 | 0.01 KM |
| 218 Durants Road | £ 206,000 | 0.01 KM |