Martin & Co says ..
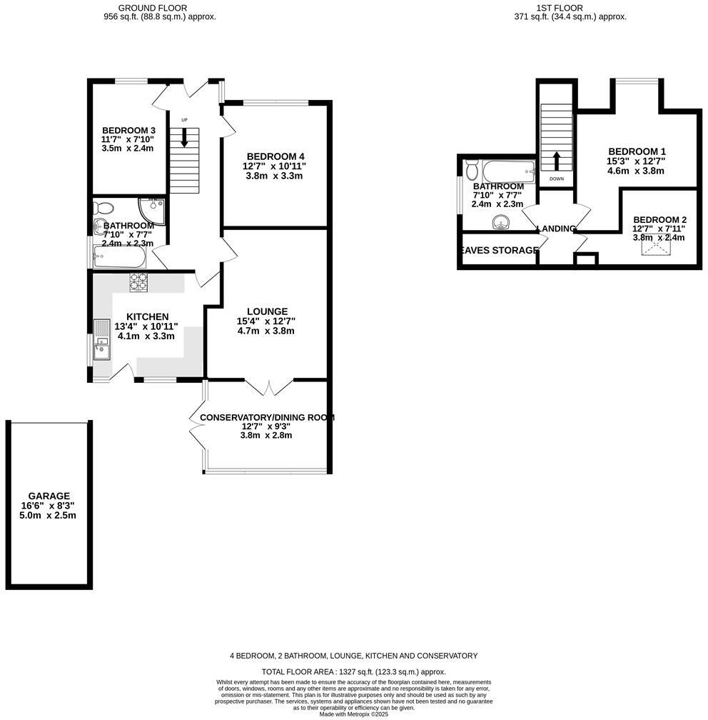
A spacious four-bedroom bungalow in desirable Rock Gardens, Aldershot, featuring two reception rooms, a bright conservatory, and two bathrooms. With parking for two cars plus a garage, it’s perfectly placed near amenities, schools, and transport links—an ideal, comfortable home in a prime location.
Property Oracle says ..
This is a 4-bedroom house located in Rowhill, Aldershot. The property benefits from its proximity to local schools and transportation links, with Aldershot train station being 1.57 KM away. While the house offers a good amount of space at 1,220.85 sqft and includes a garden, it is evident that the property requires significant renovation. The kitchen and bathrooms are dated, and general wear and tear is visible throughout the house. The asking price of £350,000 reflects the need for renovation. The property also includes a conservatory. The house is listed with Martin & Co.
Therefore, we give this property 6 / 10. *Disclaimer: This is our option and does constitute a recommendation or financial advice. Do your own research. *
- Price
- 7
- Condition
- 4
- Location
- 7
- Land
- 6
- Bedrooms
- 4
- Bathrooms
- 2
- Sqft (est)
- 1,220.85
The heatmap indicates the level of crime in the area. The color of the heatmap indicates the crime severity and recency.
Metrics Year-on-Year
- Average area value
- 332,500.00 £Decreased by 10.87 %
- Est sale value
- 665,363.25 £Increased by 55.71 %
- Average area rental value
- 1,008.00 £/moDecreased by 24.27 %
- Est letting value
- 1,220.85 £/moUnchanged by 0.00 %
- Est rental Yield
- 3.64 %Decreased by 14.95 %
- Crime Rate
- 3.00 %Unchanged by 0.00 %
Agent Activity
Martin & Co created the listing.
Nearby Schools
| Name | Type | Ofsted | Distance |
|---|---|---|---|
| Rowhill School | Pupil Referral Unit | Good | 0.32 KM |
| Wellington Community Primary School | Community School | Outstanding | 0.41 KM |
| St Joseph'S Catholic Primary School | Academy Converter | Outstanding | 1.25 KM |
| All Hallows Catholic School | Voluntary Aided School | Outstanding | 1.27 KM |
| Talavera Junior School | Community School | Outstanding | 1.49 KM |
Images
Nearby Streets
| Name | Average Price | Average Sqft | Distance |
|---|---|---|---|
| Willems Roundabout | £ 0 | 0 | 0.00 KM |
| Wellington Avenue | £ 0 | 0 | 0.00 KM |
| Willems Avenue | £ 137,500 | 0 | 0.00 KM |
| Laburnum Road | £ 0 | 0 | 0.00 KM |
| St. Peters Park | £ 420,000 | 0 | 0.00 KM |
Nearby Transport
| Name | NLC | TLC | Distance |
|---|---|---|---|
| Aldershot | 5623 | AHT | 1.57 KM |
| Farnham | 5545 | FNH | 4.31 KM |
| North Camp | 5636 | NCM | 5.78 KM |
| Farnborough (Main) | 5521 | FNB | 5.98 KM |
| Ash Vale | 5547 | AHV | 6.49 KM |
Nearby Listings
| Address | Price | Type | Score | Distance |
|---|---|---|---|---|
| Rock Gardens, Aldershot | £ 350,000 | BUY | 6 / 10 | 0.00 KM |
| Rock Gardens, Aldershot, Hampshire, GU11 | £ 350,000 | BUY | 6 / 10 | 0.02 KM |
| Rock Gardens, Aldershot, GU11 | £ 385,000 | BUY | 6 / 10 | 0.02 KM |
| Rock Gardens, Aldershot | £ 425,000 | BUY | 5 / 10 | 0.02 KM |
| Rock Gardens, Aldershot | £ 395,000 | BUY | 7 / 10 | 0.05 KM |
Nearby Properties
| Address | Price | Distance |
|---|---|---|
| 9 Rock Gardens | £ 176,000 | 0.01 KM |
| 17 Rock Gardens | £ 240,000 | 0.01 KM |
| 18 Rock Gardens | £ 398,000 | 0.02 KM |
| 4 Rock Gardens | £ 184,000 | 0.02 KM |
| 2 Rock Gardens | £ 380,000 | 0.02 KM |