Aspect Property says ..
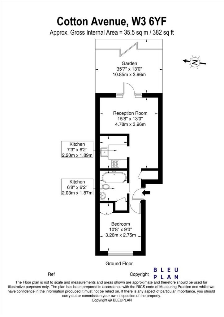
A ground floor one bedroom flat with direct access to communal garden space. The property is set within a purpose built block with allocated parking and offers easy access to major bus routes and both East Acton and North Acton Tube stations.
Property Oracle says ..
This one-bedroom ground floor flat in East Acton, London, presents a mixed bag of features. Its location is a definite strength, benefitting from proximity to good transport links, including tube stations, and well-regarded primary schools. Access to a communal garden provides outdoor space. However, the property’s condition requires consideration. While functional, the kitchen and bathroom appear dated and could benefit from renovation. The interior is reasonably presented but may require some updating to enhance its overall appeal. The provided images do not showcase the full extent of the property’s size but based on the floor plan this is a small one bedroom property. The list price should be considered reasonable in the context of other nearby properties, but due to the lack of definitive square footage information, a precise assessment of price per square foot is not possible. Potential buyers should carefully assess their budget and renovation needs before making a decision. A comprehensive survey would be recommended prior to purchase.
Therefore, we give this property 5 / 10. *Disclaimer: This is our option and does constitute a recommendation or financial advice. Do your own research. *
- Price
- 7
- Condition
- 5
- Location
- 7
- Land
- 4
- Bedrooms
- 1
- Bathrooms
- 1
The heatmap indicates the level of crime in the area. The color of the heatmap indicates the crime severity and recency.
Metrics Year-on-Year
- Average area value
- 602,363.00 £Decreased by 3.66 %
- Average area rental value
- 2,309.00 £/moIncreased by 9.48 %
- Est rental Yield
- 4.60 %Increased by 13.58 %
- Crime Rate
- 8.00 %Unchanged by 0.00 %
Agent Activity
Aspect Property marked this listing as sold.
Aspect Property created the listing.
Nearby Schools
| Name | Type | Ofsted | Distance |
|---|---|---|---|
| John Perryn Primary School | Community School | Good | 0.42 KM |
| East Acton Primary School | Community School | Good | 0.82 KM |
| London Bunka Yochien | Other Independent School | Good | 0.87 KM |
| Maples Children'S Centre | Children's Centre Linked Site | 1.03 KM | |
| Maples Nursery School And Children'S Centre | Local Authority Nursery School | Good | 1.05 KM |
Images
Nearby Streets
| Name | Average Price | Average Sqft | Distance |
|---|---|---|---|
| A4000 | £ 0 | 0 | 0.00 KM |
| Taylor's Green | £ 0 | 0 | 0.00 KM |
| Heartwood Boulevard | £ 563,375 | 0 | 0.00 KM |
| St. Andrews Road | £ 0 | 0 | 0.00 KM |
| Friary Road | £ 0 | 0 | 0.00 KM |
Nearby Transport
| Name | NLC | TLC | Distance |
|---|---|---|---|
| Acton Main Line | 3000 | AML | 0.83 KM |
| Acton Central | 1404 | ACC | 1.13 KM |
| Harlesden | 1521 | HDN | 2.02 KM |
| Willesden Junction | 1457 | WIJ | 2.28 KM |
| South Acton | 1452 | SAT | 2.38 KM |
Nearby Listings
| Address | Price | Type | Score | Distance |
|---|---|---|---|---|
| Flat 31, Cotton Avenue, Acton, London, W3 6YE | £ 185,000 | BUY | 6 / 10 | 0.03 KM |
| Cotton Avenue, Acton, London, W3 | £ 360,000 | BUY | 5 / 10 | 0.03 KM |
| Curtis Drive, London | £ 265,000 | BUY | 4 / 10 | 0.04 KM |
| Curtis Drive, W3 | £ 349,000 | BUY | 5 / 10 | 0.04 KM |
| Curtis Drive, London, W3 | £ 349,950 | BUY | Unknown | 0.04 KM |
Nearby Properties
| Address | Price | Distance |
|---|---|---|
| 52 Cotton Avenue | £ 236,000 | 0.01 KM |
| 73 Cotton Avenue | £ 75,000 | 0.01 KM |
| 90 Cotton Avenue | £ 350,000 | 0.01 KM |
| 51 Cotton Avenue | £ 143,000 | 0.01 KM |
| 58 Cotton Avenue | £ 345,000 | 0.01 KM |