Front Street, Hart Village, Hartlepool
By igomove
£ 210,000
Reviews
3 out of 5 stars
igomove says ..
Front Street is located in the peaceful and picturesque village of Hart which is surrounded by the beautiful countryside offering a tranquil lifestyle. This idyllic village is perfect for those seeking a serene retreat with scenic walks, a highly regarded local school, and easy access to Hartlepo...
Property Oracle says ..
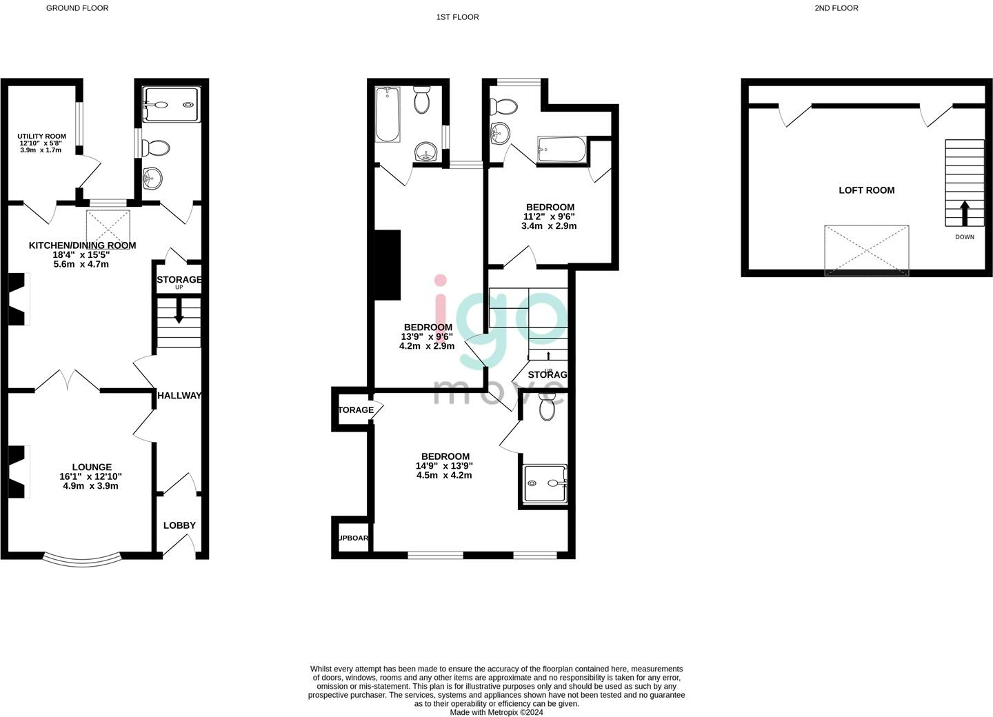
This property is located on Front Street in Hart Village, Hartlepool. Based on the images, the property appears to be in good condition and has had some modernisation. It benefits from a small rear garden and a garage. The list price is below the average price for the area, but this may be due to the smaller plot size compared to other properties in the area. The property is within walking distance of Hart Primary School and is also reasonably close to other primary and secondary schools. Transport links are available via nearby train stations, though the distance may require driving or bus travel.
Therefore, we give this property 6 / 10. *Disclaimer: This is our option and does constitute a recommendation or financial advice. Do your own research. *
- Price
- 8
- Condition
- 8
- Location
- 7
- Land
- 3
- Bedrooms
- 3
- Bathrooms
- 4
- Sqft (est)
- 956.26
The heatmap indicates the level of crime in the area. The color of the heatmap indicates the crime severity and recency.
Metrics Year-on-Year
- Average area value
- 926,998.00 £Increased by 247.85 %
- Est sale value
- 95,626.00 £Decreased by 67.53 %
- Average area rental value
- 1,034.00 £/moIncreased by 10.47 %
- Est letting value
- 0.00 £/moDecreased by 100.00 %
- Est rental Yield
- 1.34 %Decreased by 68.17 %
- Crime Rate
- 110.00 %Unchanged by 0.00 %
Agent Activity
igomove created the listing.
Nearby Schools
| Name | Type | Ofsted | Distance |
|---|---|---|---|
| Hart Primary School | Academy Converter | 0.16 KM | |
| Clavering Primary School | Community School | Good | 2.55 KM |
| West Park Primary School | Academy Converter | Good | 3.18 KM |
| Barnard Grove Primary School | Academy Converter | 3.34 KM | |
| High Tunstall College Of Science | Foundation School | Good | 3.45 KM |
Images
Nearby Streets
| Name | Average Price | Average Sqft | Distance |
|---|---|---|---|
| Blackthorn Meadows | £ 300,000 | 0 | 0.00 KM |
| Wayfarer Meadows | £ 120,000 | 0 | 0.00 KM |
Nearby Transport
| Name | NLC | TLC | Distance |
|---|---|---|---|
| Hartlepool | 8009 | HPL | 7.54 KM |
| Seaton Carew | 8007 | SEC | 9.64 KM |
Nearby Listings
| Address | Price | Type | Score | Distance |
|---|---|---|---|---|
| Front Street, Hart Village, Hartlepool | £ 210,000 | BUY | 6 / 10 | 0.00 KM |
| White Hart Court, Hart Village | £ 165,000 | BUY | Unknown | 0.03 KM |
| Hart Pastures, Hart, Hartlepool | £ 239,950 | BUY | Unknown | 0.04 KM |
| Front Street, Hart, Hartlepool | £ 395,000 | BUY | 7 / 10 | 0.21 KM |
| Brookfield & Firtree House, Hart Village, | £ 725,000 | BUY | 5 / 10 | 0.23 KM |
Nearby Properties
| Address | Price | Distance |
|---|---|---|
| 7 Clevecoat Walk | £ 190,000 | 0.08 KM |
| 2 Clevecoat Walk | £ 229,000 | 0.08 KM |
| 7 Magdalene Drive | £ 270,000 | 0.11 KM |
| 22 Nine Acres | £ 215,000 | 0.11 KM |
| 4 Magdalene Drive | £ 249,995 | 0.11 KM |