Flat 11, 35 Lynedoch Street, Park, G3 6AA
By Ivy Property
£ 220,000
Reviews
2 out of 5 stars
Ivy Property says ..
AN IMPRESSIVE TWO-BEDROOM DUPLEX CONVERSION SITUATED WITHIN THE ICONIC TRINITY TOWER BUILDING IN THE PARK DISTRICT AREA
Property Oracle says ..
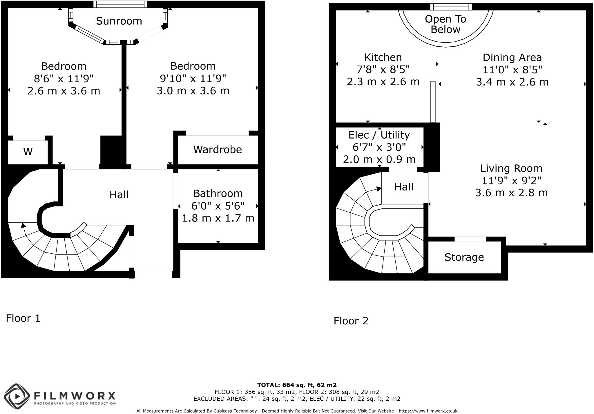
This two-bedroom duplex apartment is located in the desirable Park district of Glasgow within a striking building with impressive communal areas, including a beautiful, plant-filled atrium. The apartment itself is presented in good condition, with a modern bathroom and a functional, if somewhat dated, kitchen. The layout, as shown in the floor plan, is sensible, with two bedrooms and a open-plan living and dining area. Access to excellent transport links via nearby train stations at Charing Cross adds further appeal. However, the lack of any private outdoor space is a notable drawback, and the absence of information regarding schools and local shops makes a comprehensive evaluation more challenging. The provided images don’t entirely showcase the interior layout or the apartment’s condition in the finest detail. More photos of the living spaces would be preferable. Whilst the listing price of £220,000 seems competitive with other apartments in the area, a more thorough comparison with similarly sized and appointed properties would help determine whether it’s excellent value for money, or simply a good price in its current context. The lack of data on the average price per square foot makes an in-depth assessment of value more difficult and more information would be needed for a more complete picture of this property’s market position.
Therefore, we give this property 5 / 10. *Disclaimer: This is our option and does constitute a recommendation or financial advice. Do your own research. *
- Price
- 7
- Condition
- 6
- Location
- 7
- Land
- 1
- Bedrooms
- 2
- Bathrooms
- 1
- Sqft (est)
- 664.00
The heatmap indicates the level of crime in the area. The color of the heatmap indicates the crime severity and recency.
Metrics Year-on-Year
- Average area value
- 235,300.00 £Decreased by 27.76 %
- Est sale value
- 199,200.00 £Decreased by 14.53 %
- Average area rental value
- 1,777.00 £/moDecreased by 8.12 %
- Est letting value
- 1,328.00 £/moUnchanged by 0.00 %
- Est rental Yield
- 9.06 %Increased by 27.07 %
- Crime Rate
- 0.00 %
Agent Activity
Ivy Property created the listing.
Images
Nearby Streets
| Name | Average Price | Average Sqft | Distance |
|---|---|---|---|
| Lynedoch Terrace | £ 0 | 0 | 0.00 KM |
| Woodside Terrace | £ 0 | 0 | 0.00 KM |
| Somerset Place Meuse | £ 0 | 0 | 0.00 KM |
| Claremont Pass | £ 0 | 0 | 0.00 KM |
| Newton Terrace | £ 215,000 | 0 | 0.00 KM |
Nearby Transport
| Name | NLC | TLC | Distance |
|---|---|---|---|
| Charing Cross (Glasgow) | 9911 | CHC | 0.77 KM |
| Anderston | 9965 | AND | 1.06 KM |
| Exhibition Centre (Glasgow) | 9914 | EXG | 1.11 KM |
| Glasgow Central | 9813 | GLC | 2.22 KM |
| Glasgow Queen Street | 9950 | GLQ | 2.78 KM |
Nearby Listings
| Address | Price | Type | Score | Distance |
|---|---|---|---|---|
| Lynedoch Street, Park District | £ 239,000 | BUY | 5 / 10 | 0.00 KM |
| Flat 11, 35 Lynedoch Street, Park, G3 6AA | £ 220,000 | BUY | 5 / 10 | 0.00 KM |
| Lynedoch Street, Park, Glasgow | £ 229,000 | BUY | 6 / 10 | 0.02 KM |
| Lynedoch Street, Park, Glasgow | £ 195,000 | BUY | 7 / 10 | 0.02 KM |
| Trinity House Main Door, 31 Lynedoch Street, Park, G3 6EF | £ 295,000 | BUY | 4 / 10 | 0.02 KM |