Romans says ..
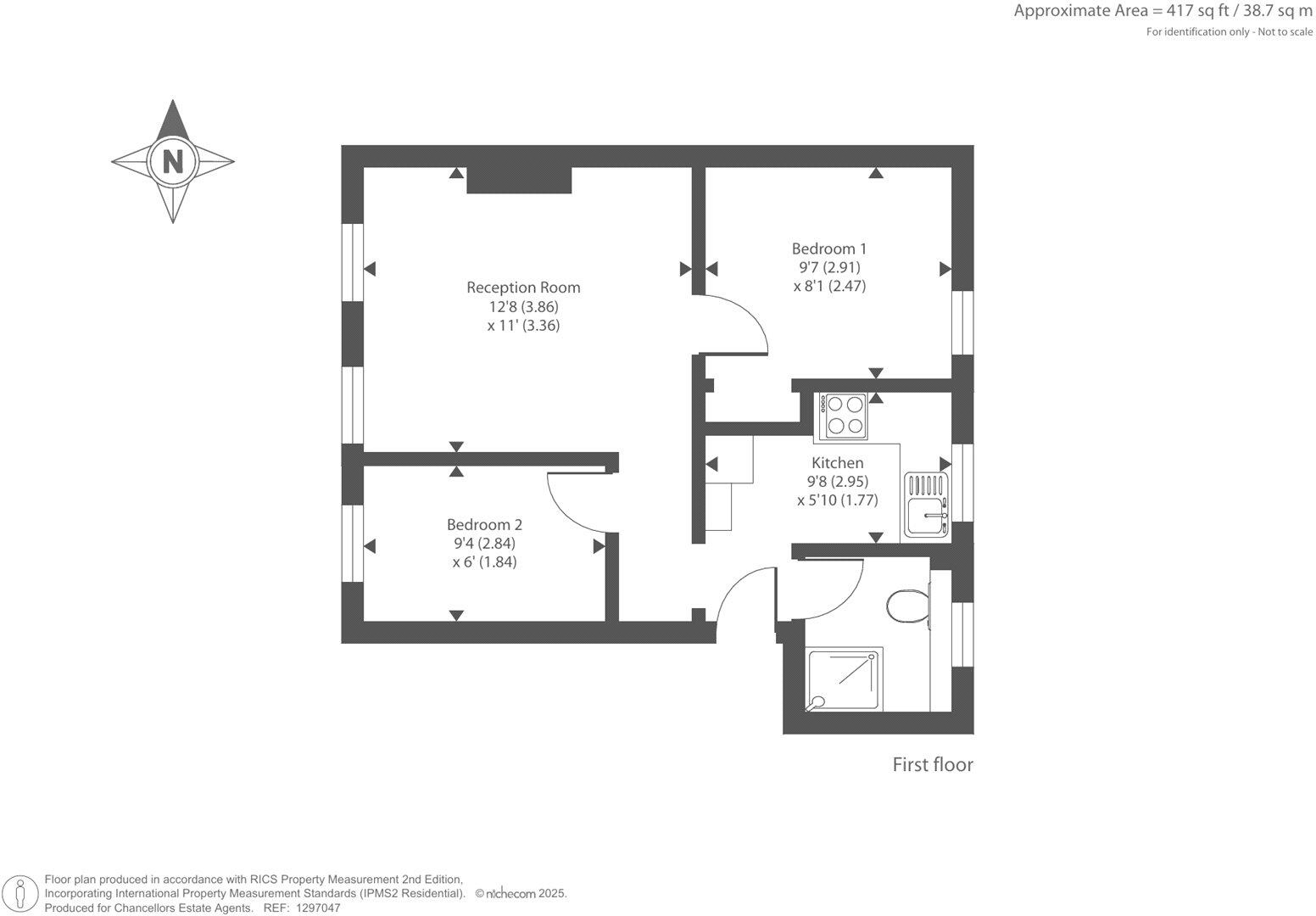
Situated just 79ft away from Windsor Castle this beautifully presented top-floor flat offers captivating views of Windsor Castle. The property boasts a spacious living room, a double bedroom, a modern kitchen, and a contemporary shower room. Ideal for commuters, the flat is just minutes on foot f...
Property Oracle says ..
Therefore, we give this property 5 / 10. *Disclaimer: This is our option and does constitute a recommendation or financial advice. Do your own research. *
- Price
- 6
- Condition
- 7
- Location
- 9
- Land
- 1
- Bedrooms
- 2
- Bathrooms
- 0
- Sqft (est)
- 330.22
The heatmap indicates the level of crime in the area. The color of the heatmap indicates the crime severity and recency.
Metrics Year-on-Year
- Average area value
- 755,909.00 £Increased by 23.43 %
- Est sale value
- 260,543.58 £Increased by 41.65 %
- Average area rental value
- 1,876.00 £/moDecreased by 31.51 %
- Est letting value
- 330.22 £/moDecreased by 50.00 %
- Est rental Yield
- 2.98 %Decreased by 44.51 %
- Crime Rate
- 32.00 %Unchanged by 0.00 %
from 612,413.00 £
from 183,932.54 £
from 2,739.00 £/mo
from 660.44 £/mo
from 5.37 %
from 32.00 %
Agent Activity
Romans created the listing.
Nearby Schools
| Name | Type | Ofsted | Distance |
|---|---|---|---|
| St George'S School | Other Independent School | 0.36 KM | |
| Eton Porny Cofe First School | Academy Sponsor Led | Good | 0.85 KM |
| The Queen Anne Royal Free Cofe Controlled First School | Voluntary Controlled School | Good | 0.96 KM |
| The King'S House School, Windsor | Other Independent School | 0.99 KM | |
| Upton House School | Other Independent School | 1.09 KM |
Images
Nearby Streets
| Name | Average Price | Average Sqft | Distance |
|---|---|---|---|
| Queen Charlotte Street | £ 795,000 | 0 | 0.00 KM |
| Saint Alban's Street | £ 0 | 0 | 0.00 KM |
| Castle Hill | £ 0 | 0 | 0.00 KM |
| Datchet Road | £ 0 | 0 | 0.00 KM |
| The Long Walk | £ 835,000 | 0 | 0.00 KM |
Nearby Transport
| Name | NLC | TLC | Distance |
|---|---|---|---|
| Windsor And Eton Riverside | 5672 | WNR | 0.36 KM |
| Windsor And Eton Central | 3175 | WNC | 0.44 KM |
| Datchet | 5668 | DAT | 3.00 KM |
| Slough | 3172 | SLO | 3.68 KM |
| Sunnymeads | 5675 | SNY | 5.38 KM |
Nearby Listings
| Address | Price | Type | Score | Distance |
|---|---|---|---|---|
| Church Street, Windsor, Berkshire | £ 435,000 | BUY | 5 / 10 | 0.00 KM |
| Church Street, Windsor, Berkshire | £ 425,000 | BUY | 6 / 10 | 0.00 KM |
| Church Street, Windsor, SL4 1PE | £ 350,000 | BUY | 6 / 10 | 0.00 KM |
| Church Street, Windsor, SL4 1PE | £ 350,000 | BUY | 5 / 10 | 0.00 KM |
| Windsor, Berkshire, SL4 | £ 425,000 | BUY | 6 / 10 | 0.02 KM |
Nearby Properties
| Address | Price | Distance |
|---|---|---|
| 14 High Street | £ 660,000 | 0.14 KM |
| 6 Sheet Street | £ 600,000 | 0.20 KM |
| 2 Park Street | £ 1,990,000 | 0.25 KM |
| 15 Park Street | £ 1,869,450 | 0.27 KM |
| 8 Park Street | £ 865,000 | 0.27 KM |