Hazel Grove, Irby, Wirral
By Move Residential
£ 475,000
Reviews
3 out of 5 stars
Move Residential says ..
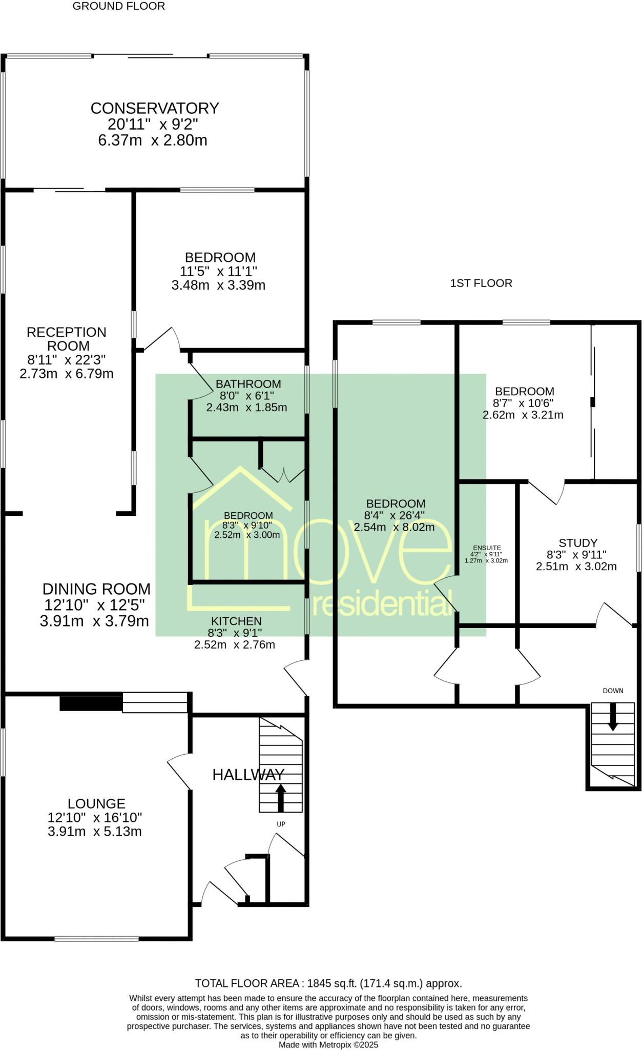
This individually designed four bedroom detached home presents a rare opportunity to acquire a property of true character in the highly sought after area of Irby. Occupying a generous plot and offering over 1,800 square feet of well planned accommodation, the home strikes a perfect balance betwee...
Property Oracle says ..
This detached property in Hazel Grove, Irby, Wirral, presents a solid opportunity for potential buyers. The house features four bedrooms and two bathrooms, making it suitable for families. While the square footage isn’t specified, the property includes a spacious garden and a garage, adding to its appeal. The interior has a traditional style and could benefit from some modernisation to align with current tastes. Located in a sought-after area with good schools and transport links, the property is well-positioned. The price of £475,000 is competitive, reflecting both the desirable location and the potential for updates.
Therefore, we give this property 6 / 10. *Disclaimer: This is our option and does constitute a recommendation or financial advice. Do your own research. *
- Price
- 6
- Condition
- 6
- Location
- 7
- Land
- 8
- Bedrooms
- 4
- Bathrooms
- 2
The heatmap indicates the level of crime in the area. The color of the heatmap indicates the crime severity and recency.
Metrics Year-on-Year
- Average area value
- 429,000.00 £Increased by 36.65 %
- Average area rental value
- 1,163.00 £/moIncreased by 0.43 %
- Est rental Yield
- 3.25 %Decreased by 26.64 %
- Crime Rate
- 18.00 %Unchanged by 0.00 %
Agent Activity
Move Residential created the listing.
Nearby Schools
| Name | Type | Ofsted | Distance |
|---|---|---|---|
| Irby Primary School | Community School | Outstanding | 0.26 KM |
| Pensby High School | Foundation School | Good | 1.55 KM |
| Greasby Junior School | Community School | Good | 1.59 KM |
| South And West Hub - Pensby Children'S Centre | Children's Centre | 1.68 KM | |
| Our Lady Of Pity Catholic Primary School | Academy Converter | 1.70 KM |
Images
Nearby Streets
| Name | Average Price | Average Sqft | Distance |
|---|---|---|---|
| Foothpath 45 | £ 160,000 | 0 | 0.00 KM |
| Manor Road | £ 0 | 0 | 0.00 KM |
| Edgemoor Drive | £ 300,000 | 0 | 0.00 KM |
| Dawlish Road | £ 550,000 | 0 | 0.00 KM |
| Devonshire Road | £ 0 | 0 | 0.00 KM |
Nearby Transport
| Name | NLC | TLC | Distance |
|---|---|---|---|
| Upton (Merseyside) | 2141 | UPT | 4.71 KM |
| Heswall | 2138 | HSW | 5.48 KM |
| Moreton (Merseyside) | 2151 | MRT | 5.56 KM |
| Leasowe | 2237 | LSW | 5.90 KM |
| Meols | 2254 | MEO | 6.41 KM |
Nearby Listings
| Address | Price | Type | Score | Distance |
|---|---|---|---|---|
| Hazel Grove, Irby, Wirral | £ 415,000 | BUY | 7 / 10 | 0.00 KM |
| Hazel Grove, Irby, Wirral | £ 475,000 | BUY | 6 / 10 | 0.00 KM |
| Hazel Grove, Irby, Wirral | £ 225,000 | BUY | 6 / 10 | 0.01 KM |
| Hazel Grove, Irby, Wirral | £ 275,000 | BUY | 5 / 10 | 0.06 KM |
| Hazel Grove, Irby, CH61 | £ 475,000 | BUY | 7 / 10 | 0.11 KM |
Nearby Properties
| Address | Price | Distance |
|---|---|---|
| 47 Hazel Grove | £ 176,000 | 0.01 KM |
| 5 Hazel Grove | £ 272,000 | 0.01 KM |
| 29 Hazel Grove | £ 103,000 | 0.01 KM |
| 51 Hazel Grove | £ 145,000 | 0.01 KM |
| 11 Hazel Grove | £ 205,000 | 0.01 KM |