Portico says ..
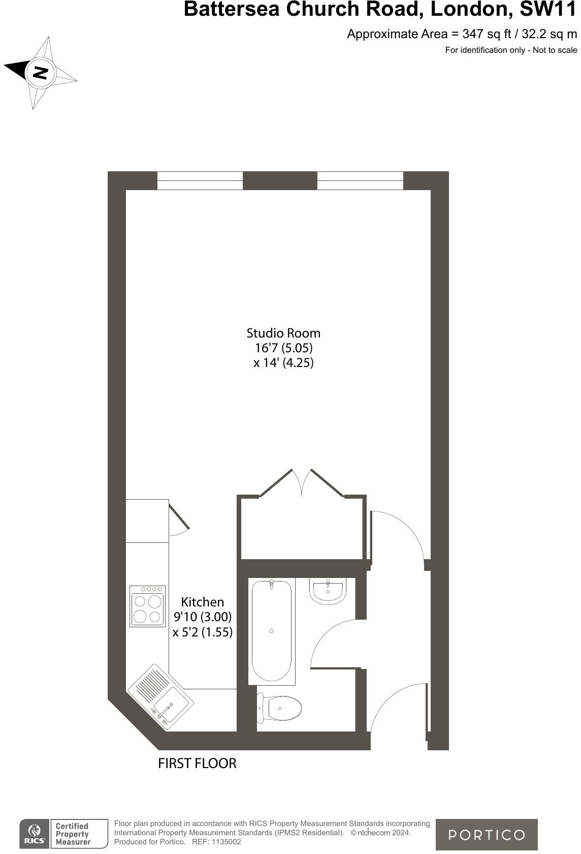
This charming chain-free studio apartment is located within a sought-after Battersea Square location. The property is positioned on the first floor of a smart, purpose-built low rise building and as such offers excellent natural light. Inside briefly comprises of a modern studio room,...
Property Oracle says ..
This studio apartment located on Battersea Church Road in Wandsworth, London, presents a potentially attractive option for first-time buyers or investors. The property’s location offers a blend of convenience and charm, with access to local amenities, good schools, and public transportation within a reasonable distance. While the interior is clean and functional, the decor is simple and could benefit from some upgrades to enhance its appeal. The absence of a garden or outdoor space is a notable drawback. The list price of £300,000 appears to be relatively competitive within the context of similar studio apartments in the area, although a more thorough analysis would require more detailed comparative data on square footage and property features. Overall, this property offers a viable entry point into the London property market, but potential buyers should carefully weigh the pros and cons before making a decision, considering the lack of outdoor space and the potential for improvements.
Therefore, we give this property 5 / 10. *Disclaimer: This is our option and does constitute a recommendation or financial advice. Do your own research. *
- Price
- 7
- Condition
- 6
- Location
- 7
- Land
- 1
- Bedrooms
- 0
- Bathrooms
- 1
- Sqft (est)
- 347.00
The heatmap indicates the level of crime in the area. The color of the heatmap indicates the crime severity and recency.
Metrics Year-on-Year
- Average area value
- 977,174.00 £Increased by 2.62 %
- Est sale value
- 381,353.00 £Increased by 8.81 %
- Average area rental value
- 2,684.00 £/moIncreased by 1.51 %
- Est letting value
- 1,041.00 £/moIncreased by 50.00 %
- Est rental Yield
- 3.30 %Decreased by 0.90 %
- Crime Rate
- 2.00 %Unchanged by 0.00 %
Agent Activity
Portico created the listing.
Nearby Schools
| Name | Type | Ofsted | Distance |
|---|---|---|---|
| Somerset Nursery School And Children'S Centre | Local Authority Nursery School | Outstanding | 0.09 KM |
| Somerset Nursery School And Children'S Centre | Children's Centre | 0.09 KM | |
| Thomas'S Battersea | Other Independent School | 0.27 KM | |
| Westbridge Academy | Academy Sponsor Led | Good | 0.38 KM |
| Saint John Bosco College | Voluntary Aided School | Good | 0.41 KM |
Images
Nearby Streets
| Name | Average Price | Average Sqft | Distance |
|---|---|---|---|
| Patricesy Mews | £ 0 | 0 | 0.00 KM |
| Albion Quay | £ 895,000 | 0 | 0.00 KM |
| Waterfront Drive | £ 4,150,708 | 0 | 0.00 KM |
| Surrey Lane Estate | £ 0 | 0 | 0.00 KM |
| Winders Road | £ 0 | 0 | 0.00 KM |
Nearby Transport
| Name | NLC | TLC | Distance |
|---|---|---|---|
| Imperial Wharf | 9586 | IMW | 0.84 KM |
| Clapham Junction | 5595 | CLJ | 1.48 KM |
| Wandsworth Town | 5576 | WNT | 2.22 KM |
| West Brompton | 8875 | WBP | 2.52 KM |
| Battersea Park | 5420 | BAK | 3.08 KM |
Nearby Listings
| Address | Price | Type | Score | Distance |
|---|---|---|---|---|
| Battersea Church Road, London | £ 300,000 | BUY | 5 / 10 | 0.00 KM |
| Battersea Church Road London SW11 | £ 1,300,000 | BUY | 7 / 10 | 0.01 KM |
| Battersea Church Road, Battersea Park, SW11 | £ 900,000 | BUY | 8 / 10 | 0.04 KM |
| Sunbury Lane, London, SW11 | £ 825,000 | BUY | Unknown | 0.06 KM |
| Old Swan Wharf, 116 Battersea Church Road, Battersea, London, SW11 | £ 1,100,000 | BUY | 7 / 10 | 0.06 KM |
Nearby Properties
| Address | Price | Distance |
|---|---|---|
| 22 Battersea Church Road | £ 206,129 | 0.01 KM |
| 16 - 20 Battersea Church Road | £ 925,000 | 0.01 KM |
| 4 Battersea Church Road | £ 124,000 | 0.01 KM |
| 8 Battersea Church Road | £ 960,000 | 0.01 KM |
| 31 Sunbury Lane | £ 96,500 | 0.13 KM |