Whitchurch Gardens, Edgware, HA8
Davidson Frost-Wellings logo

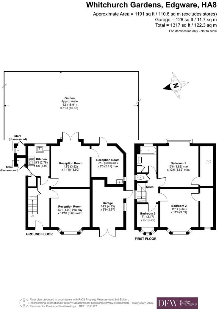
Whitchurch Gardens, Edgware, HA8

By Davidson Frost-Wellings

£ 849,000

Reviews

3 out of 5 stars

Davidson Frost-Wellings says ..

A detached house on a spacious plot with Davidson Frost-Wellings. This three bedroom house is available in original 1930s condition and offers an excellent opportunity for someone to develop into a modern family home on a residential no-through road close to Canons Park. On the ...

Property Oracle says ..

Therefore, we give this property 6 / 10. *Disclaimer: This is our option and does constitute a recommendation or financial advice. Do your own research. *

Price
6
Condition
4
Location
8
Land
7
Bedrooms
3
Bathrooms
1
Sqft (est)
1,317.00
Lot (est)
3,174.00

The heatmap indicates the level of crime in the area. The color of the heatmap indicates the crime severity and recency.

Metrics Year-on-Year

Average area value
625,703.00 £
Decreased by 3.61 %
from 649,164.00 £
Est sale value
617,673.00 £
Increased by 34.38 %
from 459,633.00 £
Average area rental value
2,383.00 £/mo
Decreased by 5.55 %
from 2,523.00 £/mo
Est letting value
1,317.00 £/mo
Unchanged by 0.00 %
from 1,317.00 £/mo
Est rental Yield
4.57 %
Decreased by 1.93 %
from 4.66 %
Crime Rate
0.00 %
from 0.00 %

Agent Activity

  • Davidson Frost-Wellings created the listing.

Nearby Schools

NameTypeOfstedDistance
Woodlands SchoolCommunity Special SchoolOutstanding0.71 KM
Tashbar Of EdgwareOther Independent SchoolInadequate0.79 KM
North London Collegiate SchoolOther Independent School0.81 KM
Chandos Children'S CentreChildren's Centre Linked Site0.87 KM
Camrose Primary With NurseryCommunity SchoolGood0.87 KM

Images

Davidson Frost-Wellings, DFW, Whitchurch Gardens, Davidson Frost-Wellings, DFW, Whitchurch Gardens, Davidson Frost-Wellings, DFW, Whitchurch Gardens, Davidson Frost-Wellings, DFW, Whitchurch Gardens, Davidson Frost-Wellings, DFW, Whitchurch Gardens, Davidson Frost-Wellings, DFW, Whitchurch Gardens, Davidson Frost-Wellings, DFW, Whitchurch Gardens, Davidson Frost-Wellings, DFW, Whitchurch Gardens, Davidson Frost-Wellings, DFW, Whitchurch Gardens, Davidson Frost-Wellings, DFW, Whitchurch Gardens, Davidson Frost-Wellings, DFW, Whitchurch Gardens, Davidson Frost-Wellings, DFW, Whitchurch Gardens, Davidson Frost-Wellings, DFW, Whitchurch Gardens, Davidson Frost-Wellings, DFW, Whitchurch Gardens,

Nearby Streets

NameAverage PriceAverage SqftDistance
St. Lawrence Close £ 000.00 KM
Chestnut Avenue £ 000.00 KM
Orchard Court £ 314,66700.00 KM
Stonegrove Court £ 000.00 KM
High Street £ 564,99800.00 KM

Nearby Transport

NameNLCTLCDistance
Mill Hill Broadway1527MIL4.31 KM
Kenton1399KNT4.57 KM
Elstree And Borehamwood1542ELS4.75 KM
South Kenton1453SOK5.08 KM
Harrow And Wealdstone1397HRW5.55 KM

Nearby Listings

AddressPriceTypeScoreDistance
Whitchurch Gardens, Edgware, HA8 £ 849,000BUY6 / 100.00 KM
Whitchurch Gardens, Edgware £ 1,000,000BUY7 / 100.05 KM
Whitchurch Gardens, Edgware, Greater London, HA8 £ 1,000,000BUY7 / 100.05 KM
Whitchurch Gardens, Edgware, HA8 £ 1,000,000BUY6 / 100.05 KM
Whitchurch Gardens, Edgware, HA8 £ 975,000BUY7 / 100.05 KM

Nearby Properties

AddressPriceDistance
18 Whitchurch Gardens £ 450,0000.06 KM
54 Whitchurch Gardens £ 535,0000.06 KM
30 Whitchurch Gardens £ 253,9600.06 KM
48 Whitchurch Gardens £ 355,0000.06 KM
52 Whitchurch Gardens £ 397,0000.06 KM