Main Street, Aldington, Evesham
CH

Main Street, Aldington, Evesham

By Christian Lewis

£ 700,000

Reviews

3 out of 5 stars

Christian Lewis says ..

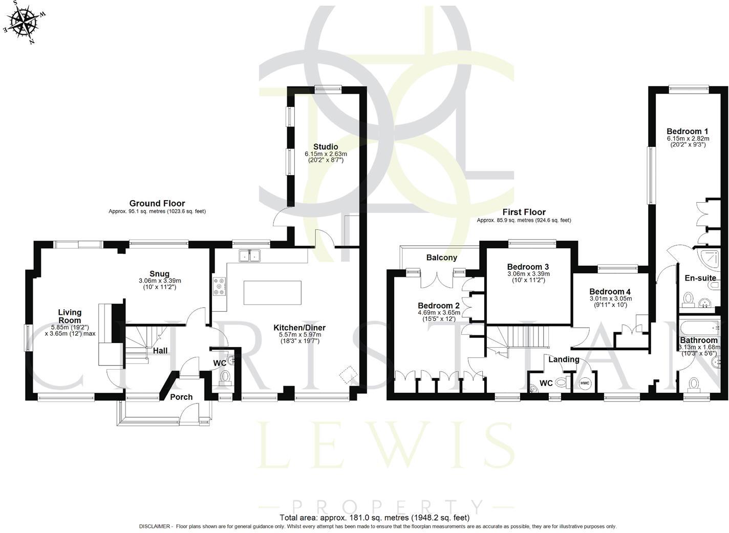
Tower View is an impressive and substantial detached home, beautifully positioned in an elevated setting that enjoys far-reaching countryside views. Occupying a desirable, non-estate location, the property offers a sense of privacy and space while still being conveniently placed for loca...

Property Oracle says ..

This is a detached property located on Main Street, Aldington, Evesham. It features four bedrooms and two bathrooms, with a generous 1,948 sq ft of living space. The property includes a large garden with a swimming pool. The house appears to be in good condition, with modern interiors. The property is listed for £700,000, which is above the average price for the area but reflects the property’s size, condition, and amenities.

Therefore, we give this property 7 / 10. *Disclaimer: This is our option and does constitute a recommendation or financial advice. Do your own research. *

Price
6
Condition
8
Location
7
Land
9
Bedrooms
4
Bathrooms
2
Sqft (est)
1,948.27

The heatmap indicates the level of crime in the area. The color of the heatmap indicates the crime severity and recency.

Metrics Year-on-Year

Average area value
228,000.00 £
Increased by 7.96 %
from 211,190.00 £
Est sale value
432,515.94 £
Increased by 48.00 %
from 292,240.50 £
Average area rental value
776.00 £/mo
Decreased by 23.55 %
from 1,015.00 £/mo
Est letting value
0.00 £/mo
from 0.00 £/mo
Est rental Yield
4.08 %
Decreased by 29.29 %
from 5.77 %
Crime Rate
0.00 %
from 0.00 %

Agent Activity

  • Christian Lewis created the listing.

Nearby Schools

NameTypeOfstedDistance
Badsey First SchoolAcademy Sponsor Led1.94 KM
Blackminster Middle SchoolCommunity SchoolGood2.18 KM
Offenham Church Of England First SchoolAcademy ConverterGood2.65 KM
Bengeworth Ce AcademyAcademy Converter2.83 KM
Evesham Nursery SchoolLocal Authority Nursery SchoolGood3.04 KM

Images

P3725331.jpg P3725218.jpg P3725238.jpg P3725224.jpg P3725231.jpg P3725266.jpg P3725263.jpg P3725251.jpg P3725244.jpg P3725258.jpg P3725274.jpg P3725279.jpg P3725319.jpg P3725314.jpg P3725302.jpg P3725297.jpg P3725309.jpg P3725291.jpg P3725336.jpg P3725284.jpg P3725321.jpg P3725341.jpg P3725346.jpg DJI_0069a.jpg DJI_0073.jpg

Nearby Streets

NameAverage PriceAverage SqftDistance
Chestnut Close £ 230,00000.00 KM
Manor Gardens £ 000.00 KM
The Hop Gardens £ 675,00000.00 KM
Russet Close £ 000.00 KM
Poppy Close £ 325,00000.00 KM

Nearby Transport

NameNLCTLCDistance
Evesham4740EVE3.95 KM
Honeybourne4794HYB8.65 KM

Nearby Listings

AddressPriceTypeScoreDistance
Main Street, Aldington, Evesham £ 700,000BUY7 / 100.00 KM
Main Street, Aldington, Evesham £ 895,000BUY8 / 100.12 KM
Main Street, Aldington, Evesham £ 695,000BUY7 / 100.12 KM
Main Street, Aldington, Evesham £ 550,000BUYUnknown0.12 KM
Main Street, Aldington, Evesham, Worcestershire, WR11 £ 350,000BUY5 / 100.17 KM

Nearby Properties

AddressPriceDistance
4 Hillside £ 185,0000.07 KM
The Highlands £ 550,0000.17 KM
The Swallows £ 445,0000.17 KM
The Old Cider Mill £ 350,0000.17 KM
Tree Tops £ 358,0000.17 KM