Taylors Lane, Romney Marsh, TN29
By The Good Estate Agent
£ 325,000
Reviews
3 out of 5 stars
The Good Estate Agent says ..
The Good Estate Agent is proud to bring to market this immaculately presented, three bedroom semi detached house in St Mary's Bay in Kent.
Property Oracle says ..
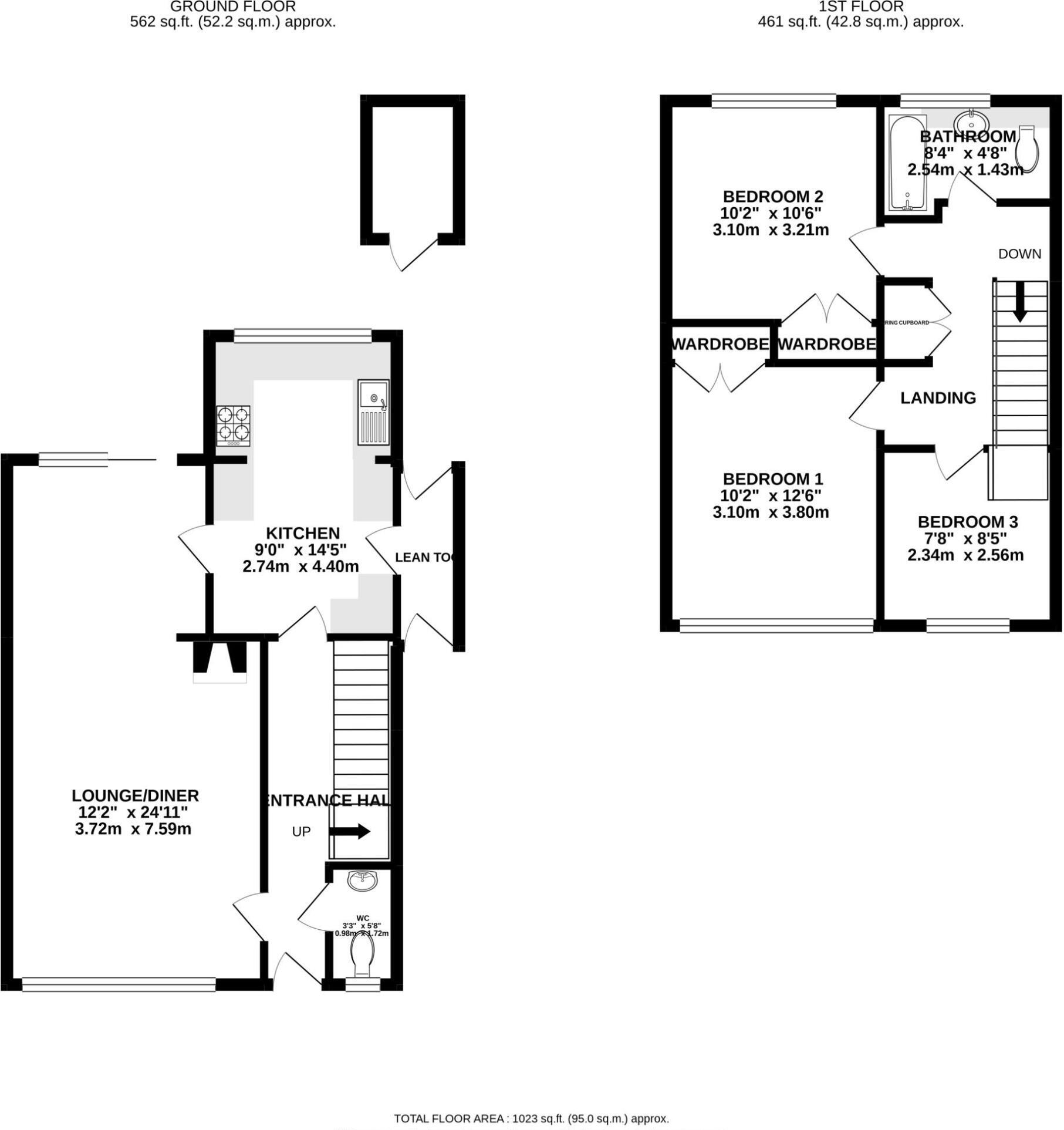
The property located at Taylors Lane, Romney Marsh, TN29 is a 3-bedroom, 1-bathroom semi-detached house with a list price of £325,000. The property has 1,023 square feet of living space and sits on a plot of 0.00 square feet.
The average price for properties in the area is £277,864, with an average size of 1,128 square feet and an average price per square foot of £246. While the subject property is slightly below average size, its price is higher than the average price for the area.
Based on the provided images, the property appears to be in excellent condition and has undergone recent modernisation. The kitchen and bathroom have been recently updated, and the property presents a well-maintained and modern aesthetic throughout. There is evidence of a garden, although the exact size is not specified. The location is in a residential area, and proximity to schools and transportation links would need further investigation to fully assess its location score. Given the property’s condition, the slightly higher than average price may be justified depending on the specifics of the location and the presence of additional features not explicitly mentioned.
Therefore, we give this property 7 / 10. *Disclaimer: This is our option and does constitute a recommendation or financial advice. Do your own research. *
- Price
- 7
- Condition
- 9
- Location
- 7
- Land
- 5
- Bedrooms
- 3
- Bathrooms
- 1
- Sqft (est)
- 1,023.00
The heatmap indicates the level of crime in the area. The color of the heatmap indicates the crime severity and recency.
Metrics Year-on-Year
- Average area value
- 330,008.00 £Decreased by 9.03 %
- Est sale value
- 240,405.00 £Decreased by 36.49 %
- Average area rental value
- 1,469.00 £/moIncreased by 6.45 %
- Est letting value
- 1,023.00 £/moUnchanged by 0.00 %
- Est rental Yield
- 5.34 %Increased by 17.11 %
- Crime Rate
- 58.00 %Unchanged by 0.00 %
Agent Activity
The Good Estate Agent created the listing.
Nearby Schools
| Name | Type | Ofsted | Distance |
|---|---|---|---|
| Romney Resource 2000 Limited (Romney Resource Centre) | Special Post 16 Institution | 3.16 KM | |
| The Marsh Academy | Academy Sponsor Led | Good | 3.32 KM |
| New Romney Children'S Centre | Children's Centre | 3.58 KM | |
| Dymchurch Primary School | Academy Converter | Requires improvement | 3.64 KM |
| St Nicholas Church Of England Primary Academy | Academy Sponsor Led | Good | 3.72 KM |
Images
Nearby Streets
| Name | Average Price | Average Sqft | Distance |
|---|---|---|---|
| Hawthorn Close | £ 335,000 | 0 | 0.00 KM |
| Aspen Close | £ 293,333 | 0 | 0.00 KM |
| Mulberry Close | £ 400,000 | 0 | 0.00 KM |
| Cypress Close | £ 0 | 0 | 0.00 KM |
| Cypress Close | £ 0 | 0 | 0.00 KM |
Nearby Listings
| Address | Price | Type | Score | Distance |
|---|---|---|---|---|
| Taylors Lane, Romney Marsh, TN29 | £ 325,000 | BUY | 7 / 10 | 0.00 KM |
| Taylors Lane, St Mary's Bay, Kent, TN29 | £ 299,995 | BUY | 6 / 10 | 0.00 KM |
| Taylors Lane, St. Marys Bay, Romney Marsh, Kent, TN29 | £ 280,000 | BUY | 6 / 10 | 0.00 KM |
| Taylors Lane, St. Marys Bay, Romney Marsh, Kent | £ 299,995 | BUY | 7 / 10 | 0.02 KM |
| Laurel Avenue, Romney Marsh, TN29 | £ 315,000 | BUY | 6 / 10 | 0.08 KM |
Nearby Properties
| Address | Price | Distance |
|---|---|---|
| 30 Taylors Lane | £ 182,000 | 0.00 KM |
| 46 Taylors Lane | £ 265,000 | 0.00 KM |
| 35 Taylors Lane | £ 300,000 | 0.00 KM |
| 15 Taylors Lane | £ 225,000 | 0.00 KM |
| 43 Taylors Lane | £ 172,000 | 0.00 KM |