eXp UK says ..
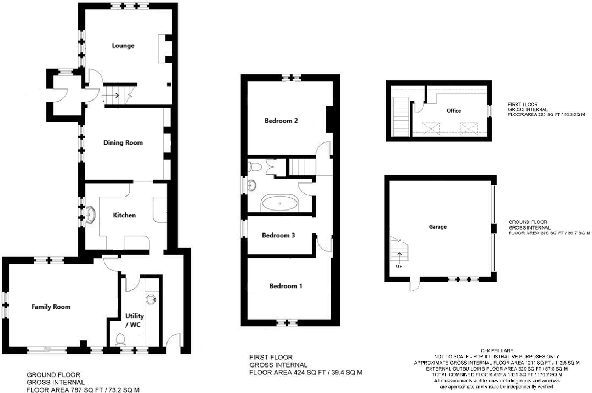
3 Bedrooms + Potential Annexe | Lounge, Family Room & Dining Room | Detached Double Garage & Room Above, Potential for Detached Annex* | Large Garden - 0.13 Acre Plot | Exposed Brick & Log Burner | Chain Free Sale | Utility Room & Downstairs WC | Please Quote JV0094
Property Oracle says ..
The property is located in Blean, Canterbury, a village in Kent with a mix of period and modern homes. The area benefits from being relatively close to Canterbury city centre and has good access to local amenities, including Blean Primary School (rated Outstanding by Ofsted) and several other schools within a reasonable distance. The property itself is a three-bedroom house with two bathrooms, a large garden and a detached double garage. The interior appears to be well-maintained, although some areas may benefit from modernisation. The list price of £550,000 is higher than the average house price in the area (£262,768), but the larger plot size and the potential for an annex could justify this. The average price per square foot in the area is £295, and while the provided square footage for this property is not available, the overall condition and location suggest that the price could be reasonable for the right buyer. More information on the property’s square footage would help to refine this assessment.
Therefore, we give this property 7 / 10. *Disclaimer: This is our option and does constitute a recommendation or financial advice. Do your own research. *
- Price
- 6
- Condition
- 7
- Location
- 7
- Land
- 8
- Bedrooms
- 3
- Bathrooms
- 2
- Sqft (est)
- 1,582.00
- Lot (est)
- 1,331.00
The heatmap indicates the level of crime in the area. The color of the heatmap indicates the crime severity and recency.
Metrics Year-on-Year
- Average area value
- 277,995.00 £Increased by 12.95 %
- Est sale value
- 400,246.00 £Decreased by 3.44 %
- Average area rental value
- 1,080.00 £/moDecreased by 3.91 %
- Est letting value
- 0.00 £/moDecreased by 100.00 %
- Est rental Yield
- 4.66 %Decreased by 14.96 %
- Crime Rate
- 102.00 %Unchanged by 0.00 %
Agent Activity
eXp UK created the listing.
Nearby Schools
| Name | Type | Ofsted | Distance |
|---|---|---|---|
| Blean Primary School | Community School | Outstanding | 1.59 KM |
| Kent College International Study Centre | Other Independent School | 2.29 KM | |
| Kent College (Canterbury) | Other Independent School | 2.29 KM | |
| St Edmund'S School Canterbury | Other Independent School | 2.74 KM | |
| Kent College Nursery, Infant And Junior School | Other Independent School | 3.03 KM |
Images
Nearby Streets
| Name | Average Price | Average Sqft | Distance |
|---|---|---|---|
| Pean Hill | £ 0 | 0 | 0.00 KM |
| Crab and Winkle Way | £ 0 | 0 | 0.00 KM |
| Moat Lane | £ 0 | 0 | 0.00 KM |
Nearby Transport
| Name | NLC | TLC | Distance |
|---|---|---|---|
| Canterbury West | 5007 | CBW | 4.62 KM |
| Canterbury East | 5164 | CBE | 5.41 KM |
| Whitstable | 5196 | WHI | 5.46 KM |
| Chestfield And Swalecliffe | 5200 | CSW | 6.31 KM |
| Chartham | 5008 | CRT | 6.36 KM |
Nearby Listings
| Address | Price | Type | Score | Distance |
|---|---|---|---|---|
| Chapel Lane, Blean, Canterbury, Kent, CT2 | £ 500,000 | BUY | Unknown | 0.01 KM |
| Chapel Lane, Blean, Canterbury | £ 350,000 | BUY | Unknown | 0.02 KM |
| Trueman Close, Blean | £ 375,000 | BUY | 6 / 10 | 0.07 KM |
| Blean Common, Blean | £ 410,000 | BUY | 7 / 10 | 0.19 KM |
| Westfield, Blean, Canterbury, Kent, CT2 | £ 550,000 | BUY | 6 / 10 | 0.19 KM |
Nearby Properties
| Address | Price | Distance |
|---|---|---|
| 15 Chapel Lane | £ 214,000 | 0.01 KM |
| Courtney Lodge | £ 750,000 | 0.01 KM |
| 11 Chapel Lane | £ 335,000 | 0.01 KM |
| 14 Chapel Lane | £ 116,000 | 0.01 KM |
| Arnley | £ 385,000 | 0.01 KM |