Rampton Baseley says ..
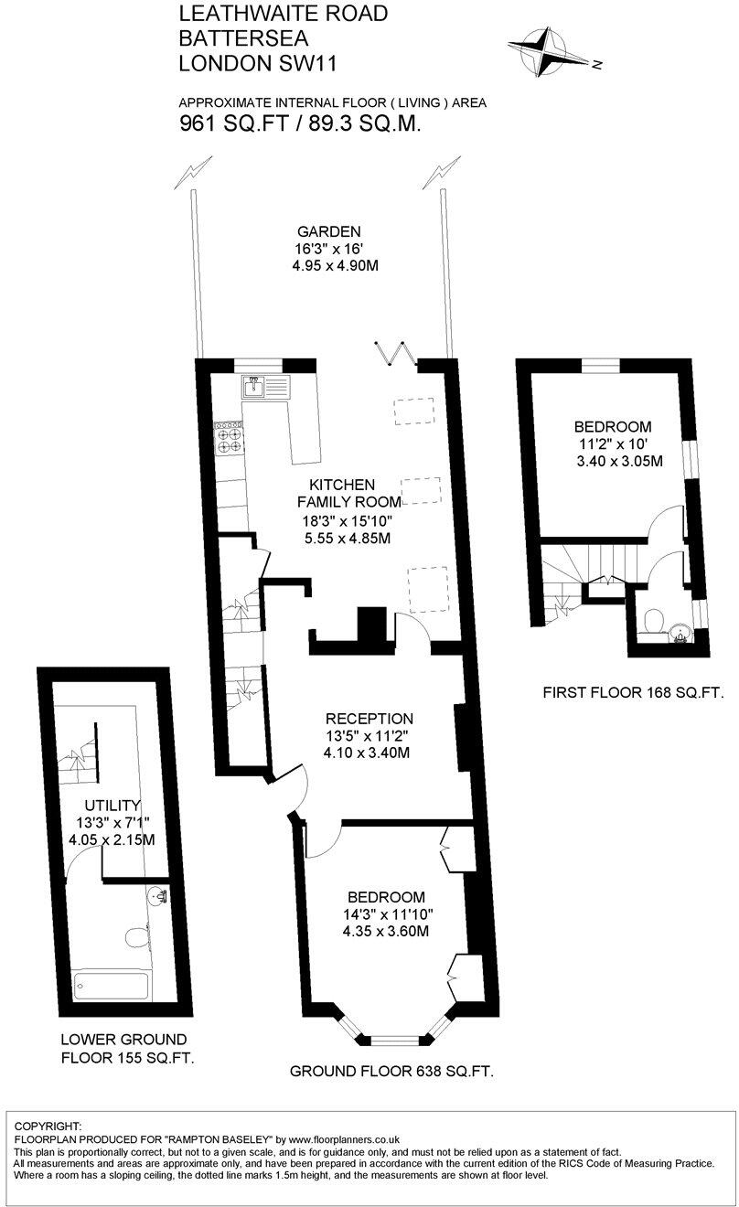
A beautifully presented, two-bedroom split-level flat positioned on a sought-after residential street between the commons. Arranged over three floors, this spacious property has been designed with modern day living in mind with approximately 961 sq ft of living space, plus a west-facing garden an...
Property Oracle says ..
This property is located on Leathwaite Road in the Northcote area of Wandsworth, a popular and well-regarded part of London. The area benefits from excellent transport links, with Clapham Junction station just under a kilometer away, providing easy access to various parts of London. There are also several well-regarded schools within a reasonable distance, including Honeywell Infant and Junior Schools which have received outstanding Ofsted ratings. The property itself is a two-bedroom terraced house with a garden, which is a desirable feature in this area. Based on the photos, the property appears to be in good condition, having undergone some modernisation and extension. The kitchen and bathroom look newly renovated. The property is smaller than the average for the area at 961 sqft compared to 1018 sqft average. The list price of £900,000 is slightly below the average price of £930,461 for the area, and the price per sqft is also lower than the average. Considering the property’s condition, location, and the inclusion of a garden, the list price appears to be reasonable.
Therefore, we give this property 8 / 10. *Disclaimer: This is our option and does constitute a recommendation or financial advice. Do your own research. *
- Price
- 8
- Condition
- 8
- Location
- 9
- Land
- 7
- Bedrooms
- 2
- Bathrooms
- 1
- Sqft (est)
- 961.00
The heatmap indicates the level of crime in the area. The color of the heatmap indicates the crime severity and recency.
Metrics Year-on-Year
- Average area value
- 939,476.00 £Decreased by 7.90 %
- Est sale value
- 911,028.00 £Increased by 7.73 %
- Average area rental value
- 3,276.00 £/moIncreased by 16.67 %
- Est letting value
- 2,883.00 £/moIncreased by 50.00 %
- Est rental Yield
- 4.18 %Increased by 26.67 %
- Crime Rate
- 4.00 %Unchanged by 0.00 %
Agent Activity
Rampton Baseley created the listing.
Nearby Schools
| Name | Type | Ofsted | Distance |
|---|---|---|---|
| Belleville Primary School | Academy Converter | 0.37 KM | |
| Dolphin School (Incorporating Noahs Ark Nursery Schools) | Other Independent School | 0.53 KM | |
| Honeywell Infant School | Foundation School | Outstanding | 0.62 KM |
| Honeywell Junior School | Foundation School | Outstanding | 0.62 KM |
| Thomas'S Clapham | Other Independent School | 0.69 KM |
Images
Nearby Streets
| Name | Average Price | Average Sqft | Distance |
|---|---|---|---|
| Lavender Gardens | £ 525,000 | 0 | 0.00 KM |
| Falcon Lane | £ 389,000 | 0 | 0.00 KM |
| Cairns Road | £ 818,750 | 0 | 0.00 KM |
| Stonell's Road | £ 0 | 0 | 0.00 KM |
| Eland Road | £ 1,779,000 | 0 | 0.00 KM |
Nearby Transport
| Name | NLC | TLC | Distance |
|---|---|---|---|
| Clapham Junction | 5595 | CLJ | 0.97 KM |
| Wandsworth Common | 5395 | WSW | 1.58 KM |
| Balham | 5399 | BAL | 2.20 KM |
| Queenstown Road (Battersea) | 5596 | QRB | 2.39 KM |
| Battersea Park | 5420 | BAK | 2.48 KM |
Nearby Listings
| Address | Price | Type | Score | Distance |
|---|---|---|---|---|
| Leathwaite Road, SW11 | £ 900,000 | BUY | 8 / 10 | 0.00 KM |
| Leathwaite Road, SW11 | £ 750,000 | BUY | 8 / 10 | 0.01 KM |
| Leathwaite, Battersea | £ 340,000 | BUY | 5 / 10 | 0.01 KM |
| Leathwaite Road, Clapham, SW11 | £ 875,000 | BUY | 8 / 10 | 0.03 KM |
| 1 Leathwaite Road, London, SW11 | £ 525,000 | BUY | 6 / 10 | 0.05 KM |
Nearby Properties
| Address | Price | Distance |
|---|---|---|
| 10c Leathwaite Road | £ 623,000 | 0.04 KM |
| 42b Leathwaite Road | £ 567,500 | 0.04 KM |
| 16b Leathwaite Road | £ 925,000 | 0.04 KM |
| 18a Leathwaite Road | £ 181,000 | 0.04 KM |
| 42a Leathwaite Road | £ 366,501 | 0.04 KM |