Roman Grange, Little Aston Park
By Quantrills
£ 2,500,000
Reviews
4 out of 5 stars
Quantrills says ..
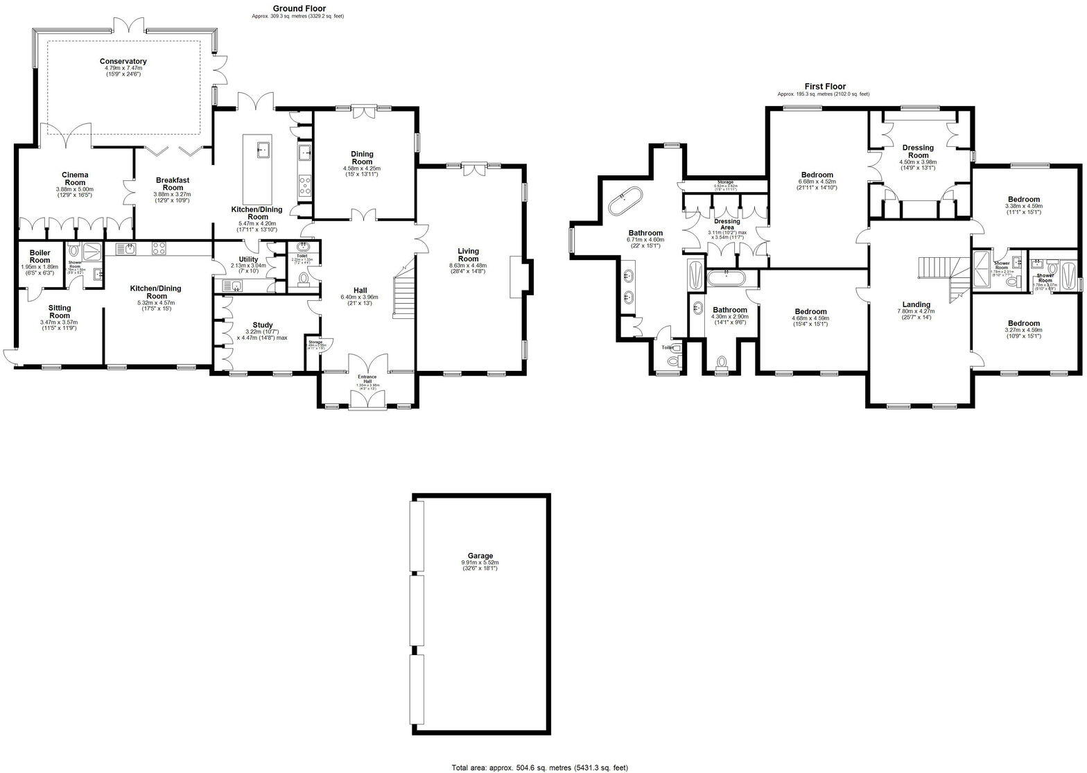
An extremely impressive very substantial luxury modern residence standing in mature grounds of approximately 0.5 acre and situated in the heart of the exclusive and much sought after private Little Aston Park. The superbly presented very spacious family accommodation briefly comprises: Entranc...
Property Oracle says ..
This property is a stunning, modern detached home located in Little Aston Park, Lichfield. The house boasts five bedrooms and five bathrooms, and is presented in excellent condition throughout. The property benefits from a large plot size of 5,431.47 sqft, including a well-maintained garden. Little Aston Park is known for its desirable location, with good local schools and transport links nearby. Given the size, condition, and location, the list price of £2,500,000 appears reasonable, particularly when considering comparable properties in the area. The average price per sqft in the area is £431, but this property is considerably larger than average and appears to be of higher quality.
Therefore, we give this property 8 / 10. *Disclaimer: This is our option and does constitute a recommendation or financial advice. Do your own research. *
- Price
- 8
- Condition
- 10
- Location
- 9
- Land
- 8
- Bedrooms
- 5
- Bathrooms
- 5
- Sqft (est)
- 4,667.99
- Lot (est)
- 5,431.47
The heatmap indicates the level of crime in the area. The color of the heatmap indicates the crime severity and recency.
Metrics Year-on-Year
- Average area value
- 1,258,750.00 £Increased by 38.62 %
- Est sale value
- 2,749,446.11 £Decreased by 3.13 %
- Average area rental value
- 2,017.00 £/moDecreased by 42.17 %
- Est letting value
- 0.00 £/moDecreased by 100.00 %
- Est rental Yield
- 1.92 %Decreased by 58.35 %
- Crime Rate
- 0.00 %
Agent Activity
Quantrills created the listing.
Nearby Schools
| Name | Type | Ofsted | Distance |
|---|---|---|---|
| Little Aston Primary Academy | Academy Converter | 0.46 KM | |
| Four Oaks Primary School | Foundation School | Outstanding | 1.43 KM |
| Hill West Primary School | Academy Converter | Good | 2.38 KM |
| Streetly Sure Start Children'S Centre | Children's Centre Linked Site | 2.61 KM | |
| Manor Primary School | Foundation School | Good | 2.85 KM |
Images
Nearby Streets
| Name | Average Price | Average Sqft | Distance |
|---|---|---|---|
| Woodside Drive | £ 0 | 0 | 0.00 KM |
| Longfield drive | £ 1,100,000 | 0 | 0.00 KM |
| Knighton Road | £ 1,190,000 | 0 | 0.00 KM |
| Bennett Drive | £ 0 | 0 | 0.00 KM |
| Harrison Road | £ 0 | 0 | 0.00 KM |
Nearby Transport
| Name | NLC | TLC | Distance |
|---|---|---|---|
| Blake Street | 1176 | BKT | 2.17 KM |
| Butlers Lane | 1179 | BUL | 3.02 KM |
| Four Oaks | 1042 | FOK | 4.61 KM |
| Shenstone | 1178 | SEN | 4.84 KM |
| Sutton Coldfield | 1044 | SUT | 5.88 KM |
Nearby Listings
| Address | Price | Type | Score | Distance |
|---|---|---|---|---|
| Roman Grange, Little Aston Park | £ 2,500,000 | BUY | 8 / 10 | 0.00 KM |
| Little Aston, Sutton Coldfield, B74 | £ 2,500,000 | BUY | 6 / 10 | 0.25 KM |
| Keepers Road, Sutton Coldfield | £ 2,200,000 | BUY | 7 / 10 | 0.27 KM |
| Keepers Road, Sutton Coldfield, West Midlands, B74 | £ 2,000,000 | BUY | Unknown | 0.28 KM |
| Keepers Road, Little Aston Park, Sutton Coldfield | £ 2,500,000 | BUY | 8 / 10 | 0.28 KM |
Nearby Properties
| Address | Price | Distance |
|---|---|---|
| Greenacre | £ 962,500 | 0.13 KM |
| Good Heart House | £ 3,100,000 | 0.13 KM |
| 1 Woodside Drive | £ 550,000 | 0.17 KM |
| Ross Holme | £ 1,250,000 | 0.23 KM |
| Tall Timbers | £ 1,115,000 | 0.23 KM |