Quantrills says ..
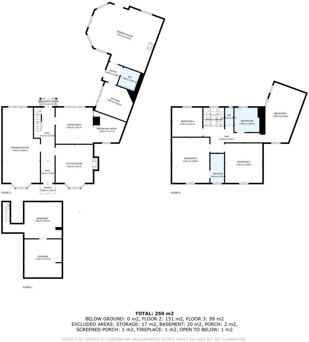
An impressive elegantly proportioned grade II listed Georgian family residence occupying a very convenient location. The elegant family residence which has been sympathetically enlarged and improved yet retains many delightful original features includes: Reception hall, drawing room, sitting r...
Property Oracle says ..
Therefore, we give this property 7 / 10. *Disclaimer: This is our option and does constitute a recommendation or financial advice. Do your own research. *
- Price
- 7
- Condition
- 6
- Location
- 9
- Land
- 8
- Bedrooms
- 4
- Bathrooms
- 3
- Sqft (est)
- 3,355.65
- Lot (est)
- 2,690.98
The heatmap indicates the level of crime in the area. The color of the heatmap indicates the crime severity and recency.
Metrics Year-on-Year
- Average area value
- 1,363,333.00 £Increased by 35.76 %
- Est sale value
- 2,543,582.70 £Increased by 71.88 %
- Average area rental value
- 2,132.00 £/moIncreased by 10.07 %
- Est letting value
- 3,355.65 £/mo
- Est rental Yield
- 1.88 %Decreased by 18.61 %
- Crime Rate
- 2.00 %Unchanged by 0.00 %
from 1,004,229.00 £
from 1,479,841.65 £
from 1,937.00 £/mo
from 0.00 £/mo
from 2.31 %
from 2.00 %
Agent Activity
Quantrills created the listing.
Nearby Schools
| Name | Type | Ofsted | Distance |
|---|---|---|---|
| St Joseph'S Catholic Primary School | Academy Converter | 0.45 KM | |
| Bishop Vesey'S Grammar School | Academy Converter | Outstanding | 0.61 KM |
| Coppice Primary School | Foundation School | Good | 0.79 KM |
| Langley School | Foundation Special School | Good | 0.84 KM |
| Whitehouse Common Primary School | Foundation School | Good | 1.59 KM |
Images
Nearby Streets
| Name | Average Price | Average Sqft | Distance |
|---|---|---|---|
| Norfolk Road | £ 0 | 0 | 0.00 KM |
| Keepers Gate | £ 937,500 | 0 | 0.00 KM |
| Hayward Road | £ 0 | 0 | 0.00 KM |
| Thorpe Close | £ 425,000 | 0 | 0.00 KM |
| Hampton Drive | £ 0 | 0 | 0.00 KM |
Nearby Transport
| Name | NLC | TLC | Distance |
|---|---|---|---|
| Four Oaks | 1042 | FOK | 0.77 KM |
| Sutton Coldfield | 1044 | SUT | 0.94 KM |
| Butlers Lane | 1179 | BUL | 2.55 KM |
| Wylde Green | 1138 | WYL | 3.15 KM |
| Blake Street | 1176 | BKT | 4.12 KM |
Nearby Listings
| Address | Price | Type | Score | Distance |
|---|---|---|---|---|
| Lichfield Road, Four Oaks | £ 900,000 | BUY | 7 / 10 | 0.00 KM |
| Little Sutton Lane, Four Oaks | £ 225,000 | BUY | 7 / 10 | 0.09 KM |
| Lichfield Road, Four Oaks, Sutton Coldfield, B74 | £ 155,000 | BUY | 5 / 10 | 0.10 KM |
| Lichfield Road, Sutton Coldfield | £ 195,000 | BUY | 6 / 10 | 0.11 KM |
| Flat 16 Kingston Court, Lichfield Road, Sutton Coldfield, B74 2RT | £ 195,000 | BUY | 5 / 10 | 0.12 KM |
Nearby Properties
| Address | Price | Distance |
|---|---|---|
| 105 Lichfield Road | £ 645,000 | 0.01 KM |
| 97 Lichfield Road | £ 880,000 | 0.09 KM |
| 1 Norfolk Gardens | £ 310,000 | 0.18 KM |
| 1 Wyvern Close | £ 440,000 | 0.20 KM |
| 20 Little Sutton Lane | £ 500,000 | 0.20 KM |