Braithwait says ..
This is a rarely available, full of character, light and spacious, 1/2 bedroom upper ground floor flat in this popular mansion block situated in a highly sought-after area of Maida Vale, just opposite the BBC Studios and within short walking distance to Warwick Avenue and Maida Vale underground s...
Property Oracle says ..
This 2-bedroom, 1-bathroom flat is located on Delaware Road in Maida Vale, a desirable area of Westminster, London. The property benefits from its proximity to excellent transport links, including Warwick Avenue and Maida Vale tube stations, and several outstandingly rated schools. The building itself is a handsome period property that presents well from the exterior. Internally, the photos suggest a clean and well-maintained flat, but with a slightly dated interior. The kitchen and bathroom, in particular, seem to be in functional but not updated condition. The most significant drawback to this property is the lack of private outdoor space; there is no mention of a garden or patio, which is unusual and may affect its desirability. The price of £625,000 is likely influenced by location and size. However, comparing to similar properties in the area, the price could be considered reasonable, but not exceptional value considering the need for some modernisation and the lack of land.
Therefore, we give this property 5 / 10. *Disclaimer: This is our option and does constitute a recommendation or financial advice. Do your own research. *
- Price
- 7
- Condition
- 6
- Location
- 8
- Land
- 1
- Bedrooms
- 2
- Bathrooms
- 1
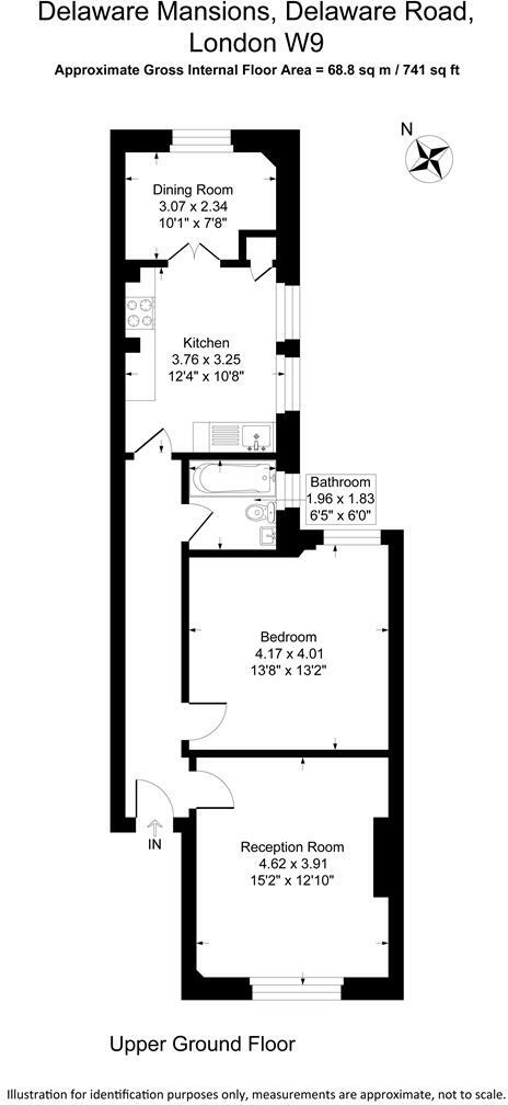
- Sqft (est)
- 741.00
The heatmap indicates the level of crime in the area. The color of the heatmap indicates the crime severity and recency.
Metrics Year-on-Year
- Average area value
- 630,000.00 £Decreased by 29.87 %
- Est sale value
- 670,605.00 £Decreased by 9.59 %
- Average area rental value
- 2,249.00 £/moDecreased by 5.58 %
- Est letting value
- 2,223.00 £/moIncreased by 50.00 %
- Est rental Yield
- 4.28 %Increased by 34.59 %
- Crime Rate
- 2.00 %Unchanged by 0.00 %
Agent Activity
Braithwait created the listing.
Nearby Schools
| Name | Type | Ofsted | Distance |
|---|---|---|---|
| Paddington Academy | Academy Sponsor Led | Outstanding | 0.20 KM |
| Ark Atwood Primary Academy | Free Schools | Outstanding | 0.39 KM |
| St Mary Magdalene Cofe Primary School | Voluntary Aided School | Good | 0.44 KM |
| St Saviour'S Cofe Primary School | Voluntary Aided School | Outstanding | 0.52 KM |
| Essendine Primary School | Community School | Good | 0.52 KM |
Images
Nearby Streets
| Name | Average Price | Average Sqft | Distance |
|---|---|---|---|
| Thorngate Road | £ 800,000 | 0 | 0.00 KM |
| Formosa Street | £ 0 | 0 | 0.00 KM |
| Shirland Road | £ 0 | 0 | 0.00 KM |
| Rowington Close | £ 0 | 0 | 0.00 KM |
| Sutherland Avenue | £ 0 | 0 | 0.00 KM |
Nearby Transport
| Name | NLC | TLC | Distance |
|---|---|---|---|
| Kilburn High Road | 1415 | KBN | 1.23 KM |
| Queens Park (London) | 1419 | QPW | 1.80 KM |
| Paddington | 3087 | PAD | 1.97 KM |
| South Hampstead | 1451 | SOH | 2.11 KM |
| West Hampstead | 1421 | WHD | 2.35 KM |
Nearby Listings
| Address | Price | Type | Score | Distance |
|---|---|---|---|---|
| Delaware Road, London | £ 625,000 | BUY | 5 / 10 | 0.00 KM |
| 60 Delaware Mansions, Delaware Road, Maida Vale, London, W9 2LJ | £ 520,000 | BUY | 4 / 10 | 0.01 KM |
| Delaware Mansions, Delaware Road, Maida Vale W9 | £ 860,000 | BUY | 5 / 10 | 0.01 KM |
| Delaware Road, London, W9 | £ 750,000 | BUY | 6 / 10 | 0.02 KM |
| Delaware Mansions, Delaware Road, Maida Vale, London, W9 | £ 725,000 | BUY | 7 / 10 | 0.04 KM |
Nearby Properties
| Address | Price | Distance |
|---|---|---|
| 103c Shirland Road | £ 355,000 | 0.11 KM |
| 65 Shirland Road | £ 1,407,000 | 0.11 KM |
| 69a Shirland Road | £ 790,000 | 0.11 KM |
| 81a Shirland Road | £ 177,000 | 0.11 KM |
| 65a Shirland Road | £ 1,550,000 | 0.12 KM |