Woods Allsworth says ..
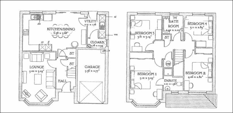
A delightful four bedroom detached family home which features many upgrades throughout featuring enclosed gardens, integral garage and driveway located on the edge of the popular Moorland reach development in Kingsteignton The accommodation begins with an entrance hallway featuring wood-effect...
Property Oracle says ..
Therefore, we give this property 7 / 10. *Disclaimer: This is our option and does constitute a recommendation or financial advice. Do your own research. *
- Price
- 7
- Condition
- 9
- Location
- 7
- Land
- 7
- Bedrooms
- 4
- Bathrooms
- 3
- Sqft (est)
- 1,354.81
The heatmap indicates the level of crime in the area. The color of the heatmap indicates the crime severity and recency.
Metrics Year-on-Year
- Average area value
- 305,488.00 £Decreased by 9.52 %
- Est sale value
- 476,893.12 £Increased by 33.84 %
- Average area rental value
- 1,004.00 £/moDecreased by 1.08 %
- Est letting value
- 1,354.81 £/mo
- Est rental Yield
- 3.94 %Increased by 9.14 %
- Crime Rate
- 0.00 %
from 337,636.00 £
from 356,315.03 £
from 1,015.00 £/mo
from 0.00 £/mo
from 3.61 %
from 0.00 %
Agent Activity
Woods Allsworth created the listing.
Nearby Schools
| Name | Type | Ofsted | Distance |
|---|---|---|---|
| Kingsteignton School | Free Schools | Good | 0.56 KM |
| Teign School | Academy Converter | Requires improvement | 0.67 KM |
| St Michael'S Church Of England Primary School | Voluntary Controlled School | Requires improvement | 1.42 KM |
| Rydon Primary School | Academy Converter | Good | 1.76 KM |
| South Devon Utc | University Technical College | Good | 1.92 KM |
Images
Nearby Streets
| Name | Average Price | Average Sqft | Distance |
|---|---|---|---|
| Burnham Court | £ 0 | 0 | 0.00 KM |
| Fore Street | £ 0 | 0 | 0.00 KM |
| Crossley Moor Road | £ 0 | 0 | 0.00 KM |
| Victory Close | £ 625,000 | 0 | 0.00 KM |
| Sunnybank | £ 600,000 | 0 | 0.00 KM |
Nearby Transport
| Name | NLC | TLC | Distance |
|---|---|---|---|
| Newton Abbot | 3426 | NTA | 2.54 KM |
Nearby Listings
| Address | Price | Type | Score | Distance |
|---|---|---|---|---|
| Grebe Way, Kingsteignton | £ 439,950 | BUY | 7 / 10 | 0.00 KM |
| Grebe Way, Kingsteignton | £ 425,000 | BUY | Unknown | 0.04 KM |
| Goldfinch Close, Newton Abbot | £ 250,000 | BUY | 7 / 10 | 0.07 KM |
| Robin Way, Newton Abbot | £ 400,000 | BUY | 7 / 10 | 0.09 KM |
| Robin Way, Kingsteignton | £ 435,000 | BUY | 7 / 10 | 0.09 KM |
Nearby Properties
| Address | Price | Distance |
|---|---|---|
| 74 Robin Way | £ 425,000 | 0.18 KM |
| 14 Badgers Close | £ 247,500 | 0.57 KM |
| 18 Badgers Close | £ 74,950 | 0.57 KM |
| 15 Badgers Close | £ 141,500 | 0.57 KM |
| 12 Badgers Close | £ 150,000 | 0.57 KM |