Langhams Estate Agents says ..
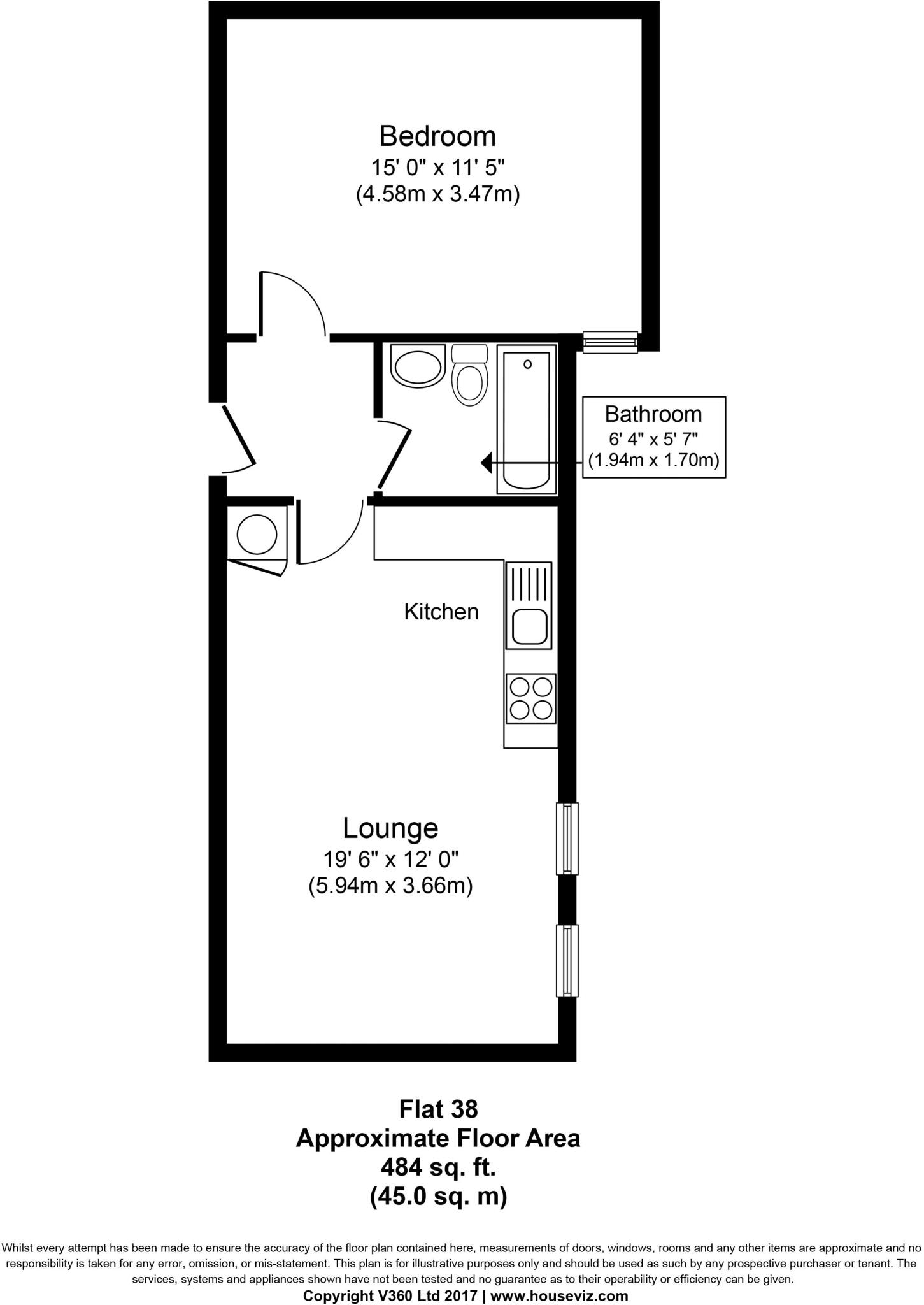
A bright one-bedroom apartment located on the 4th floor of Princes House. This spacious apartment offers a large double bedroom, open-plan style living and kitchen a 3-piece bathroom suite.The property is located conveniently for Slough train and bus station as well as the High Street.991 Year...
Property Oracle says ..
This is a one-bedroom flat located on Wellington Street in Slough. The property is in a central location, close to local amenities and transportation links, including Slough train station. The flat itself appears to be in generally good condition, with a modern bathroom and kitchen. The lack of private land may be a drawback for some buyers. The asking price of £200,000 seems reasonable given the location, condition, and size of the property.
Therefore, we give this property 5 / 10. *Disclaimer: This is our option and does constitute a recommendation or financial advice. Do your own research. *
- Price
- 7
- Condition
- 7
- Location
- 7
- Land
- 1
- Bedrooms
- 1
- Bathrooms
- 1
- Sqft (est)
- 484.00
The heatmap indicates the level of crime in the area. The color of the heatmap indicates the crime severity and recency.
Metrics Year-on-Year
- Average area value
- 487,124.00 £Increased by 94.35 %
- Est sale value
- 298,144.00 £Increased by 112.41 %
- Average area rental value
- 1,220.00 £/moIncreased by 6.46 %
- Est letting value
- 484.00 £/moUnchanged by 0.00 %
- Est rental Yield
- 3.01 %Decreased by 45.17 %
- Crime Rate
- 11.00 %Unchanged by 0.00 %
Agent Activity
Langhams Estate Agents created the listing.
Nearby Schools
| Name | Type | Ofsted | Distance |
|---|---|---|---|
| Littledown School | Academy Special Converter | Good | 0.70 KM |
| Darul Madinah | Other Independent Special School | 0.90 KM | |
| Slough And Eton Church Of England Business And Enterprise College | Academy Converter | Outstanding | 0.90 KM |
| James Elliman Academy | Academy Sponsor Led | Good | 0.99 KM |
| Elliman Avenue Children'S Centre | Children's Centre | 1.02 KM |
Images
Nearby Streets
| Name | Average Price | Average Sqft | Distance |
|---|---|---|---|
| Heritage Walk | £ 0 | 0 | 0.00 KM |
| Chapel Street | £ 0 | 0 | 0.00 KM |
| Finefield Walk1 | £ 457,000 | 0 | 0.00 KM |
| Victoria Street | £ 532,500 | 0 | 0.00 KM |
| Arthur Road | £ 547,500 | 0 | 0.00 KM |
Nearby Transport
| Name | NLC | TLC | Distance |
|---|---|---|---|
| Slough | 3172 | SLO | 0.78 KM |
| Windsor And Eton Riverside | 5672 | WNR | 2.92 KM |
| Windsor And Eton Central | 3175 | WNC | 3.32 KM |
| Datchet | 5668 | DAT | 3.72 KM |
| Burnham | 3176 | BNM | 5.49 KM |
Nearby Listings
| Address | Price | Type | Score | Distance |
|---|---|---|---|---|
| High Street, Slough | £ 200,000 | BUY | 5 / 10 | 0.00 KM |
| High Street, Slough | £ 175,000 | BUY | 6 / 10 | 0.05 KM |
| High Street, Slough | £ 235,000 | BUY | 6 / 10 | 0.06 KM |
| High Street, Slough | £ 160,000 | BUY | 5 / 10 | 0.06 KM |
| High Street, Slough | £ 200,000 | BUY | 5 / 10 | 0.07 KM |
Nearby Properties
| Address | Price | Distance |
|---|---|---|
| 4b High Street | £ 450,000 | 0.11 KM |
| 73 Gatewick Close | £ 138,000 | 0.17 KM |
| 81 Gatewick Close | £ 270,000 | 0.17 KM |
| 33 Gatewick Close | £ 280,000 | 0.17 KM |
| 63 Gatewick Close | £ 128,000 | 0.17 KM |