Laburnum Walk, Keynsham, Bristol
By Davies & Way
£ 300,000
Reviews
3 out of 5 stars
Davies & Way says ..
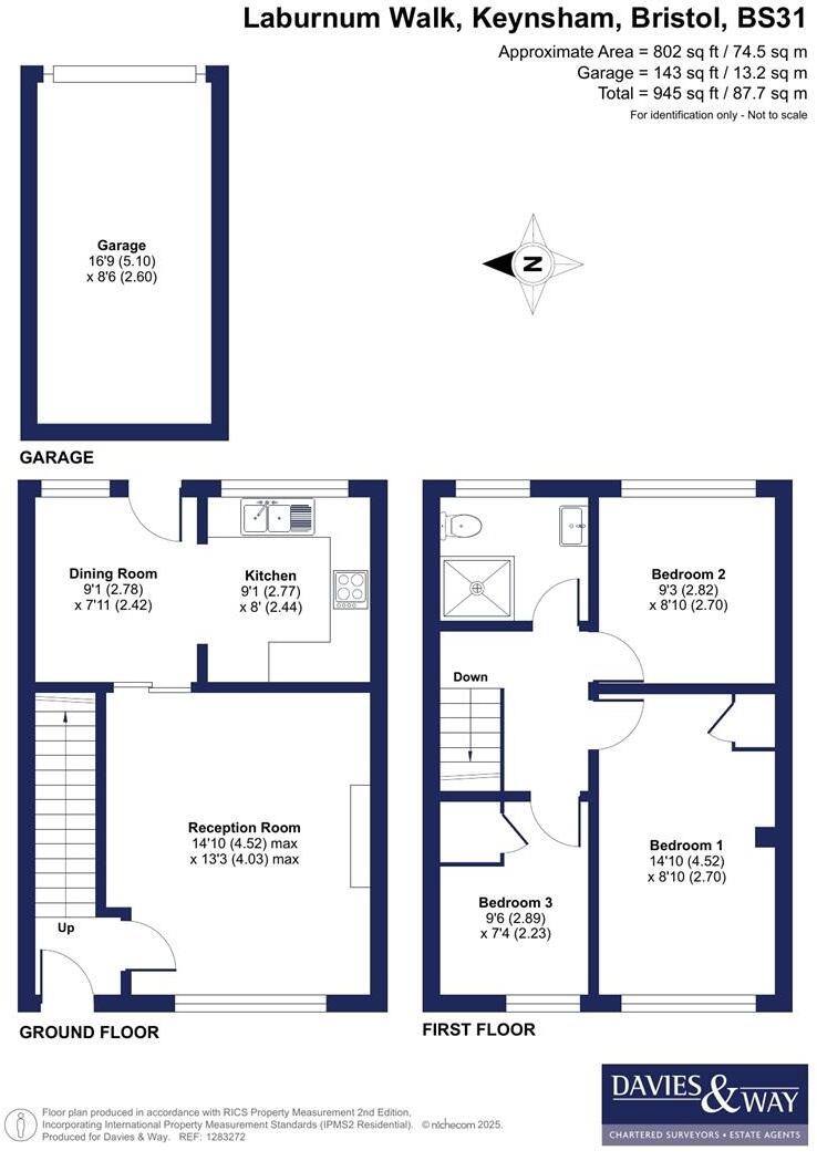
This well-proportioned three-bedroom terraced home presents a fantastic opportunity for first-time buyers looking to add their own personal touch. The ground floor accommodation comprises an entrance hallway that leads to a spacious living room, a separate dining room, and a recently mod...
Property Oracle says ..
This three-bedroom terraced house in Keynsham offers a blend of practicality and affordability. While the property shows signs of needing some updating, its location near schools and transport links, coupled with a small garden, makes it a potentially attractive option for families or first-time buyers. The list price appears competitive compared to area averages, but a more detailed comparison with similar properties would solidify this assessment.
Therefore, we give this property 6 / 10. *Disclaimer: This is our option and does constitute a recommendation or financial advice. Do your own research. *
- Price
- 7
- Condition
- 7
- Location
- 8
- Land
- 4
- Bedrooms
- 3
- Bathrooms
- 1
- Sqft (est)
- 802.00
The heatmap indicates the level of crime in the area. The color of the heatmap indicates the crime severity and recency.
Metrics Year-on-Year
- Average area value
- 376,920.00 £Increased by 5.40 %
- Est sale value
- 324,810.00 £Increased by 32.79 %
- Average area rental value
- 1,614.00 £/moDecreased by 13.50 %
- Est letting value
- 802.00 £/moUnchanged by 0.00 %
- Est rental Yield
- 5.14 %Decreased by 17.89 %
- Crime Rate
- 22.00 %Unchanged by 0.00 %
Agent Activity
Davies & Way created the listing.
Nearby Schools
| Name | Type | Ofsted | Distance |
|---|---|---|---|
| Castle Primary School | Academy Sponsor Led | 0.67 KM | |
| St Keyna Primary School | Community School | Good | 0.82 KM |
| St John'S Church Of England Primary School | Academy Converter | 1.10 KM | |
| Broadlands Academy | Academy Sponsor Led | Good | 1.36 KM |
| Keynsham Children'S Centre | Children's Centre | 1.64 KM |
Images
Nearby Streets
| Name | Average Price | Average Sqft | Distance |
|---|---|---|---|
| Pine Court | £ 302,500 | 0 | 0.00 KM |
| Walton Close | £ 300,000 | 0 | 0.00 KM |
| Harlech Close | £ 0 | 0 | 0.00 KM |
| Willow Walk | £ 0 | 0 | 0.00 KM |
| Heathfield Close | £ 475,000 | 0 | 0.00 KM |
Nearby Transport
| Name | NLC | TLC | Distance |
|---|---|---|---|
| Keynsham | 3237 | KYN | 2.37 KM |
| Lawrence Hill | 3225 | LWH | 8.18 KM |
| Bristol Temple Meads | 3231 | BRI | 9.01 KM |
| Stapleton Road | 3250 | SRD | 9.10 KM |
| Bedminster | 3245 | BMT | 9.79 KM |
Nearby Listings
| Address | Price | Type | Score | Distance |
|---|---|---|---|---|
| Laburnum Walk, Keynsham, Bristol | £ 300,000 | BUY | 6 / 10 | 0.00 KM |
| Maple Walk, Keynsham | £ 310,000 | BUY | 6 / 10 | 0.04 KM |
| May Tree Walk, Keynsham, Bristol, BS31 | £ 370,000 | BUY | 7 / 10 | 0.09 KM |
| Holmoak Road, Keynsham, Bristol | £ 350,000 | BUY | 7 / 10 | 0.10 KM |
| Goldcrest Walk, Keynsham | £ 475,000 | BUY | 7 / 10 | 0.14 KM |
Nearby Properties
| Address | Price | Distance |
|---|---|---|
| 9 Laburnum Walk | £ 235,000 | 0.01 KM |
| 8 Laburnum Walk | £ 250,000 | 0.01 KM |
| 3 Laburnum Walk | £ 174,500 | 0.05 KM |
| 4 Laburnum Walk | £ 189,000 | 0.05 KM |
| 10 Laburnum Walk | £ 326,000 | 0.05 KM |