CA
Brunswick Road, Deepcut, GU16 6RN
By Cala Homes Thames
£ 539,950
Reviews
3 out of 5 stars
Cala Homes Thames says ..
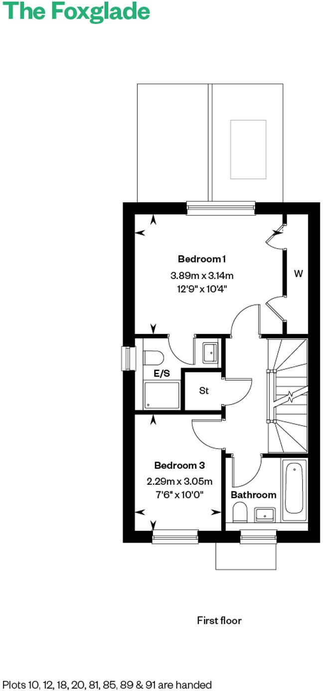
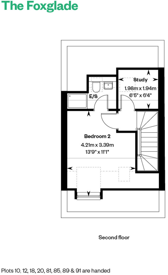
Flexible living across 3 storeys. OPEN PLAN SITTING/FAMILY ROOM. EN SUITES to BEDROOMS 1 & 2. SEPERATE STUDY on top floor. DRIVEWAY PARKING. Find out more.
Property Oracle says ..
Therefore, we give this property 7 / 10. *Disclaimer: This is our option and does constitute a recommendation or financial advice. Do your own research. *
- Price
- 8
- Condition
- 10
- Location
- 7
- Land
- 5
- Bedrooms
- 3
- Bathrooms
- 0
- Sqft (est)
- 360.22
The heatmap indicates the level of crime in the area. The color of the heatmap indicates the crime severity and recency.
Metrics Year-on-Year
- Average area value
- 602,000.00 £Increased by 36.20 %
- Est sale value
- 167,142.08 £Increased by 10.21 %
- Average area rental value
- 1,100.00 £/moDecreased by 51.92 %
- Est letting value
- 0.00 £/moDecreased by 100.00 %
- Est rental Yield
- 2.19 %Decreased by 64.73 %
- Crime Rate
- 0.00 %
from 441,997.00 £
from 151,652.62 £
from 2,288.00 £/mo
from 720.44 £/mo
from 6.21 %
from 0.00 %
Agent Activity
Cala Homes Thames created the listing.
Nearby Schools
| Name | Type | Ofsted | Distance |
|---|---|---|---|
| Portesbery School | Community Special School | Good | 0.80 KM |
| Heather Ridge Infant School | Community School | Outstanding | 2.50 KM |
| Ravenscote Junior School | Academy Converter | 2.99 KM | |
| Carwarden House Community School | Academy Special Converter | Good | 3.01 KM |
| Sandringham Infant & Nursery Academy | Academy Converter | Good | 3.10 KM |
Images
Nearby Streets
| Name | Average Price | Average Sqft | Distance |
|---|---|---|---|
| Bracken Hill | £ 0 | 0 | 0.00 KM |
| Forest Drive | £ 0 | 0 | 0.00 KM |
| Union Road | £ 0 | 0 | 0.00 KM |
| Mindenhurst Northern Access Roundabout | £ 0 | 0 | 0.00 KM |
| Wilson Court | £ 0 | 0 | 0.00 KM |
Nearby Transport
| Name | NLC | TLC | Distance |
|---|---|---|---|
| Ash Vale | 5547 | AHV | 4.57 KM |
| Farnborough North | 5688 | FNN | 4.92 KM |
| North Camp | 5636 | NCM | 4.95 KM |
| Frimley | 5683 | FML | 5.36 KM |
| Camberley | 5682 | CAM | 6.03 KM |
Nearby Listings
| Address | Price | Type | Score | Distance |
|---|---|---|---|---|
| Brunswick Road, Deepcut, GU16 6RN | £ 539,950 | BUY | 7 / 10 | 0.00 KM |
| Brunswick Road, Deepcut, GU16 6RN | £ 699,950 | BUY | 7 / 10 | 0.00 KM |
| Brunswick Road, Deepcut, GU16 6RN | £ 545,000 | BUY | 6 / 10 | 0.00 KM |
| Brunswick Road, Deepcut, GU16 6RN | £ 725,000 | BUY | 6 / 10 | 0.00 KM |
| Brunswick Road, Deepcut, GU16 6RN | £ 565,000 | BUY | 6 / 10 | 0.00 KM |
Nearby Properties
| Address | Price | Distance |
|---|---|---|
| 7 Strawberry Court | £ 275,000 | 0.55 KM |
| 10 Strawberry Court | £ 250,000 | 0.55 KM |
| 18 Strawberry Court | £ 229,950 | 0.55 KM |
| 2 Strawberry Court | £ 239,995 | 0.55 KM |
| 25 Strawberry Court | £ 335,000 | 0.55 KM |