Keel House, Quayside, Hartlepool, TS24
By Castledene Sales & Lettings
£ 115,000
Reviews
2 out of 5 stars
Castledene Sales & Lettings says ..
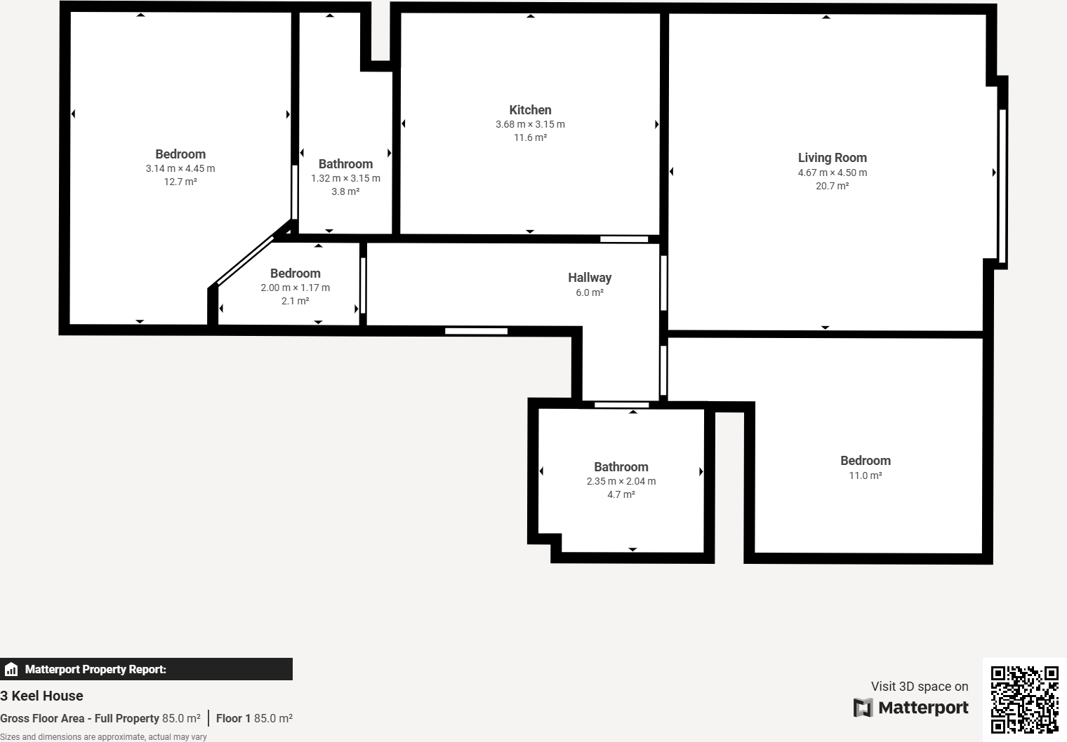
Modern First Floor Apartment in a sought-after location. This inviting property boasts two well-lit bedrooms, a spacious living area, and a modern kitchen. The apartment benefits from a private balcony, perfect for enjoying the scenic maritime views. The property is well-maintained and offers res...
Property Oracle says ..
This property is a two bedroom apartment located in Hartlepool. The apartment is in good condition and benefits from having two bathrooms. The location is good with nearby transportation links and schools. The property is listed at £115,000, which is below the average price for the area. However, the average price per sqft is higher than the average for the area. The apartment has a small balcony overlooking the marina. There is no garden.
Therefore, we give this property 5 / 10. *Disclaimer: This is our option and does constitute a recommendation or financial advice. Do your own research. *
- Price
- 7
- Condition
- 8
- Location
- 7
- Land
- 1
- Bedrooms
- 2
- Bathrooms
- 2
- Sqft (est)
- 914.93
The heatmap indicates the level of crime in the area. The color of the heatmap indicates the crime severity and recency.
Metrics Year-on-Year
- Average area value
- 110,992.00 £Decreased by 24.83 %
- Est sale value
- 96,982.58 £Decreased by 44.79 %
- Average area rental value
- 625.00 £/moDecreased by 11.47 %
- Est letting value
- 0.00 £/mo
- Est rental Yield
- 6.76 %Increased by 17.77 %
- Crime Rate
- 6.00 %Unchanged by 0.00 %
Agent Activity
Castledene Sales & Lettings created the listing.
Nearby Schools
| Name | Type | Ofsted | Distance |
|---|---|---|---|
| St Joseph'S Catholic Primary School, Hartlepool | Academy Converter | 1.01 KM | |
| Ward Jackson Church Of England Va Primary School | Voluntary Aided School | Good | 1.31 KM |
| Hartlepool College Of Further Education | Further Education | Good | 1.33 KM |
| Brougham Primary School | Academy Converter | Good | 1.71 KM |
| St Bega'S Catholic Primary School, Hartlepool | Academy Converter | 1.71 KM |
Images
Nearby Streets
| Name | Average Price | Average Sqft | Distance |
|---|---|---|---|
| Huckelhoven Way | £ 0 | 0 | 0.00 KM |
| Hilda Walk | £ 70,000 | 0 | 0.00 KM |
| Drive Thru | £ 0 | 0 | 0.00 KM |
| Scarborough Street | £ 0 | 0 | 0.00 KM |
| Lancaster Road | £ 245,000 | 0 | 0.00 KM |
Nearby Transport
| Name | NLC | TLC | Distance |
|---|---|---|---|
| Hartlepool | 8009 | HPL | 0.90 KM |
| Seaton Carew | 8007 | SEC | 3.37 KM |
Nearby Listings
| Address | Price | Type | Score | Distance |
|---|---|---|---|---|
| Keel House, Quayside, Hartlepool, TS24 | £ 115,000 | BUY | 5 / 10 | 0.00 KM |
| Mayflower House, Marina | £ 110,000 | BUY | 6 / 10 | 0.04 KM |
| Merchant House Quayside, Marina | £ 100,000 | BUY | 5 / 10 | 0.05 KM |
| Chart House, Marina, Hartlepool | £ 97,500 | BUY | 6 / 10 | 0.05 KM |
| Quayside, Hartlepool, TS24 0 | £ 115,000 | BUY | 7 / 10 | 0.05 KM |
Nearby Properties
| Address | Price | Distance |
|---|---|---|
| Mayflower House | £ 108,000 | 0.03 KM |
| 14a Drake House | £ 105,000 | 0.07 KM |
| 4 Maritime Close | £ 158,000 | 0.22 KM |
| 11 Maritime Close | £ 145,000 | 0.22 KM |
| 7 Maritime Close | £ 55,150 | 0.22 KM |