Hunters says ..
A well-presented two-bedroom house with a garden and a garage located within a sought-after development!
Property Oracle says ..
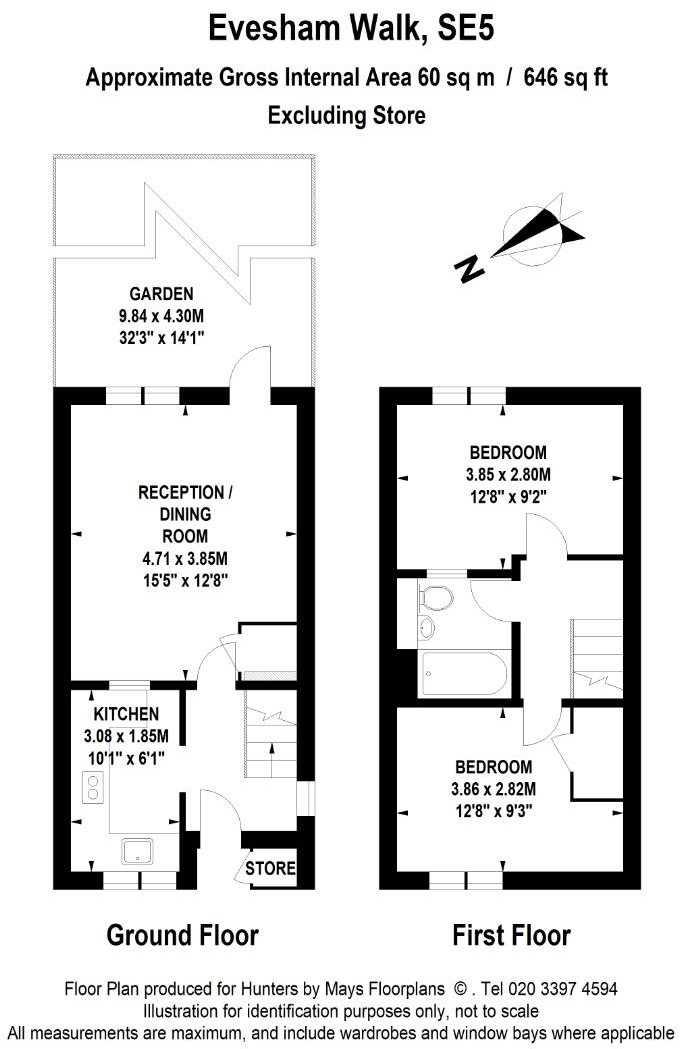
This property is a 2 bedroom, 1 bathroom house located in the St Giles area of Southwark, London. The list price is £625,000, and the property has a size of 645.83 sqft. The average price for properties in the area is £610,423, with an average price per sqft of £631.00. The property benefits from a private garden, which is a desirable feature in London. The property appears to be in good condition, with a modern kitchen and bathroom. While the overall condition is good, there is no significant evidence of major renovations or updates. The location is convenient, with nearby transportation links and schools. However, the plot size is small (0.00 sqft). Considering the location, condition, and size, the list price seems reasonable compared to similar properties in the area. However, the lack of plot size may influence the overall value perception.
Therefore, we give this property 6 / 10. *Disclaimer: This is our option and does constitute a recommendation or financial advice. Do your own research. *
- Price
- 7
- Condition
- 8
- Location
- 7
- Land
- 4
- Bedrooms
- 2
- Bathrooms
- 1
- Sqft (est)
- 645.83
The heatmap indicates the level of crime in the area. The color of the heatmap indicates the crime severity and recency.
Metrics Year-on-Year
- Average area value
- 723,750.00 £Decreased by 4.18 %
- Est sale value
- 678,121.50 £Increased by 33.59 %
- Average area rental value
- 2,649.00 £/moIncreased by 13.89 %
- Est letting value
- 1,937.49 £/moIncreased by 50.00 %
- Est rental Yield
- 4.39 %Increased by 18.65 %
- Crime Rate
- 10.00 %Unchanged by 0.00 %
Agent Activity
Hunters created the listing.
Nearby Schools
| Name | Type | Ofsted | Distance |
|---|---|---|---|
| Bethlem And Maudsley Hospital School | Community Special School | Outstanding | 0.21 KM |
| Lyndhurst Primary School | Academy Converter | 0.34 KM | |
| Arco Academy | Other Independent School | 0.36 KM | |
| The Hospital And Home Tuition Sick Children'S Service | Miscellaneous | 0.41 KM | |
| Crawford Primary School And Children'S Centre | Children's Centre | 0.44 KM |
Images
Nearby Streets
| Name | Average Price | Average Sqft | Distance |
|---|---|---|---|
| Ashworth Close | £ 0 | 0 | 0.00 KM |
| Jephson Street | £ 0 | 0 | 0.00 KM |
| Kimpton Road | £ 376,667 | 0 | 0.00 KM |
| Ribbon Dance Mews | £ 0 | 0 | 0.00 KM |
| Harvey Road | £ 0 | 0 | 0.00 KM |
Nearby Transport
| Name | NLC | TLC | Distance |
|---|---|---|---|
| Denmark Hill | 5421 | DMK | 0.43 KM |
| Loughborough Junction | 5082 | LGJ | 1.39 KM |
| East Dulwich | 5358 | EDW | 1.61 KM |
| North Dulwich | 5429 | NDL | 1.95 KM |
| Peckham Rye | 5423 | PMR | 2.38 KM |
Nearby Listings
| Address | Price | Type | Score | Distance |
|---|---|---|---|---|
| Evesham Walk, London, SE5 | £ 625,000 | BUY | 6 / 10 | 0.00 KM |
| Cuthill Walk, London | £ 675,000 | BUY | 6 / 10 | 0.08 KM |
| Kerfield Place, Camberwell, London, SE5 | £ 700,000 | BUY | Unknown | 0.09 KM |
| Kerfield Place, Camberwell, London, SE5 | £ 875,000 | BUY | Unknown | 0.09 KM |
| Kerfield Place, London, SE5 | £ 700,000 | BUY | 6 / 10 | 0.10 KM |
Nearby Properties
| Address | Price | Distance |
|---|---|---|
| 7 Evesham Walk | £ 555,000 | 0.01 KM |
| 4 Evesham Walk | £ 69,000 | 0.01 KM |
| 8 Evesham Walk | £ 457,000 | 0.01 KM |
| 11 Evesham Walk | £ 295,000 | 0.01 KM |
| 15 Evesham Walk | £ 320,000 | 0.01 KM |