Chancellors says ..
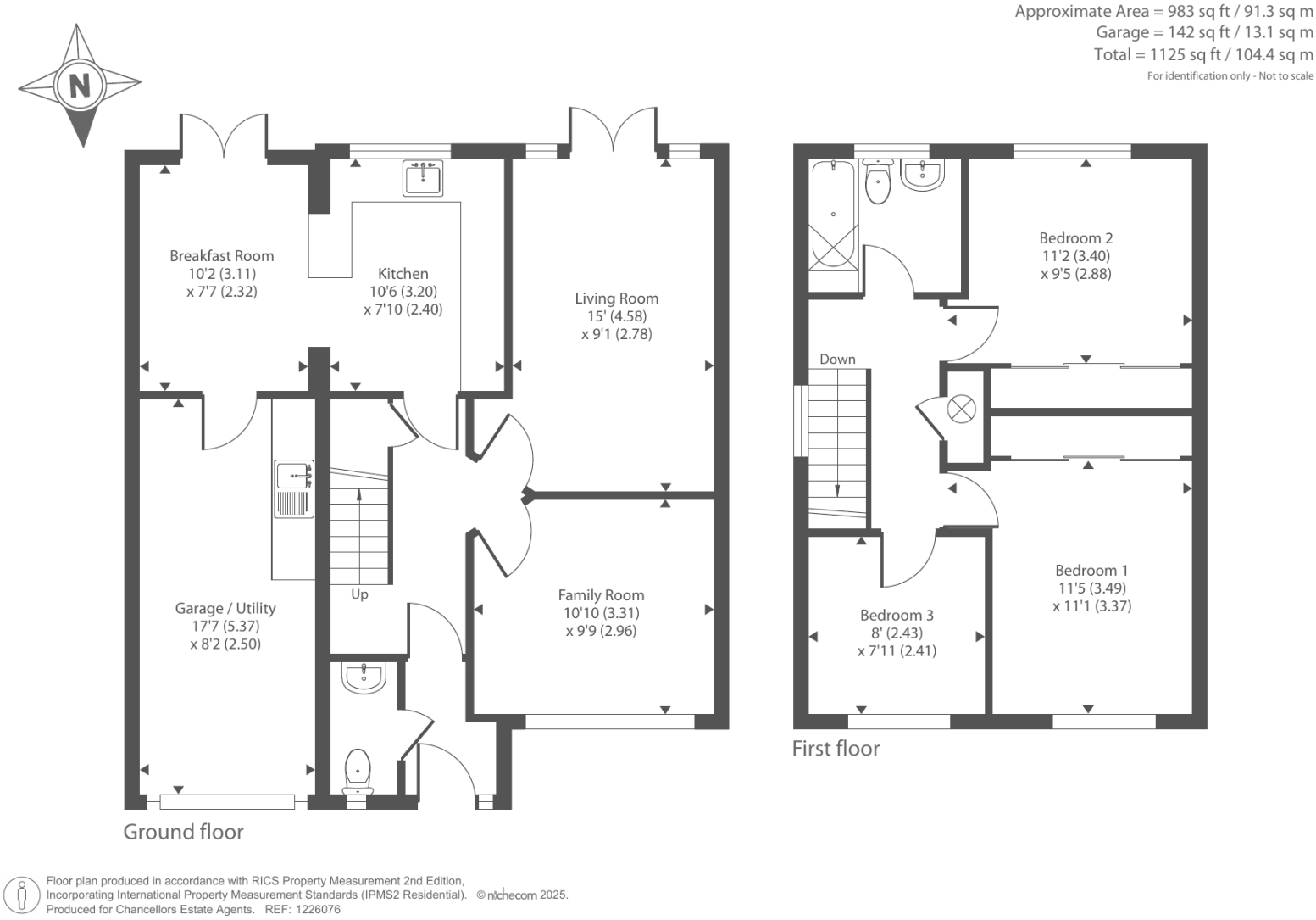
This family home features a kitchen/diner with doors opening to the south-facing rear garden, a lounge & study, and three bedrooms to the first floor. To the outside space, the paved driveway provides off-street parking for two/three vehicles and a garage with a utility area.
Property Oracle says ..
This three-bedroom property located in Abingdon, Oxfordshire, is marketed as a family home. The property features a modernised kitchen/diner, which opens onto a south-facing rear garden. The images show a functional, if somewhat dated, interior. The home also includes a garage and off-street parking.
The property’s location in Abingdon offers access to several well-regarded primary schools, although the precise distance to shops and other amenities would need to be verified. The proximity to a train station, albeit at a short drive/bus journey distance, adds to the convenience of the location.
The garden appears to be of average size, providing outdoor space. While the kitchen appears recently updated, other aspects of the house suggest potential need for some level of modernisation. The overall condition suggests a property that is habitable and functional but could benefit from some updates to enhance its appeal and value.
The list price of £425,000 requires further consideration, particularly with the limited information available on the square footage and plot size of the nearby comparable properties. Without this additional data, a precise judgment on value cannot be made, however at first glance the price seems relatively inline with the area.
Therefore, we give this property 6 / 10. *Disclaimer: This is our option and does constitute a recommendation or financial advice. Do your own research. *
- Price
- 7
- Condition
- 6
- Location
- 7
- Land
- 4
- Bedrooms
- 3
- Bathrooms
- 0
- Sqft (est)
- 1,125.00
The heatmap indicates the level of crime in the area. The color of the heatmap indicates the crime severity and recency.
Metrics Year-on-Year
- Average area value
- 462,500.00 £Increased by 12.12 %
- Est sale value
- 730,125.00 £Increased by 67.27 %
- Average area rental value
- 1,906.00 £/moIncreased by 49.61 %
- Est letting value
- 2,250.00 £/moIncreased by 100.00 %
- Est rental Yield
- 4.95 %Increased by 33.42 %
- Crime Rate
- 7.00 %Unchanged by 0.00 %
Agent Activity
Chancellors created the listing.
Nearby Schools
| Name | Type | Ofsted | Distance |
|---|---|---|---|
| The Unicorn School | Other Independent Special School | 0.58 KM | |
| Caldecott Primary School | Community School | Good | 0.74 KM |
| Thameside Primary School | Academy Converter | Good | 0.87 KM |
| Carswell Community Primary School | Community School | Good | 1.16 KM |
| St Helen And St Katharine | Other Independent School | 1.22 KM |
Images
Nearby Streets
| Name | Average Price | Average Sqft | Distance |
|---|---|---|---|
| Burton Close | £ 0 | 0 | 0.00 KM |
| Suffolk Way | £ 0 | 0 | 0.00 KM |
| Hyde Close | £ 0 | 0 | 0.00 KM |
| Drayton Road | £ 0 | 0 | 0.00 KM |
| Park Crescent | £ 1,285,000 | 0 | 0.00 KM |
Nearby Transport
| Name | NLC | TLC | Distance |
|---|---|---|---|
| Radley | 3118 | RAD | 6.96 KM |
| Appleford | 3109 | APF | 7.04 KM |
| Culham | 3107 | CUM | 7.15 KM |
| Didcot Parkway | 3030 | DID | 8.80 KM |
Nearby Listings
| Address | Price | Type | Score | Distance |
|---|---|---|---|---|
| Medlicott Drive, Abingdon, OX14 | £ 425,000 | BUY | 7 / 10 | 0.02 KM |
| Medlicott Drive, Abingdon, OX14 | £ 460,000 | BUY | 7 / 10 | 0.02 KM |
| Shepherd Gardens, Abingdon | £ 420,000 | BUY | 6 / 10 | 0.09 KM |
| Shepherd Gardens, Abingdon | £ 400,000 | BUY | Unknown | 0.09 KM |
| Francis Little Drive, Abingdon, OX14 | £ 350,000 | BUY | 7 / 10 | 0.10 KM |
Nearby Properties
| Address | Price | Distance |
|---|---|---|
| 7 Medlicott Drive | £ 250,000 | 0.07 KM |
| 20 Medlicott Drive | £ 250,000 | 0.07 KM |
| 2 Medlicott Drive | £ 182,500 | 0.07 KM |
| 21 Medlicott Drive | £ 360,000 | 0.07 KM |
| 27 Medlicott Drive | £ 348,000 | 0.07 KM |