Newtown, Toddington, Cheltenham
By Hughes Sealey
£ 725,000
Reviews
3 out of 5 stars
Hughes Sealey says ..
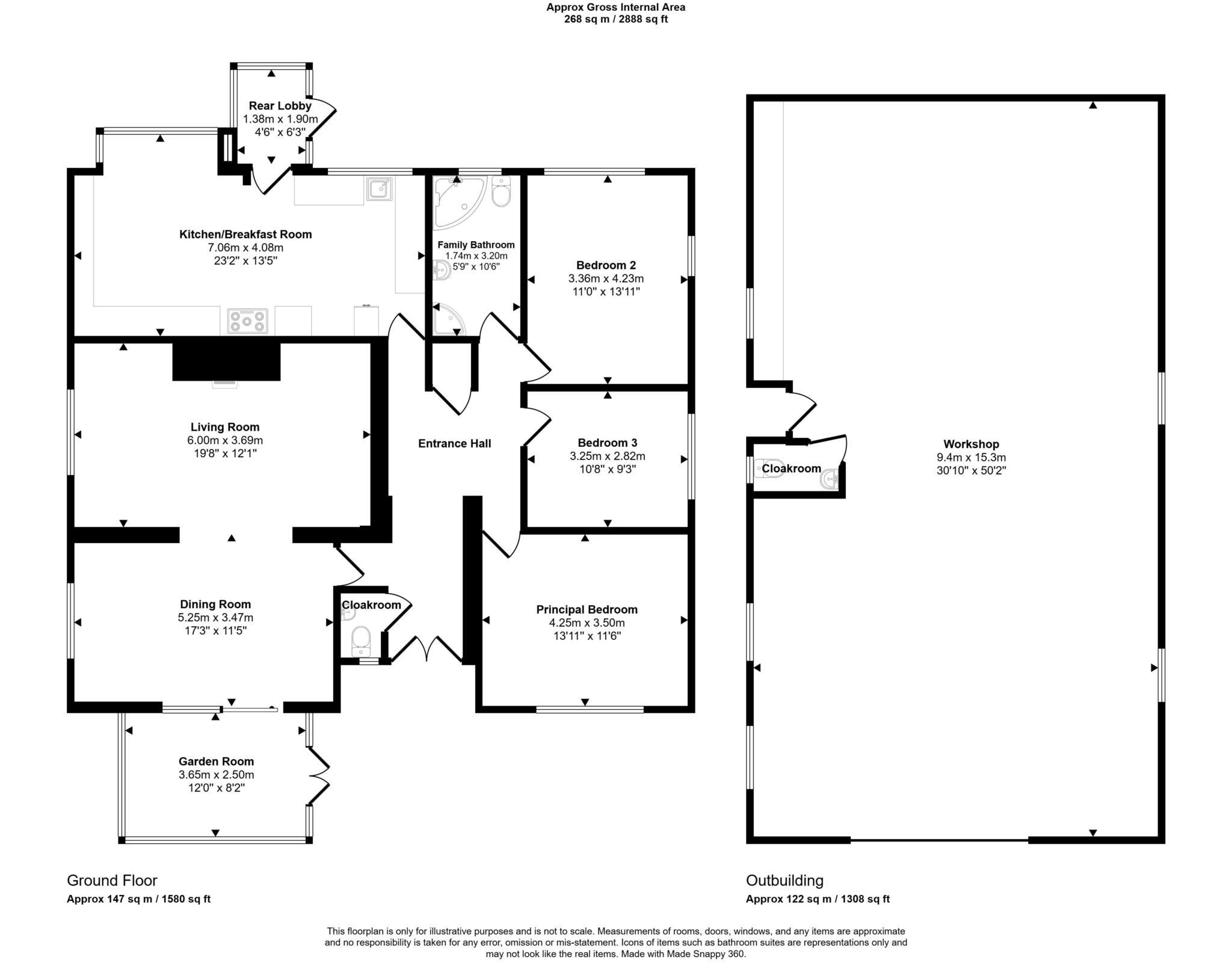
A lovely three double bedroom detached bungalow set within 0.4 acre of mature and private grounds.Internally offering two reception rooms, garden room and stunning kitchen/breakfast room and family bathroom whilst externally enjoying driveway parking and a detached workshop measuring 15m x 9m
Property Oracle says ..
This detached property is located in Newtown, Toddington, Cheltenham, Gloucestershire. The house has 3 bedrooms and 1 bathroom and boasts a substantial 2,890.71 sqft of living space.
The property appears to be in good condition, with a well-maintained interior and exterior. The kitchen and bathroom appear modern.
The property benefits from a large garden, which includes a patio area. The plot size is not specified in square feet.
The list price is £725,000. The average price in the area is £474,052, and the average price per sqft is £579. The property’s price per sqft is £250.80, making it appear to be good value for money when considering the size of the property. Nearby schools include Isbourne Valley School and Winchcombe Abbey Church Of England Primary School.
Therefore, we give this property 7 / 10. *Disclaimer: This is our option and does constitute a recommendation or financial advice. Do your own research. *
- Price
- 9
- Condition
- 7
- Location
- 7
- Land
- 8
- Bedrooms
- 3
- Bathrooms
- 1
- Sqft (est)
- 2,890.71
The heatmap indicates the level of crime in the area. The color of the heatmap indicates the crime severity and recency.
Metrics Year-on-Year
- Average area value
- 474,052.00 £Decreased by 7.42 %
- Est sale value
- 1,673,721.09 £Increased by 48.84 %
- Average area rental value
- 950.00 £/moDecreased by 46.24 %
- Est letting value
- 2,890.71 £/moUnchanged by 0.00 %
- Est rental Yield
- 2.40 %Decreased by 42.03 %
- Crime Rate
- 52.00 %Unchanged by 0.00 %
Agent Activity
Hughes Sealey created the listing.
Nearby Schools
| Name | Type | Ofsted | Distance |
|---|---|---|---|
| Isbourne Valley School | Community School | Good | 1.62 KM |
| Winchcombe School | Academy Converter | Good | 4.40 KM |
| Winchcombe Library Children'S Centre | Children's Centre | 5.33 KM | |
| Winchcombe Abbey Church Of England Primary School | Academy Converter | Outstanding | 5.40 KM |
| Gretton Primary School | Academy Converter | Good | 6.39 KM |
Images
Nearby Streets
| Name | Average Price | Average Sqft | Distance |
|---|---|---|---|
| Bramley Close | £ 822,500 | 0 | 0.00 KM |
Nearby Listings
| Address | Price | Type | Score | Distance |
|---|---|---|---|---|
| Newtown, Toddington, Cheltenham | £ 725,000 | BUY | 7 / 10 | 0.00 KM |
| Newtown, Toddington, Cheltenham, Gloucestershire, GL54 | £ 440,000 | BUY | 7 / 10 | 0.14 KM |
| Apple Tree Close, Cheltenham | £ 800,000 | BUY | 8 / 10 | 0.15 KM |
| Newtown, Toddington | £ 500,000 | BUY | 7 / 10 | 0.15 KM |
| Bramley Close, Toddington, Cheltenham, Gloucestershire, GL54 | £ 750,000 | BUY | 7 / 10 | 0.16 KM |
Nearby Properties
| Address | Price | Distance |
|---|---|---|
| Mallory | £ 366,000 | 0.15 KM |
| 31 Newtown | £ 264,000 | 0.15 KM |
| 46 Newtown | £ 89,000 | 0.15 KM |
| 28 Newtown | £ 325,000 | 0.17 KM |
| 30 Newtown | £ 275,000 | 0.17 KM |