AN
Somerset Road London
By Andrew Nunn & Associates
£ 1,100,000
Reviews
3 out of 5 stars
Andrew Nunn & Associates says ..
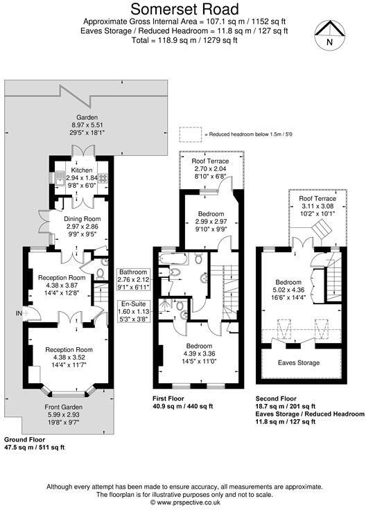
A charming three bedroom two bathroom Victorian end of terrace house found in this popular residential road offering characterful accommodation with a host of original features, a "mediterranean" style walled garden and two roof terraces. Sitting room with splay bay window enjoying a southerly as...
Property Oracle says ..
Therefore, we give this property 7 / 10. *Disclaimer: This is our option and does constitute a recommendation or financial advice. Do your own research. *
- Price
- 8
- Condition
- 6
- Location
- 8
- Land
- 7
- Bedrooms
- 3
- Bathrooms
- 2
- Sqft (est)
- 1,943.67
The heatmap indicates the level of crime in the area. The color of the heatmap indicates the crime severity and recency.
Metrics Year-on-Year
- Average area value
- 1,041,354.00 £Increased by 4.07 %
- Est sale value
- 1,757,077.68 £Decreased by 9.51 %
- Average area rental value
- 2,091.00 £/moIncreased by 6.25 %
- Est letting value
- 1,943.67 £/moUnchanged by 0.00 %
- Est rental Yield
- 2.41 %Increased by 2.12 %
- Crime Rate
- 4.00 %Unchanged by 0.00 %
from 1,000,583.00 £
from 1,941,726.33 £
from 1,968.00 £/mo
from 1,943.67 £/mo
from 2.36 %
from 4.00 %
Agent Activity
Andrew Nunn & Associates created the listing.
Nearby Schools
| Name | Type | Ofsted | Distance |
|---|---|---|---|
| Ark Priory Primary Academy | Academy Sponsor Led | Outstanding | 0.54 KM |
| Ark Byron Primary Academy | Free Schools | Good | 0.73 KM |
| Southfield Primary School | Community School | Good | 0.78 KM |
| Orchard House School | Other Independent School | 0.79 KM | |
| Belmont Primary School | Community School | Outstanding | 0.82 KM |
Images
Nearby Streets
| Name | Average Price | Average Sqft | Distance |
|---|---|---|---|
| Graham Road | £ 762,778 | 0 | 0.00 KM |
| Somerset Road | £ 911,663 | 0 | 0.00 KM |
| Clovelly Road | £ 774,433 | 0 | 0.00 KM |
| Carlton Road | £ 677,850 | 0 | 0.00 KM |
| Evelyn Road | £ 785,000 | 0 | 0.00 KM |
Nearby Transport
| Name | NLC | TLC | Distance |
|---|---|---|---|
| South Acton | 1452 | SAT | 0.70 KM |
| Acton Central | 1404 | ACC | 0.90 KM |
| Gunnersbury | 5588 | GUN | 1.61 KM |
| Acton Main Line | 3000 | AML | 1.86 KM |
| Chiswick | 5583 | CHK | 2.22 KM |
Nearby Listings
| Address | Price | Type | Score | Distance |
|---|---|---|---|---|
| Somerset Road London | £ 1,100,000 | BUY | 7 / 10 | 0.00 KM |
| Somerset Road, London, W4 | £ 1,200,000 | BUY | 7 / 10 | 0.02 KM |
| Somerset Road London | £ 975,000 | BUY | 6 / 10 | 0.03 KM |
| Florence Road, London, W4 | £ 500,000 | BUY | 7 / 10 | 0.04 KM |
| Florence Road, London, W4 | £ 600,000 | BUY | Unknown | 0.04 KM |
Nearby Properties
| Address | Price | Distance |
|---|---|---|
| 33a Somerset Road | £ 1,292,000 | 0.00 KM |
| 47 Somerset Road | £ 985,000 | 0.00 KM |
| 35 Somerset Road | £ 15,000 | 0.00 KM |
| 29 Somerset Road | £ 450,000 | 0.00 KM |
| 43 Somerset Road | £ 875,000 | 0.00 KM |