Fletcher & Company says ..
A superbly positioned three bedroom, mid-terrace, period style property occupying a fabulous location, a stone’s throw from the beautiful Chester Green and with easy access to Derby City Centre. This property full of style and character is located on Mansfield Road in Chester Green. ...
Property Oracle says ..
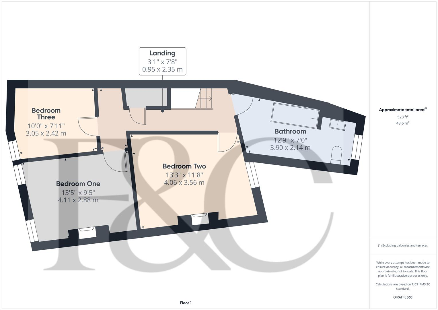
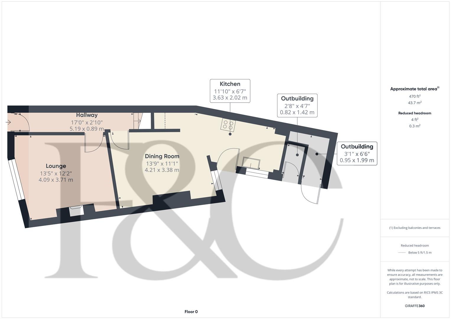
This is a three-bedroom terraced house on Mansfield Road, Derby. The property offers 898.57 sqft of living space and includes one bathroom. The house is listed for £225,000 with Fletcher & Company. The property is located in Darley, Derby, within the East Midlands region. Nearby schools include St Mary’s Catholic Voluntary Academy and Landau Forte College. Derby train station is approximately 2.07 KM away. The property has a small courtyard garden. The house appears to be in reasonable condition, with a modern kitchen and bathroom. The listing price seems fair given the location and condition of the property. The property retains some traditional features.
Therefore, we give this property 6 / 10. *Disclaimer: This is our option and does constitute a recommendation or financial advice. Do your own research. *
- Price
- 8
- Condition
- 7
- Location
- 7
- Land
- 4
- Bedrooms
- 3
- Bathrooms
- 1
- Sqft (est)
- 898.57
The heatmap indicates the level of crime in the area. The color of the heatmap indicates the crime severity and recency.
Metrics Year-on-Year
- Average area value
- 336,500.00 £Increased by 36.08 %
- Est sale value
- 327,079.48 £Increased by 31.41 %
- Average area rental value
- 843.00 £/moIncreased by 29.29 %
- Est letting value
- 0.00 £/mo
- Est rental Yield
- 3.01 %Decreased by 4.75 %
- Crime Rate
- 5.00 %Unchanged by 0.00 %
Agent Activity
Fletcher & Company created the listing.
Nearby Schools
| Name | Type | Ofsted | Distance |
|---|---|---|---|
| St Mary'S Catholic Voluntary Academy | Academy Converter | 0.48 KM | |
| Landau Forte College | Academy Sponsor Led | Outstanding | 0.69 KM |
| Beaufort Community Primary School | Academy Converter | 1.35 KM | |
| St Giles' Spencer Academy | Academy Special Converter | 1.44 KM | |
| Derwent Primary School | Academy Sponsor Led | Good | 1.49 KM |
Images
Nearby Streets
| Name | Average Price | Average Sqft | Distance |
|---|---|---|---|
| Cardean Close | £ 0 | 0 | 0.00 KM |
| Saint Marys Wharf Road | £ 0 | 0 | 0.00 KM |
| St Pauls Road | £ 269,950 | 0 | 0.00 KM |
| Wood Street | £ 0 | 0 | 0.00 KM |
| Saint Alkmund's Way | £ 0 | 0 | 0.00 KM |
Nearby Transport
| Name | NLC | TLC | Distance |
|---|---|---|---|
| Derby | 1823 | DBY | 2.07 KM |
| Peartree | 1687 | PEA | 4.03 KM |
| Duffield | 1691 | DFI | 6.34 KM |
| Spondon | 1699 | SPO | 7.10 KM |
Nearby Listings
| Address | Price | Type | Score | Distance |
|---|---|---|---|---|
| Mansfield Road, Derby | £ 225,000 | BUY | 6 / 10 | 0.00 KM |
| Mansfield Road, Chester Green, Derby | £ 260,000 | BUY | 4 / 10 | 0.05 KM |
| Mansfield Road, Derby | £ 189,950 | BUY | Unknown | 0.08 KM |
| Drage Street, Derby, Derbyshire | £ 160,000 | BUY | 6 / 10 | 0.10 KM |
| Roman Road, Chester Green | £ 200,000 | BUY | 6 / 10 | 0.10 KM |
Nearby Properties
| Address | Price | Distance |
|---|---|---|
| 232 Mansfield Road | £ 191,000 | 0.03 KM |
| 206 Mansfield Road | £ 200,000 | 0.03 KM |
| 196 Mansfield Road | £ 230,000 | 0.03 KM |
| 170 Mansfield Road | £ 145,000 | 0.03 KM |
| 204 Mansfield Road | £ 225,000 | 0.03 KM |