TH
Margaret Street, Wigan, WN6
By Thomas James Sales and Lettings
£ 140,000
Reviews
3 out of 5 stars
Thomas James Sales and Lettings says ..
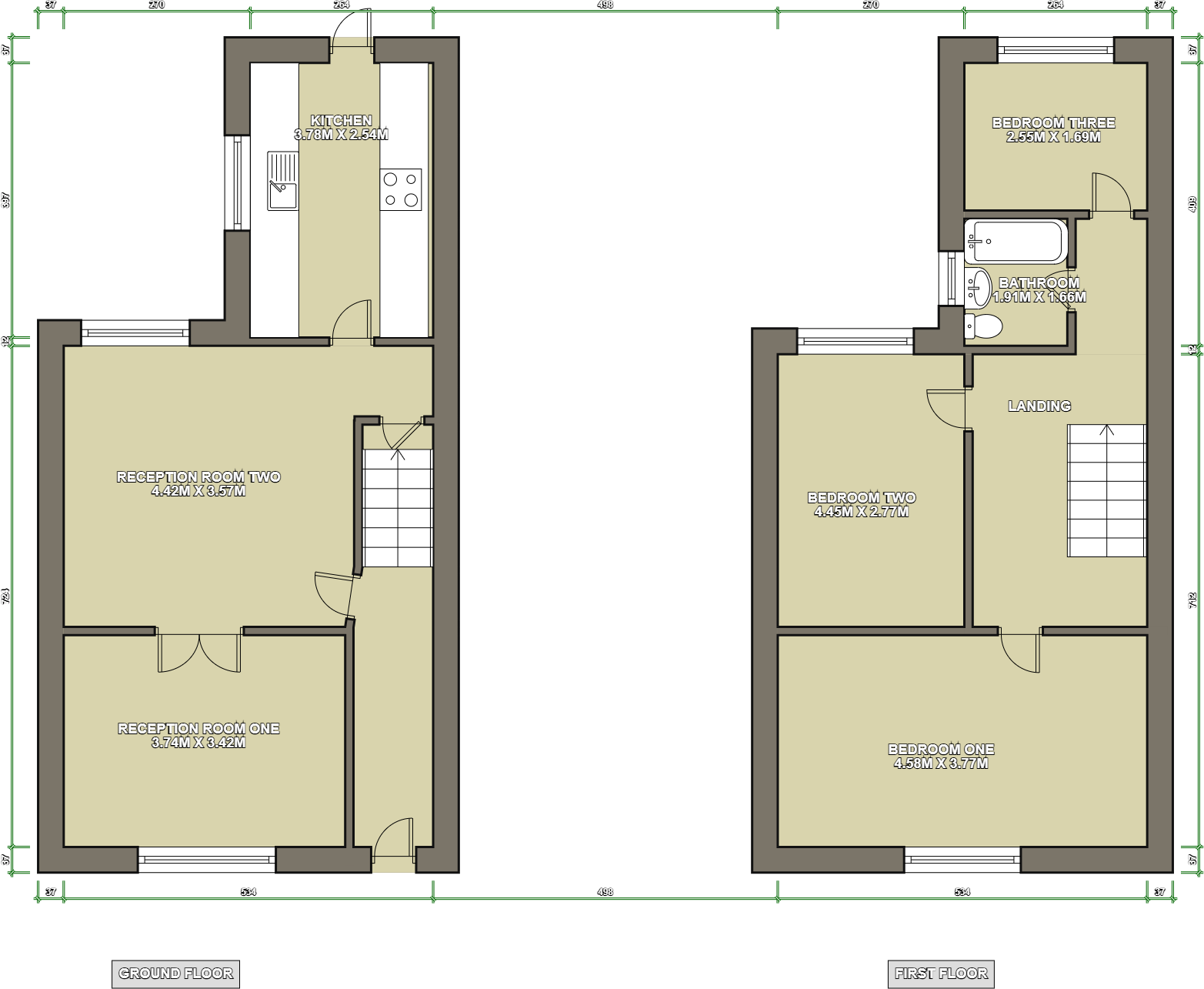
Beautifully Presented Three-Bedroom Mid-Terraced Home – Margaret Street, Springfield, Wigan New to the market is this beautifully presented three-bedroom mid-terraced property, ideally located on the ever-popular Margaret Street in the heart of Springfield, Wigan. Immaculately maintained throu...
Property Oracle says ..
Therefore, we give this property 6 / 10. *Disclaimer: This is our option and does constitute a recommendation or financial advice. Do your own research. *
- Price
- 7
- Condition
- 8
- Location
- 7
- Land
- 3
- Bedrooms
- 3
- Bathrooms
- 1
- Sqft (est)
- 809.88
The heatmap indicates the level of crime in the area. The color of the heatmap indicates the crime severity and recency.
Metrics Year-on-Year
- Average area value
- 177,800.00 £Increased by 0.95 %
- Est sale value
- 171,694.56 £Increased by 23.98 %
- Average area rental value
- 902.00 £/moIncreased by 19.47 %
- Est letting value
- 809.88 £/mo
- Est rental Yield
- 6.09 %Increased by 18.48 %
- Crime Rate
- 2.00 %Unchanged by 0.00 %
from 176,130.00 £
from 138,489.48 £
from 755.00 £/mo
from 0.00 £/mo
from 5.14 %
from 2.00 %
Agent Activity
Thomas James Sales and Lettings created the listing.
Nearby Schools
| Name | Type | Ofsted | Distance |
|---|---|---|---|
| Wigan St Andrew'S Cofe Junior And Infant School | Voluntary Aided School | Good | 0.57 KM |
| Sacred Heart Catholic Primary School | Voluntary Aided School | Good | 0.96 KM |
| The Deanery Church Of England High School And Sixth Form College | Voluntary Aided School | Good | 0.98 KM |
| St John Fisher Catholic High School | Voluntary Aided School | Good | 1.07 KM |
| Beech Hill & Sacred Heart Children'S Centre | Children's Centre Linked Site | 1.09 KM |
Images
Nearby Streets
| Name | Average Price | Average Sqft | Distance |
|---|---|---|---|
| Beresford Street | £ 150,000 | 0 | 0.00 KM |
| Pagefield Close | £ 0 | 0 | 0.00 KM |
| Railway Street | £ 0 | 0 | 0.00 KM |
| Waterloo Street | £ 0 | 0 | 0.00 KM |
| Scott Street | £ 0 | 0 | 0.00 KM |
Nearby Transport
| Name | NLC | TLC | Distance |
|---|---|---|---|
| Wigan Wallgate | 2406 | WGW | 1.56 KM |
| Wigan North Western | 2363 | WGN | 1.61 KM |
| Pemberton | 2403 | PEM | 3.44 KM |
| Ince (Manchester) | 2236 | INC | 4.04 KM |
| Gathurst | 2397 | GST | 5.42 KM |
Nearby Listings
| Address | Price | Type | Score | Distance |
|---|---|---|---|---|
| Margaret Street, Wigan, WN6 | £ 140,000 | BUY | 6 / 10 | 0.00 KM |
| Diggle Street, Wigan, WN6 | £ 130,000 | BUY | 7 / 10 | 0.05 KM |
| Diggle Street, Wigan, WN6 | £ 129,995 | BUY | 5 / 10 | 0.06 KM |
| Ratcliffe Street, Wigan, WN6 | £ 150,000 | BUY | 6 / 10 | 0.10 KM |
| Stopforth Street, Wigan, WN6 | £ 125,000 | BUY | Unknown | 0.12 KM |
Nearby Properties
| Address | Price | Distance |
|---|---|---|
| 7 Diggle Street | £ 65,000 | 0.04 KM |
| 29 Diggle Street | £ 108,000 | 0.04 KM |
| 32 Diggle Street | £ 119,000 | 0.04 KM |
| 1 Diggle Street | £ 122,000 | 0.04 KM |
| 26 Diggle Street | £ 86,000 | 0.04 KM |