RE
Dawes Road, Fulham, London, SW6
By RE/MAX Central
£ 550,000
Reviews
3 out of 5 stars
RE/MAX Central says ..
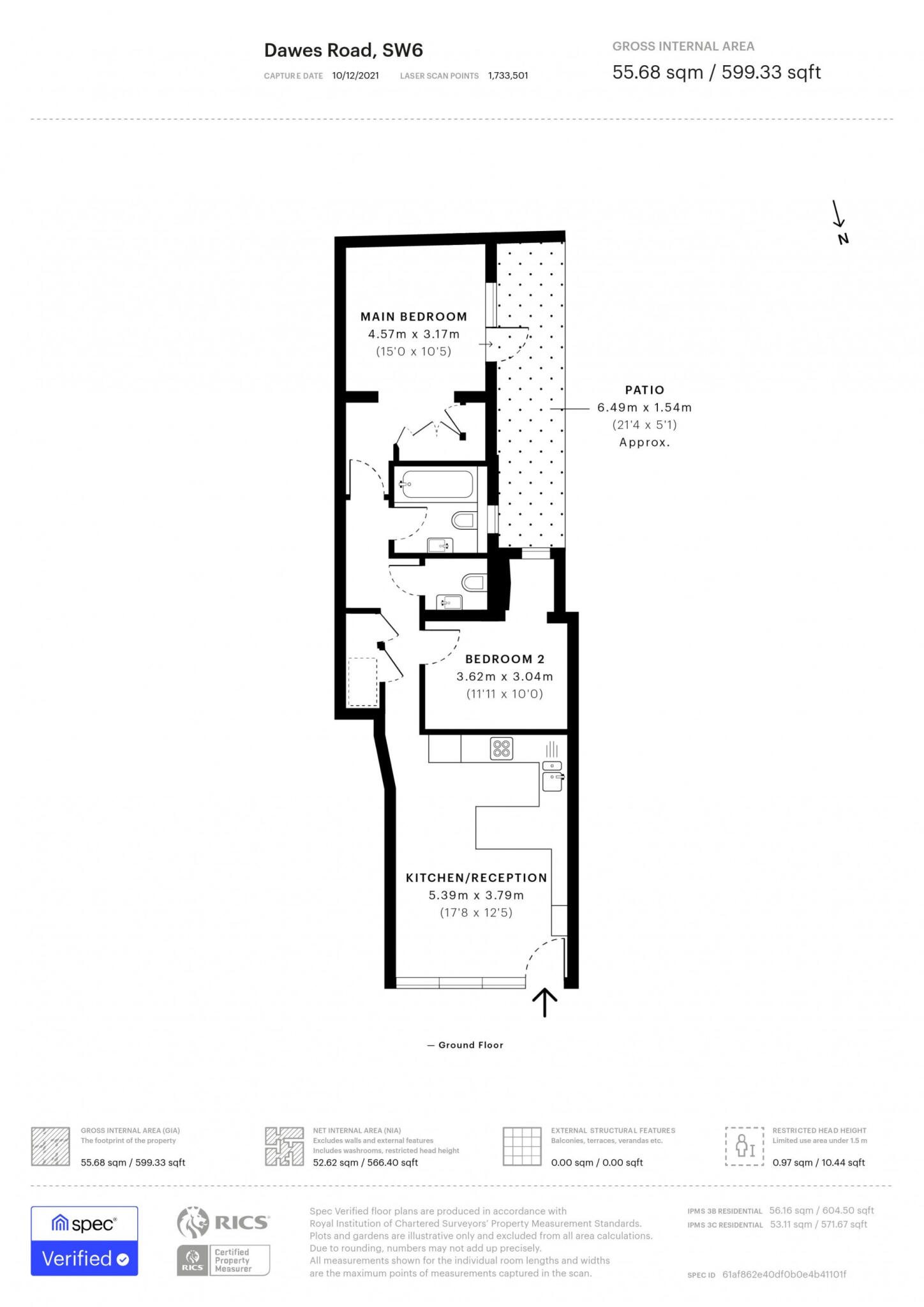
A modern two bedroom garden flat locating in Fulham with easy access to local amenities.
Property Oracle says ..
Therefore, we give this property 6 / 10. *Disclaimer: This is our option and does constitute a recommendation or financial advice. Do your own research. *
- Price
- 8
- Condition
- 7
- Location
- 8
- Land
- 3
- Bedrooms
- 2
- Bathrooms
- 2
- Sqft (est)
- 599.33
The heatmap indicates the level of crime in the area. The color of the heatmap indicates the crime severity and recency.
Metrics Year-on-Year
- Average area value
- 778,925.00 £Decreased by 20.14 %
- Est sale value
- 620,306.55 £Increased by 17.08 %
- Average area rental value
- 2,952.00 £/moIncreased by 25.08 %
- Est letting value
- 1,797.99 £/moIncreased by 50.00 %
- Est rental Yield
- 4.55 %Increased by 56.90 %
- Crime Rate
- 3.00 %Unchanged by 0.00 %
from 975,381.00 £
from 529,807.72 £
from 2,360.00 £/mo
from 1,198.66 £/mo
from 2.90 %
from 3.00 %
Agent Activity
RE/MAX Central created the listing.
Nearby Schools
| Name | Type | Ofsted | Distance |
|---|---|---|---|
| St Thomas Of Canterbury Catholic Primary School | Voluntary Aided School | Good | 0.13 KM |
| Sir John Lillie Primary School | Community School | Good | 0.27 KM |
| St Augustine'S Rc Primary School | Voluntary Aided School | Outstanding | 0.40 KM |
| Sinclair House School | Other Independent School | 0.44 KM | |
| St Johns Walham Green Church Of England Primary School | Voluntary Aided School | Good | 0.44 KM |
Images
Nearby Streets
| Name | Average Price | Average Sqft | Distance |
|---|---|---|---|
| Williams Close | £ 525,000 | 0 | 0.00 KM |
| Disbrowe Road | £ 0 | 0 | 0.00 KM |
| John Smith Avenue | £ 0 | 0 | 0.00 KM |
| Musard Road | £ 1,007,500 | 0 | 0.00 KM |
| Goaters Alley | £ 850,000 | 0 | 0.00 KM |
Nearby Transport
| Name | NLC | TLC | Distance |
|---|---|---|---|
| West Brompton | 8875 | WBP | 1.57 KM |
| Kensington (Olympia) | 3092 | KPA | 1.90 KM |
| Putney | 5603 | PUT | 2.36 KM |
| Shepherd'S Bush | 9587 | SPB | 2.90 KM |
| Imperial Wharf | 9586 | IMW | 2.91 KM |
Nearby Listings
| Address | Price | Type | Score | Distance |
|---|---|---|---|---|
| Dawes Road, Fulham, London, SW6 | £ 550,000 | BUY | 6 / 10 | 0.00 KM |
| Dawes Road, London | £ 675,000 | BUY | 6 / 10 | 0.02 KM |
| The Flatiron, 184 Dawes Road, SW6 | £ 725,000 | BUY | 7 / 10 | 0.03 KM |
| Dawes Road, Fulham, SW6 | £ 700,000 | BUY | 6 / 10 | 0.04 KM |
| Dawes Road, London, SW6 | £ 575,000 | BUY | 6 / 10 | 0.04 KM |
Nearby Properties
| Address | Price | Distance |
|---|---|---|
| 175 Dawes Road | £ 320,000 | 0.01 KM |
| 169a Dawes Road | £ 472,500 | 0.01 KM |
| 181 Dawes Road | £ 432,500 | 0.01 KM |
| 167 Dawes Road | £ 300,000 | 0.01 KM |
| 171 Dawes Road | £ 755,000 | 0.01 KM |