Little Croft Close, Holmfirth, West Yorkshire, HD9 2LP
By Fine & Country
£ 750,000
Reviews
4 out of 5 stars
Fine & Country says ..
A bespoke home positioned on an exclusive development, located on the outskirts of Holmfirth, finished to an exceptional standard throughout, boasting the most idyllic of settings within the Holme Valley, enjoying scenic views and offering exceptional energy efficiency values.
Property Oracle says ..
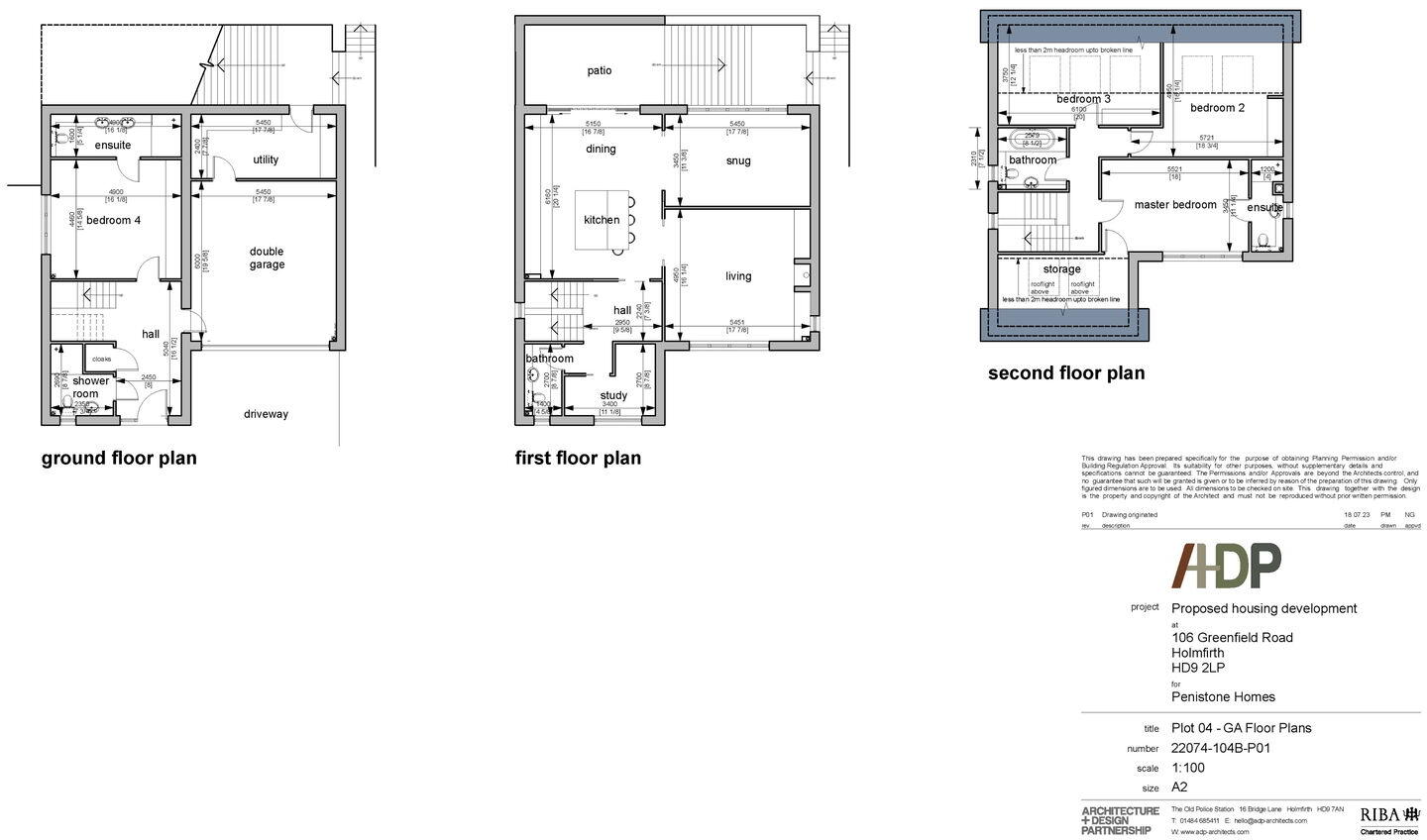
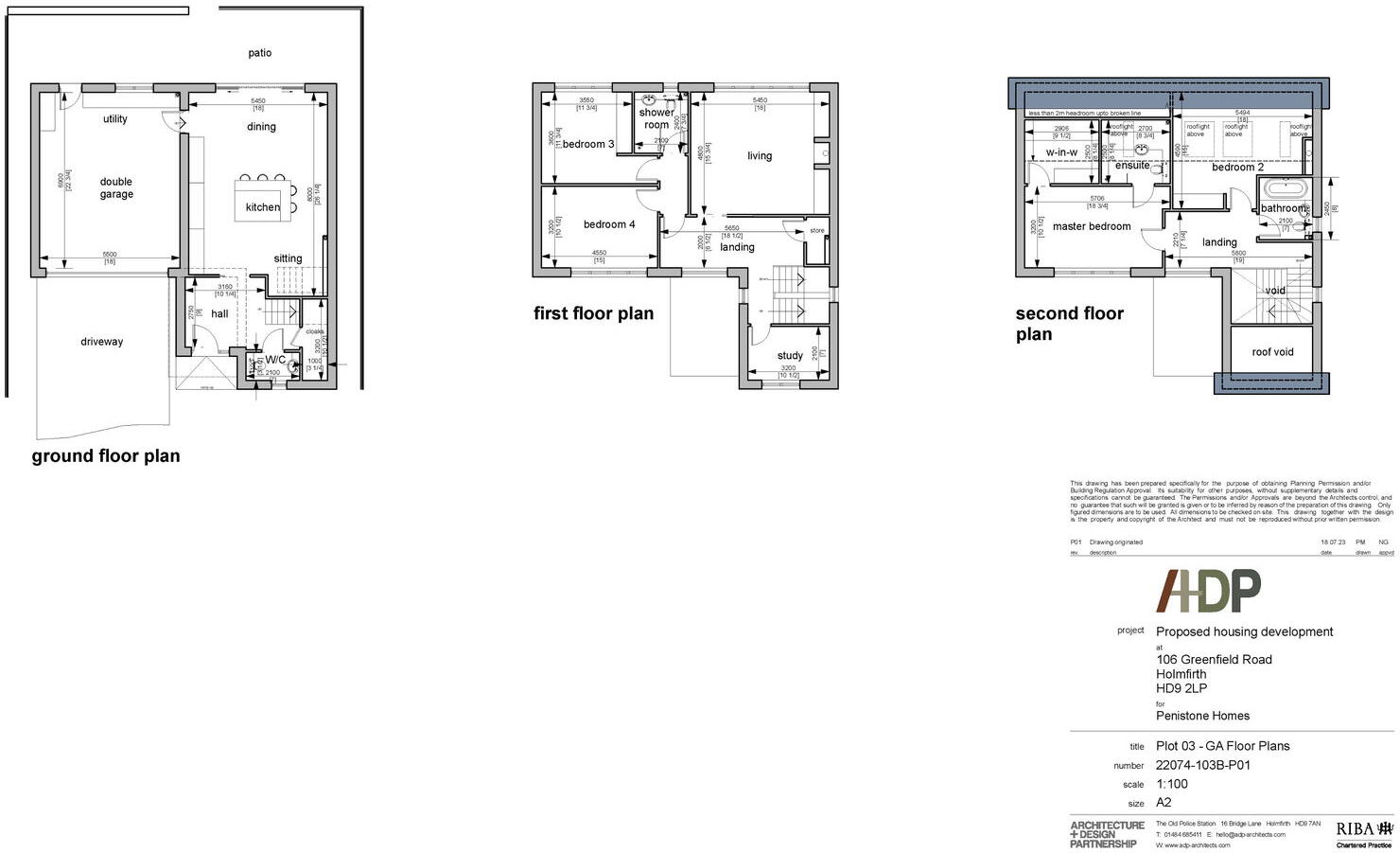
This property is a new build detached house located in Holmfirth, West Yorkshire. The location benefits from being close to local schools, including Upperthong Junior And Infant School (0.23km) which has a good Ofsted rating, and Netherthong Primary School (2.37km) with an outstanding Ofsted rating. Transport links are also relatively close by with several train stations within a reasonable distance. The property itself is modern and well-presented, appearing to be in excellent condition. It has a good-sized garden, making it suitable for families. While the plot size is not specified, the images show a substantial garden area. The list price of £750,000 is higher than the average price for the area (£376,409), but considering the property’s size (2,551 sq ft), modern condition, and desirable location, it may be considered reasonable. The average price per sqft in the area is £289, this property is well above average which could be justified by the size, location and condition.
Therefore, we give this property 8 / 10. *Disclaimer: This is our option and does constitute a recommendation or financial advice. Do your own research. *
- Price
- 7
- Condition
- 10
- Location
- 9
- Land
- 8
- Bedrooms
- 5
- Bathrooms
- 4
- Sqft (est)
- 2,551.05
The heatmap indicates the level of crime in the area. The color of the heatmap indicates the crime severity and recency.
Metrics Year-on-Year
- Average area value
- 454,991.00 £Increased by 10.16 %
- Est sale value
- 762,763.95 £Decreased by 8.00 %
- Average area rental value
- 1,126.00 £/moDecreased by 3.35 %
- Est letting value
- 0.00 £/mo
- Est rental Yield
- 2.97 %Decreased by 12.13 %
- Crime Rate
- 30.00 %Unchanged by 0.00 %
Agent Activity
Fine & Country created the listing.
Nearby Schools
| Name | Type | Ofsted | Distance |
|---|---|---|---|
| Upperthong Junior And Infant School | Community School | Good | 0.23 KM |
| Hinchliffe Mill Junior And Infant School | Community School | Good | 1.61 KM |
| Holme Valley South Children'S Centre | Children's Centre Linked Site | 1.80 KM | |
| Holmfirth Junior Infant And Nursery School | Community School | Good | 2.02 KM |
| Netherthong Primary School | Community School | Outstanding | 2.37 KM |
Images
Nearby Streets
| Name | Average Price | Average Sqft | Distance |
|---|---|---|---|
| High Croft | £ 0 | 0 | 0.00 KM |
| Woodside View | £ 289,950 | 0 | 0.00 KM |
| Old Yew Lane | £ 0 | 0 | 0.00 KM |
| Brow Lane | £ 1,500,000 | 0 | 0.00 KM |
| Hill House Road | £ 1,415,000 | 0 | 0.00 KM |
Nearby Transport
| Name | NLC | TLC | Distance |
|---|---|---|---|
| Brockholes | 8429 | BHS | 4.96 KM |
| Honley | 8436 | HOY | 5.11 KM |
| Berry Brow | 8431 | BBW | 5.97 KM |
| Lockwood | 8443 | LCK | 7.38 KM |
| Huddersfield | 8437 | HUD | 9.16 KM |
Nearby Listings
| Address | Price | Type | Score | Distance |
|---|---|---|---|---|
| Little Croft Close, Greenfield Road, Holmfirth, West Yorkshire, HD9 2LP | £ 700,000 | BUY | Unknown | 0.00 KM |
| Little Croft Close, Greenfield Road, Holmfirth, West Yorkshire, HD9 2LP | £ 700,000 | BUY | Unknown | 0.00 KM |
| Little Croft Close, Greenfield Road, Holmfirth, West Yorkshire, HD9 2LP | £ 700,000 | BUY | 6 / 10 | 0.00 KM |
| Little Croft Close, Holmfirth, West Yorkshire, HD9 2LP | £ 750,000 | BUY | 8 / 10 | 0.00 KM |
| Greenfield Road, Holmfirth, West Yorkshire, HD9 | £ 250,000 | BUY | 7 / 10 | 0.00 KM |
Nearby Properties
| Address | Price | Distance |
|---|---|---|
| 37 Greenfield Road | £ 225,000 | 0.01 KM |
| 49 Greenfield Road | £ 68,000 | 0.01 KM |
| 126 Greenfield Road | £ 195,000 | 0.01 KM |
| 156 Greenfield Road | £ 252,000 | 0.01 KM |
| 146 Greenfield Road | £ 225,000 | 0.01 KM |