Cascades Two, White City Living, Fountain Park Way, W12
By MyLondonHome
£ 1,100,000
Reviews
3 out of 5 stars
MyLondonHome says ..
Off Plan Assignment | 24 Hour Concierge | Berkeley Development | Luxury Resident's Facilities | Exclusive Lounge, Therapeutic Hydro-Pool, Gym, Dining Room, Café & Cinema | 2-Minutes’ Walk From White City & Wood Lane Stations | Next Door To Westfield London And Imperial Colleg...
Property Oracle says ..
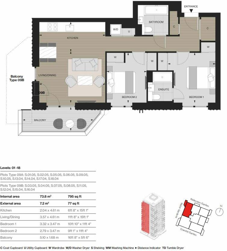
This two-bedroom, two-bathroom apartment is situated within the White City Living development in the desirable W12 postcode. The development itself offers a range of attractive amenities including a 24-hour concierge, gym, swimming pool, and communal spaces. The location is a significant advantage, being extremely well-connected by public transport and within walking distance to Westfield Shopping Centre and Imperial College London. The surrounding area appears well-maintained and modern, further enhancing the appeal. While the listing does not specify a private garden, residents do benefit from shared, landscaped communal areas. It is important to note that, based on the provided data and images, the apartment itself does not appear to have a private garden. Further information on the specific apartment’s interior and features would be beneficial to a comprehensive evaluation. The price seems competitive within the context of this upscale development but slightly high in direct comparison to other comparable listings in the immediate vicinity. However, the location, included amenities, and the modern construction quality support this price to an extent. A detailed interior view would help to fully evaluate the value proposition of the apartment.
Therefore, we give this property 7 / 10. *Disclaimer: This is our option and does constitute a recommendation or financial advice. Do your own research. *
- Price
- 7
- Condition
- 8
- Location
- 9
- Land
- 4
- Bedrooms
- 2
- Bathrooms
- 2
- Sqft (est)
- 794.38
The heatmap indicates the level of crime in the area. The color of the heatmap indicates the crime severity and recency.
Metrics Year-on-Year
- Average area value
- 1,114,643.00 £Increased by 25.51 %
- Est sale value
- 936,574.02 £Increased by 23.46 %
- Average area rental value
- 1,921.00 £/moDecreased by 14.77 %
- Est letting value
- 1,588.76 £/moUnchanged by 0.00 %
- Est rental Yield
- 2.07 %Decreased by 32.13 %
- Crime Rate
- 13.00 %Unchanged by 0.00 %
Agent Activity
MyLondonHome created the listing.
Nearby Schools
| Name | Type | Ofsted | Distance |
|---|---|---|---|
| Catch22 Pupil Parent Partnership | Other Independent Special School | Good | 0.48 KM |
| Ormiston Latimer Academy | Academy Alternative Provision Converter | Good | 0.53 KM |
| Shepherds Bush Families Project And Children'S Centre | Children's Centre Linked Site | 0.58 KM | |
| Young Dancers Academy | Other Independent School | Outstanding | 0.62 KM |
| Ark Swift Primary Academy | Academy Sponsor Led | Good | 0.67 KM |
Images
Nearby Streets
| Name | Average Price | Average Sqft | Distance |
|---|---|---|---|
| Fountain Park Way | £ 0 | 0 | 0.00 KM |
| Macfarlane Place | £ 0 | 0 | 0.00 KM |
| Silver Road | £ 0 | 0 | 0.00 KM |
| Lower Road | £ 0 | 0 | 0.00 KM |
| South Africa Road | £ 0 | 0 | 0.00 KM |
Nearby Transport
| Name | NLC | TLC | Distance |
|---|---|---|---|
| Shepherd'S Bush | 9587 | SPB | 0.93 KM |
| Kensington (Olympia) | 3092 | KPA | 2.08 KM |
| Kensal Green | 1447 | KNL | 2.17 KM |
| Kensal Rise | 1448 | KNR | 2.65 KM |
| Queens Park (London) | 1419 | QPW | 3.29 KM |
Nearby Listings
| Address | Price | Type | Score | Distance |
|---|---|---|---|---|
| Westmont Apartments, White City, London, W12 | £ 1,100,000 | BUY | 6 / 10 | 0.01 KM |
| Westmont Apartments, White City Living, London, W12 | £ 1,075,000 | BUY | 6 / 10 | 0.01 KM |
| White City Living, White City, W12 | £ 4,540,000 | BUY | 6 / 10 | 0.03 KM |
| White City Living, White City, W12 | £ 3,210,000 | BUY | 7 / 10 | 0.03 KM |
| White City Living, White City, W12 | £ 930,000 | BUY | Unknown | 0.03 KM |
Nearby Properties
| Address | Price | Distance |
|---|---|---|
| 143 Wood Lane | £ 340,000 | 0.22 KM |
| 111 Wood Lane | £ 190,000 | 0.22 KM |
| 127 Wood Lane | £ 320,000 | 0.22 KM |
| 147 Wood Lane | £ 238,000 | 0.22 KM |
| 115 Wood Lane | £ 266,000 | 0.22 KM |