Yopa says ..
A updated and refurbished 2 bedroom mid terraced home. Set in a quiet cul-de-sac with own drive as well as an allocated space in front of the driveway and presented in immaculate condition throughout. New bathroom, kitchen, flooring, carpets and boiler. A perfect first time or investment purchase.
Property Oracle says ..
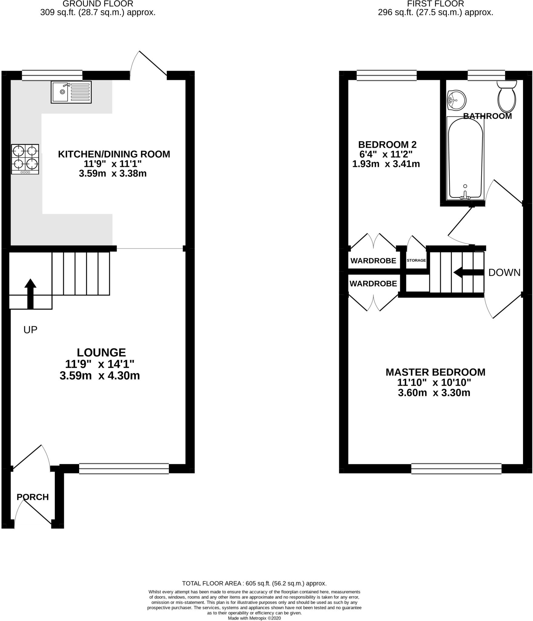
The property is a 2 bedroom, 1 bathroom terraced house located in Chineham, Basingstoke. It is listed for £300,000 and has 1,541.33 sqft of living space and a 605 sqft plot. The property appears to be in good condition. The images show a modern kitchen and bathroom, and the living areas are well-maintained. There is no visible evidence of significant repairs or renovations being required. The garden is relatively small but well-maintained with a patio area. Chineham is a desirable residential area of Basingstoke, known for its family-friendly atmosphere and good local amenities. The property’s proximity to several well-regarded schools (Four Lanes Infant School and Four Lanes Community Junior School, both rated as Outstanding or Good by Ofsted) adds to its appeal. The nearby Chineham Shopping Centre provides convenient access to shops and other services. Basingstoke train station is also within a reasonable distance, offering good transport links. Considering the average house price in the area is significantly higher (£1,017,824), and the average price per sqft is £431, the asking price of £300,000 for this property appears to be relatively low, especially given its good condition and location. However, the lack of sqft data for comparable properties makes a definitive price comparison difficult.
Therefore, we give this property 8 / 10. *Disclaimer: This is our option and does constitute a recommendation or financial advice. Do your own research. *
- Price
- 8
- Condition
- 9
- Location
- 9
- Land
- 6
- Bedrooms
- 2
- Bathrooms
- 1
- Sqft (est)
- 1,541.33
- Lot (est)
- 605.00
The heatmap indicates the level of crime in the area. The color of the heatmap indicates the crime severity and recency.
Metrics Year-on-Year
- Average area value
- 463,182.00 £Increased by 26.66 %
- Est sale value
- 1,011,112.48 £Increased by 86.36 %
- Average area rental value
- 1,359.00 £/moIncreased by 4.38 %
- Est letting value
- 1,541.33 £/moUnchanged by 0.00 %
- Est rental Yield
- 3.52 %Decreased by 17.56 %
- Crime Rate
- 7.00 %Unchanged by 0.00 %
Agent Activity
Yopa created the listing.
Nearby Schools
| Name | Type | Ofsted | Distance |
|---|---|---|---|
| Four Lanes Infant School | Community School | Outstanding | 0.55 KM |
| Four Lanes Community Junior School | Community School | Good | 0.61 KM |
| Inclusion Hampshire | Special Post 16 Institution | 1.01 KM | |
| Lily Pads And The Courtyard Children'S Centre | Children's Centre | 1.04 KM | |
| Great Binfields Primary School | Community School | Good | 1.38 KM |
Images
Nearby Streets
| Name | Average Price | Average Sqft | Distance |
|---|---|---|---|
| Woodville Lane | £ 0 | 0 | 0.00 KM |
| Remembrance Gardens | £ 400,000 | 0 | 0.00 KM |
| St Joseph's Crescent | £ 0 | 0 | 0.00 KM |
| Parlour Drive | £ 0 | 0 | 0.00 KM |
| Dovecot Way | £ 0 | 0 | 0.00 KM |
Nearby Transport
| Name | NLC | TLC | Distance |
|---|---|---|---|
| Basingstoke | 5520 | BSK | 3.89 KM |
| Bramley (Hampshire) | 5500 | BMY | 4.14 KM |
| Mortimer | 5501 | MOR | 9.28 KM |
Nearby Listings
| Address | Price | Type | Score | Distance |
|---|---|---|---|---|
| Meadowland , Basingstoke, RG24 | £ 300,000 | BUY | 8 / 10 | 0.00 KM |
| MEADOWLAND, CHINEHAM, BASINGSTOKE, HAMPSHIRE, RG24 | £ 310,000 | BUY | 6 / 10 | 0.00 KM |
| Meadowland, Chineham, Basingstoke, Hampshire, RG24 | £ 300,000 | BUY | 6 / 10 | 0.04 KM |
| Martins Wood, Chineham, RG24 | £ 675,000 | BUY | Unknown | 0.11 KM |
| Merryfield, Chineham, Basingstoke, Hampshire, RG24 | £ 375,000 | BUY | 7 / 10 | 0.13 KM |
Nearby Properties
| Address | Price | Distance |
|---|---|---|
| 46 Meadowland | £ 155,000 | 0.01 KM |
| 16 Meadowland | £ 178,250 | 0.01 KM |
| 47 Meadowland | £ 260,000 | 0.01 KM |
| 44 Meadowland | £ 82,750 | 0.01 KM |
| 23 Meadowland | £ 285,000 | 0.01 KM |