Osborne House Main Street, Mareham-le-Fen, Boston, Lincolnshire, PE22
PY

Osborne House Main Street, Mareham-le-Fen, Boston, Lincolnshire, PE22

By PYGOTT & CRONE COMMERCIAL

£ 475,000

Reviews

3 out of 5 stars

PYGOTT & CRONE COMMERCIAL says ..

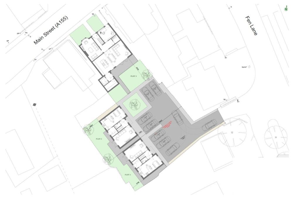
The property comprises a former Butchers Shop which has expanded to the rear into an active food preparation unit. The property has a site area of 0.233 acres (0.094 ha).The property now has planning permission for the conversion and refurbishment of the front Osborne house into a large ...

Property Oracle says ..

Osborne House, situated on Main Street in Mareham-le-Fen, Lincolnshire, presents as a unique investment opportunity. The property comprises a former butcher’s shop, which has been extended into a substantial food preparation area, sitting on a generous 0.233-acre plot. The house itself shows signs of age in some areas requiring modernisation and refurbishment. The interior images reveal a mix of well-maintained and dated rooms. The outbuildings and yard space are significant features, along with the existing planning permission for conversion and refurbishment into residential dwellings, this is a significant factor for consideration. The asking price of £475,000 is higher than several nearby residential properties, but given its commercial heritage, size of land, and potential for conversion and development, it could represent a viable opportunity for investors or developers seeking a significant project in a relatively peaceful village location. Further investigation into the costs of the renovations and the potential value of the completed project would be essential before coming to a solid conclusion about the value of this property. This location has a primary school within walking distance of the property, and a collection of other streets with higher average house prices nearby suggest some potential in the area.

Therefore, we give this property 6 / 10. *Disclaimer: This is our option and does constitute a recommendation or financial advice. Do your own research. *

Price
7
Condition
5
Location
6
Land
7
Bedrooms
0
Bathrooms
0

The heatmap indicates the level of crime in the area. The color of the heatmap indicates the crime severity and recency.

Metrics Year-on-Year

Average area value
133,978.00 £
Decreased by 33.17 %
from 200,487.00 £
Average area rental value
755.00 £/mo
Decreased by 3.94 %
from 786.00 £/mo
Est rental Yield
6.76 %
Increased by 43.83 %
from 4.70 %
Crime Rate
56.00 %
Unchanged by 0.00 %
from 56.00 %

Agent Activity

  • PYGOTT & CRONE COMMERCIAL created the listing.

Nearby Schools

NameTypeOfstedDistance
The Mareham-Le-Fen Church Of England Primary SchoolVoluntary Controlled SchoolGood0.90 KM
The Kirkby-On-Bain Church Of England Primary SchoolVoluntary Aided SchoolGood5.77 KM
The Banovallum SchoolAcademy ConverterGood8.26 KM
Horncastle Children'S CentreChildren's Centre Linked Site8.26 KM
New York Primary SchoolAcademy Converter8.62 KM

Images

1153696  (3) 1153696  (5) 1153696  (1) 1153696  (4) 1153696  (2) 1153696  (7) 1153696  (6) 1153696  (9) 1153696DR (1) 1153696  (8) 1153696  (10) 1153696DR (3) 1153696DR (4) 1153696DR (8) 1153696DR (10) 1153696DR (11) 1153696DR (2) 1153696DR (6) existing elevations Plot 3 plans proprosed site plan 1153696DR (14) existing floor plans Plot 1 & 2 plans 1153696DR (15)

Nearby Streets

NameAverage PriceAverage SqftDistance
Church Lane £ 160,00000.00 KM
Beggar's Lane £ 000.00 KM
The Green £ 300,00000.00 KM
Mumby's Bridge Road £ 650,00000.00 KM

Nearby Listings

AddressPriceTypeScoreDistance
Osborne House Main Street, Mareham-le-Fen, Boston, Lincolnshire, PE22 £ 475,000BUY6 / 100.00 KM
Kingswood House, Main Street, Mareham Le Fen £ 365,000BUY7 / 100.04 KM
Sunnyside, Main Street, Mareham Le Fen £ 145,000BUY6 / 100.11 KM
Main Street, Mareham-le-Fen, Boston, Lincolnshire, PE22 £ 135,000BUYUnknown0.12 KM
Main Street, Mareham-Le-Fen, PE22 £ 251,995BUY6 / 100.12 KM

Nearby Properties

AddressPriceDistance
Sandy Nook £ 115,0000.10 KM
The Cottage £ 185,0000.10 KM
Rexholme £ 170,0000.10 KM
Kingswood House £ 210,0000.12 KM
Mariners Cottage £ 105,0000.12 KM