Matthew James says ..
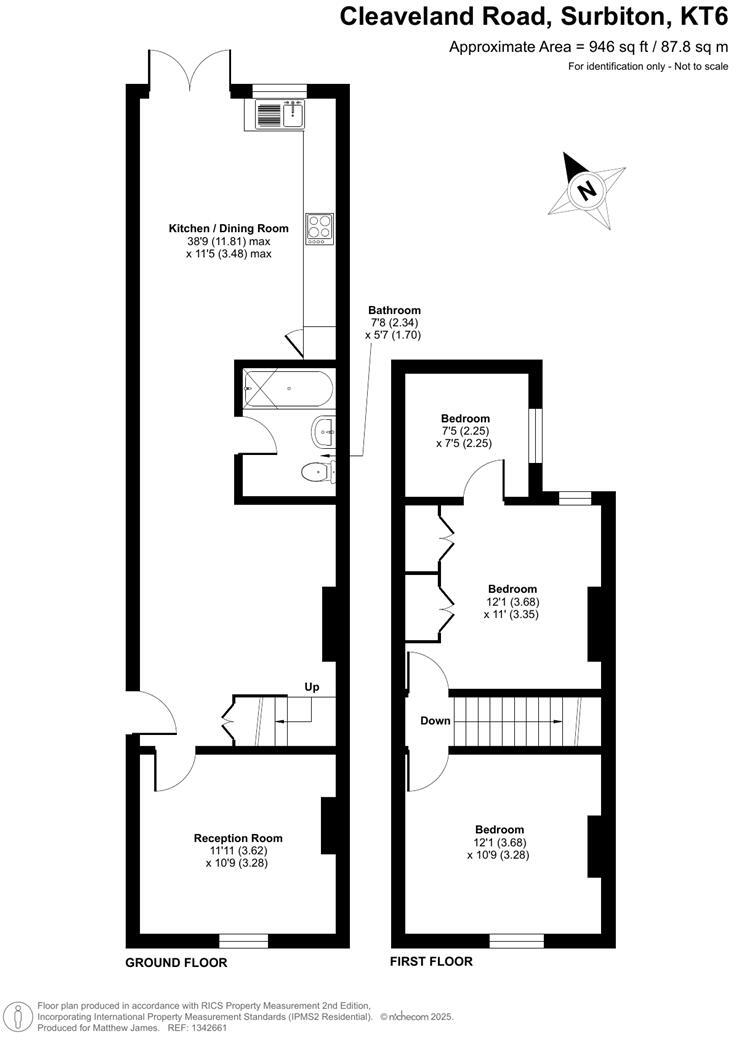
An excellent two/three bedroom, two reception room, end-of-terrace period house with a good size private garden and driveway parking for two cars. Located on one of Surbiton's highly desirable river roads, the mainline station, high street and the Thames are all within a short walk. The many bene...
Property Oracle says ..
Therefore, we give this property 5 / 10. *Disclaimer: This is our option and does constitute a recommendation or financial advice. Do your own research. *
- Price
- 3
- Condition
- 6
- Location
- 8
- Land
- 5
- Bedrooms
- 2
- Bathrooms
- 1
- Sqft (est)
- 936.70
The heatmap indicates the level of crime in the area. The color of the heatmap indicates the crime severity and recency.
Metrics Year-on-Year
- Average area value
- 401,729.00 £Decreased by 10.51 %
- Est sale value
- 483,337.20 £Increased by 7.28 %
- Average area rental value
- 1,630.00 £/moDecreased by 14.30 %
- Est letting value
- 1,873.40 £/moUnchanged by 0.00 %
- Est rental Yield
- 4.87 %Decreased by 4.13 %
- Crime Rate
- 6.00 %Unchanged by 0.00 %
from 448,918.00 £
from 450,552.70 £
from 1,902.00 £/mo
from 1,873.40 £/mo
from 5.08 %
from 6.00 %
Agent Activity
Matthew James created the listing.
Nearby Schools
| Name | Type | Ofsted | Distance |
|---|---|---|---|
| St Andrew'S And St Mark'S Cofe Junior School | Voluntary Aided School | Outstanding | 0.45 KM |
| Maple Infants' School | Community School | Good | 0.48 KM |
| Surbiton Town Children'S Centre | Children's Centre Linked Site | 0.60 KM | |
| Surbiton High School | Other Independent School | 0.81 KM | |
| Richmond And Hillcroft Adult And Community College (Rhacc) | Further Education | Good | 1.16 KM |
Images
Nearby Streets
| Name | Average Price | Average Sqft | Distance |
|---|---|---|---|
| Spring Cottages | £ 0 | 0 | 0.00 KM |
| Little Dell | £ 449,967 | 0 | 0.00 KM |
| Saint Andrew's Square | £ 469,950 | 0 | 0.00 KM |
| Surbiton Court Mews | £ 0 | 0 | 0.00 KM |
| Brighton Road | £ 0 | 0 | 0.00 KM |
Nearby Transport
| Name | NLC | TLC | Distance |
|---|---|---|---|
| Surbiton | 5571 | SUR | 0.86 KM |
| Hampton Wick | 5589 | HMW | 2.09 KM |
| Kingston | 5565 | KNG | 2.17 KM |
| Thames Ditton | 5610 | THD | 3.21 KM |
| Berrylands | 5581 | BRS | 3.36 KM |
Nearby Listings
| Address | Price | Type | Score | Distance |
|---|---|---|---|---|
| Cleaveland Road, Surbiton | £ 899,950 | BUY | 5 / 10 | 0.00 KM |
| Cleaveland Road, Surbiton | £ 950,000 | BUY | 6 / 10 | 0.03 KM |
| Cleaveland Road, Surbiton | £ 820,000 | BUY | 7 / 10 | 0.04 KM |
| Cleaveland Road, Surbiton | £ 849,950 | BUY | 7 / 10 | 0.07 KM |
| Westfield Road, Surbiton, KT6 | £ 800,000 | BUY | 8 / 10 | 0.08 KM |
Nearby Properties
| Address | Price | Distance |
|---|---|---|
| 56a Portsmouth Road | £ 78,000 | 0.08 KM |
| 57 Portsmouth Road | £ 475,000 | 0.08 KM |
| 57a Portsmouth Road | £ 456,000 | 0.08 KM |
| 52 Portsmouth Road | £ 485,000 | 0.08 KM |
| 54 Portsmouth Road | £ 1,005,000 | 0.08 KM |