Church Road, Eastleigh, Hampshire, SO50
By OFF AGENT
£ 435,000
Reviews
3 out of 5 stars
OFF AGENT says ..
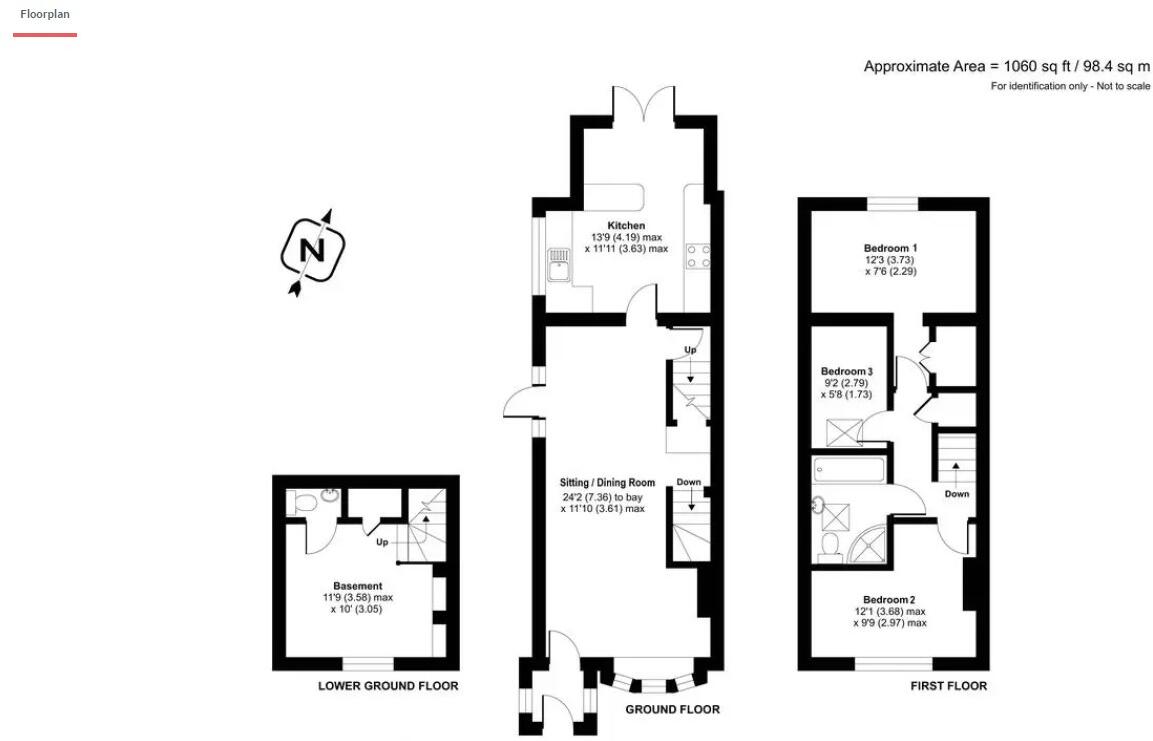
Calm atmosphere in a three-storey property plenty of character. The sitting room is packed with character and charm which flows into a dining area, with access to patio via French doors.
Property Oracle says ..
This property is a 3-bedroom, 1-bathroom semi-detached house located on Church Road in Bishopstoke, Eastleigh. The property benefits from a good location, with nearby schools and transportation links. The interior is presented well and appears to be in good condition. There is a small, manageable garden to the rear. While the provided square footage is missing, the list price of £435,000 seems reasonable when compared to similar properties in the area, considering the average price of £427,273 and average price per sqft of £346.00. However, more information on the property’s size would allow for a more precise price evaluation.
Therefore, we give this property 7 / 10. *Disclaimer: This is our option and does constitute a recommendation or financial advice. Do your own research. *
- Price
- 7
- Condition
- 8
- Location
- 8
- Land
- 6
- Bedrooms
- 3
- Bathrooms
- 1
The heatmap indicates the level of crime in the area. The color of the heatmap indicates the crime severity and recency.
Metrics Year-on-Year
- Average area value
- 367,857.00 £Increased by 6.41 %
- Average area rental value
- 1,350.00 £/moDecreased by 7.47 %
- Est rental Yield
- 4.40 %Decreased by 13.04 %
- Crime Rate
- 3.00 %Unchanged by 0.00 %
Agent Activity
OFF AGENT created the listing.
Nearby Schools
| Name | Type | Ofsted | Distance |
|---|---|---|---|
| Stoke Park Junior School | Community School | Good | 1.59 KM |
| Stoke Park Infant School | Community School | Good | 1.64 KM |
| Colden Common Primary School | Community School | Good | 1.93 KM |
| The Bridge Education Centre | Pupil Referral Unit | Good | 2.58 KM |
| Shakespeare Junior School | Community School | Good | 2.68 KM |
Images
Nearby Streets
| Name | Average Price | Average Sqft | Distance |
|---|---|---|---|
| Rose Close | £ 430,000 | 0 | 0.00 KM |
| Avington Close | £ 0 | 0 | 0.00 KM |
| Clipper CLose | £ 0 | 0 | 0.00 KM |
| Cwalter Lane | £ 351,667 | 0 | 0.00 KM |
| Spring Lane | £ 470,000 | 0 | 0.00 KM |
Nearby Transport
| Name | NLC | TLC | Distance |
|---|---|---|---|
| Eastleigh | 5899 | ESL | 2.44 KM |
| Shawford | 5929 | SHW | 4.59 KM |
| Southampton Airport Parkway | 5922 | SOA | 4.85 KM |
| Chandlers Ford | 5836 | CFR | 5.95 KM |
| Swaythling | 5933 | SWG | 6.66 KM |
Nearby Listings
| Address | Price | Type | Score | Distance |
|---|---|---|---|---|
| Church Road, Bishopstoke, Eastleigh | £ 425,000 | BUY | 6 / 10 | 0.04 KM |
| Stoke Common Road, Bishopstoke, Eastleigh, Hampshire, SO50 | £ 725,000 | BUY | 6 / 10 | 0.04 KM |
| Church Road Old Bishopstoke | £ 375,000 | BUY | 7 / 10 | 0.04 KM |
| Stoke Common Road, Bishopstoke, Hampshire, SO50 | £ 450,000 | BUY | 6 / 10 | 0.08 KM |
| Church Road, Bishopstoke, SO50 | £ 350,000 | BUY | 7 / 10 | 0.12 KM |
Nearby Properties
| Address | Price | Distance |
|---|---|---|
| 125 Church Road | £ 249,950 | 0.00 KM |
| 129 Church Road | £ 415,000 | 0.00 KM |
| 117 Church Road | £ 330,000 | 0.00 KM |
| 113 Church Road | £ 355,000 | 0.00 KM |
| 97 Church Road | £ 475,000 | 0.00 KM |