James Du Pavey says ..
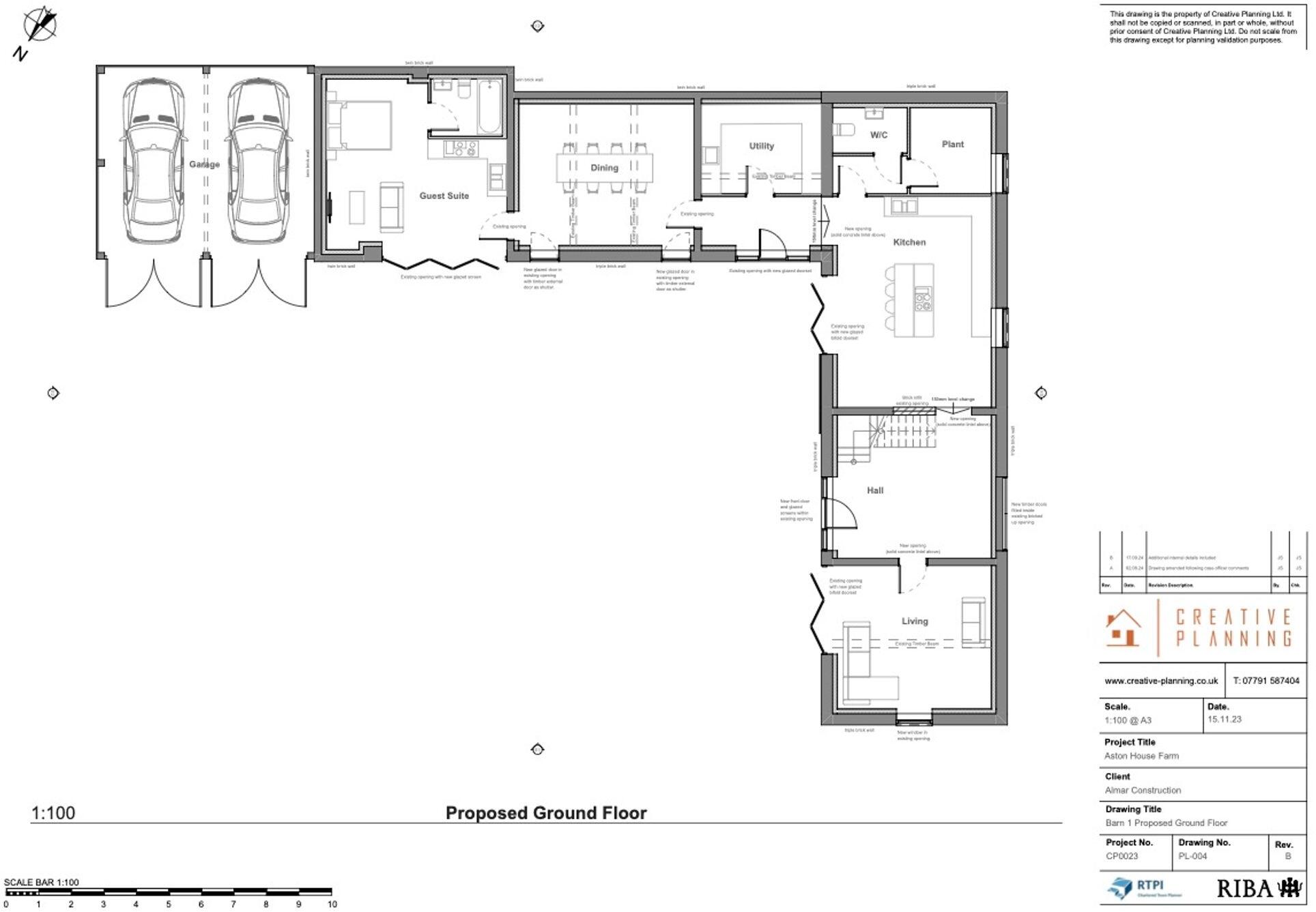
Exquisite 4-bed barn conversion in Aston's heart, blending rustic charm with modern amenities. Idyllic village lifestyle, customisation options, energy-efficient features, and picturesque countryside views. Optional upgrades available.
Property Oracle says ..
This property is a barn conversion located in Aston, Cheshire. The list price is £950,000, for a 1,400 sqft property. The average price per sqft in the area is £244. Based on this, the list price seems high, especially considering the plot size is 0.00 sqft. The property is presented as a new build conversion, appearing to be in excellent condition. The conversion has created a modern property with a good sized garden. The location, while rural, benefits from relatively close proximity to Wrenbury train station (1.44km) and several well-regarded primary schools within a 3.36km radius. However, the lack of detailed information on plot size and the high price per sqft compared to the local average warrant further investigation.
Therefore, we give this property 7 / 10. *Disclaimer: This is our option and does constitute a recommendation or financial advice. Do your own research. *
- Price
- 4
- Condition
- 10
- Location
- 8
- Land
- 7
- Bedrooms
- 4
- Bathrooms
- 4
- Sqft (est)
- 1,400.00
The heatmap indicates the level of crime in the area. The color of the heatmap indicates the crime severity and recency.
Metrics Year-on-Year
- Average area value
- 633,958.00 £Increased by 56.51 %
- Est sale value
- 390,600.00 £Decreased by 22.50 %
- Average area rental value
- 1,283.00 £/moIncreased by 2.64 %
- Est letting value
- 0.00 £/moDecreased by 100.00 %
- Est rental Yield
- 2.43 %Decreased by 34.32 %
- Crime Rate
- 2.00 %Unchanged by 0.00 %
Agent Activity
James Du Pavey created the listing.
Nearby Schools
| Name | Type | Ofsted | Distance |
|---|---|---|---|
| Wrenbury Primary School | Community School | Good | 2.03 KM |
| Sound And District Primary School | Community School | Good | 3.36 KM |
| Acton Church Of England Primary Academy | Academy Converter | 7.27 KM | |
| Millfields Primary School And Nursery | Community School | Good | 7.65 KM |
| Malbank School And Sixth Form College | Foundation School | Requires improvement | 7.83 KM |
Images
Nearby Streets
| Name | Average Price | Average Sqft | Distance |
|---|---|---|---|
| Mulberry Avenue | £ 385,000 | 0 | 0.00 KM |
| Alderwood Close | £ 425,000 | 0 | 0.00 KM |
| Silverbirch Grove | £ 450,000 | 0 | 0.00 KM |
| Mill Farm Estate | £ 200,000 | 0 | 0.00 KM |
| The Row | £ 387,500 | 0 | 0.00 KM |
Nearby Transport
| Name | NLC | TLC | Distance |
|---|---|---|---|
| Wrenbury | 1350 | WRE | 1.44 KM |
| Nantwich | 1247 | NAN | 8.68 KM |
Nearby Listings
| Address | Price | Type | Score | Distance |
|---|---|---|---|---|
| Wrenbury Road, Aston, CW5 | £ 950,000 | BUY | 7 / 10 | 0.00 KM |
| Wrenbury Road, CW5 | £ 445,000 | BUY | 6 / 10 | 0.09 KM |
| Aston Court, Wrenbury Road, Aston, Near Nantwich | £ 1,375,000 | BUY | 8 / 10 | 0.20 KM |
| Wrenbury Road, Aston, Nantwich, CW5 | £ 1,500,000 | BUY | 8 / 10 | 0.23 KM |
| Sandy Lane, Aston, Nantwich | £ 450,000 | BUY | 8 / 10 | 0.33 KM |
Nearby Properties
| Address | Price | Distance |
|---|---|---|
| Middle Cottage | £ 262,400 | 0.01 KM |
| Struan | £ 193,500 | 0.01 KM |
| Newhall Cross House | £ 950,000 | 0.01 KM |
| Clifton Cottage | £ 237,000 | 0.01 KM |
| The Crofts | £ 590,000 | 0.01 KM |