FO
Queensgate Terrace, South Kensington, London, SW7
By Foxtons
£ 3,250
Foxtons says ..
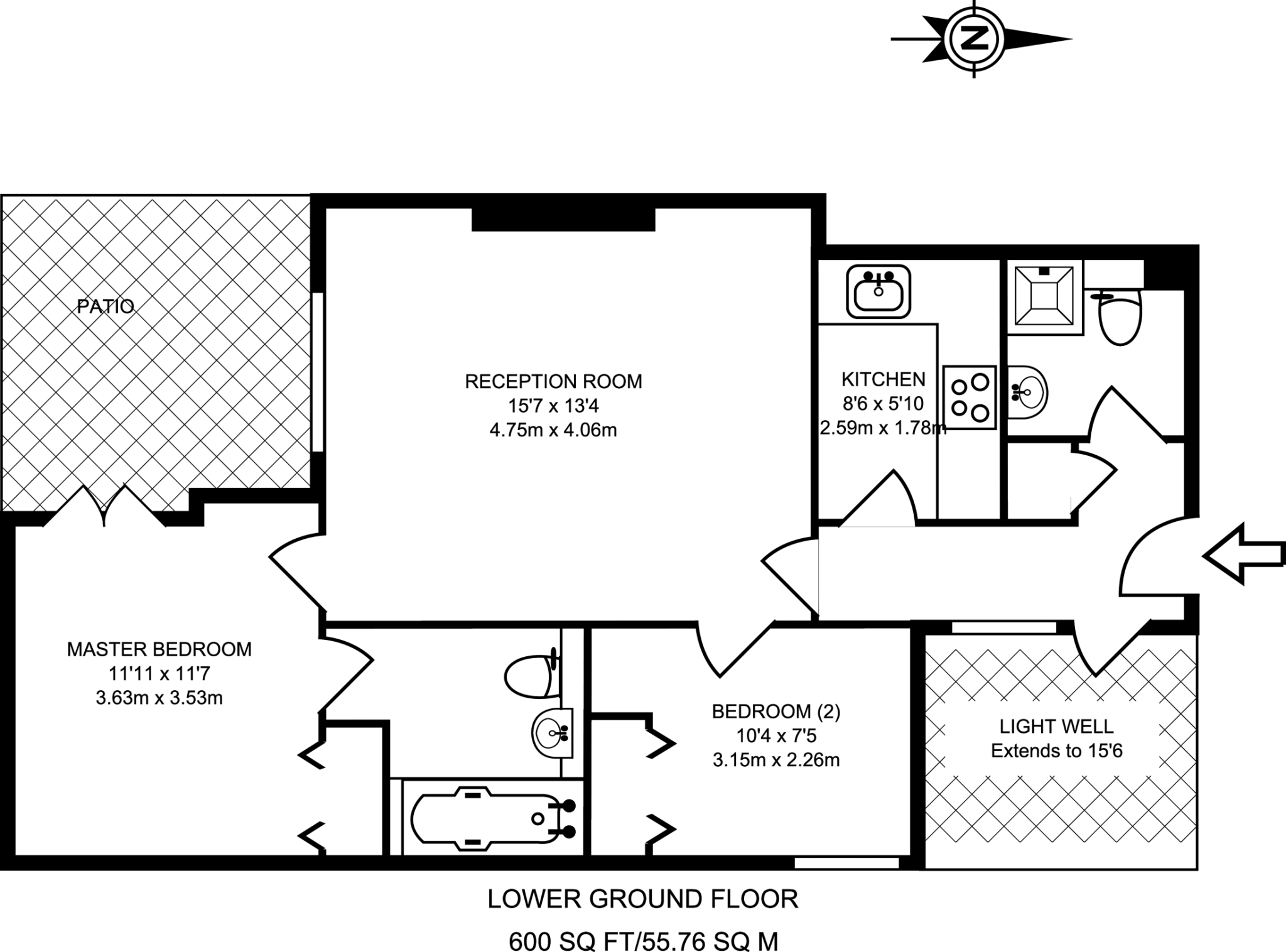
LONG LET. This recently refurbished 2 bedroom lower ground floor flat boasts neutral décor throughout and is situated within a highly sought-after area just moments from Hyde Park.
- Bedrooms
- 2
- Bathrooms
- 2
The heatmap indicates the level of crime in the area. The color of the heatmap indicates the crime severity and recency.
Metrics Year-on-Year
- Average area value
- 1,041,111.00 £Decreased by 59.16 %
- Average area rental value
- 4,620.00 £/moIncreased by 2.90 %
- Est rental Yield
- 5.33 %Increased by 152.61 %
- Crime Rate
- 4.00 %Unchanged by 0.00 %
from 2,549,369.00 £
from 4,490.00 £/mo
from 2.11 %
from 4.00 %
Agent Activity
Foxtons created the listing.
Nearby Schools
| Name | Type | Ofsted | Distance |
|---|---|---|---|
| Imperial College Of Science, Technology And Medicine | Higher Education Institutions | 0.37 KM | |
| Royal College Of Art | Higher Education Institutions | 0.42 KM | |
| Royal College Of Music | Higher Education Institutions | 0.43 KM | |
| Queen'S Gate School | Other Independent School | 0.47 KM | |
| Glendower Preparatory School | Other Independent School | 0.51 KM |
Images
Nearby Streets
| Name | Average Price | Average Sqft | Distance |
|---|---|---|---|
| Gore Street | £ 0 | 0 | 0.00 KM |
| Queen's Gate | £ 0 | 0 | 0.00 KM |
| Cromwell Road | £ 0 | 0 | 0.00 KM |
| Cromwell Mews | £ 1,397,500 | 0 | 0.00 KM |
| Bute Street | £ 4,750,000 | 0 | 0.00 KM |
Nearby Transport
| Name | NLC | TLC | Distance |
|---|---|---|---|
| Paddington | 3087 | PAD | 2.03 KM |
| West Brompton | 8875 | WBP | 2.07 KM |
| Imperial Wharf | 9586 | IMW | 2.61 KM |
| Kensington (Olympia) | 3092 | KPA | 3.28 KM |
| Marylebone | 1475 | MYB | 3.34 KM |
Nearby Listings
| Address | Price | Type | Score | Distance |
|---|---|---|---|---|
| Queens Gate Terrace, South Kensington, London, SW7 | £ 2,167 | RENT | Unknown | 0.00 KM |
| Queensgate Terrace, South Kensington, London, SW7 | £ 3,250 | RENT | Unknown | 0.00 KM |
| Elvaston Mews, London, SW7 | £ 1,300 | RENT | Unknown | 0.02 KM |
| Elvaston Mews, South Kensington, SW7 | £ 13,650 | RENT | Unknown | 0.02 KM |
| Elvaston Mews, London, SW7 | £ 1,300 | RENT | Unknown | 0.02 KM |
Nearby Properties
| Address | Price | Distance |
|---|---|---|
| 22a Elvaston Place | £ 3,350,000 | 0.03 KM |
| 31 Elvaston Place | £ 1,900,000 | 0.09 KM |
| 23a Elvaston Place | £ 5,500,000 | 0.09 KM |
| 15 Elvaston Place | £ 650,000 | 0.09 KM |
| 18a Queens Gate Terrace | £ 395,000 | 0.10 KM |