Braemar Road, London, N15
EL

Braemar Road, London, N15

By Ellis & Co

£ 625,000

Reviews

3 out of 5 stars

Ellis & Co says ..

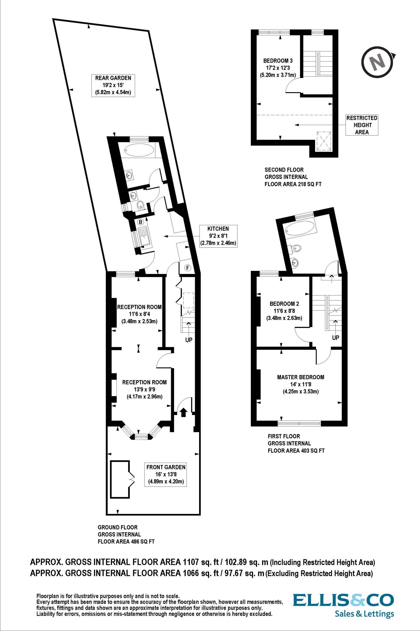
Ellis and Co. are proud to present this light-filled 3-bed, 2-bath terrace on Braemar Road with an open-plan double reception and bay window and loft bedroom.

Property Oracle says ..

This is a three-bedroom terraced house located in Tottenham Green, Haringey, London. The property offers 1,285 square feet of living space and includes two bathrooms. While the property benefits from a garden and proximity to local amenities and transport links, it requires some renovation. The property is listed at £625,000, which is below the average price for the area, making it a potentially attractive investment for buyers willing to undertake renovation work.

Therefore, we give this property 6 / 10. *Disclaimer: This is our option and does constitute a recommendation or financial advice. Do your own research. *

Price
7
Condition
5
Location
7
Land
6
Bedrooms
3
Bathrooms
2
Sqft (est)
1,285.00

The heatmap indicates the level of crime in the area. The color of the heatmap indicates the crime severity and recency.

Metrics Year-on-Year

Average area value
789,000.00 £
Increased by 13.27 %
from 696,574.00 £
Est sale value
1,493,170.00 £
Increased by 105.66 %
from 726,025.00 £
Average area rental value
2,233.00 £/mo
Increased by 4.05 %
from 2,146.00 £/mo
Est letting value
3,855.00 £/mo
Increased by 200.00 %
from 1,285.00 £/mo
Est rental Yield
3.40 %
Decreased by 8.11 %
from 3.70 %
Crime Rate
6.00 %
Unchanged by 0.00 %
from 6.00 %

Agent Activity

  • Ellis & Co created the listing.

Nearby Schools

NameTypeOfstedDistance
South Grove Children'S CentreChildren's Centre0.31 KM
Seven Sisters Primary SchoolCommunity SchoolGood0.31 KM
The Triangle CentreChildren's Centre0.48 KM
St Ann'S Ce Primary SchoolAcademy ConverterRequires improvement0.67 KM
Islamic Shakhsiyah FoundationOther Independent School0.68 KM

Images

Picture No. 13 Picture No. 16 Picture No. 14 Picture No. 28 Picture No. 19 Picture No. 31 Picture No. 34 Picture No. 25 Picture No. 20 Picture No. 12 Picture No. 30 Picture No. 29 Picture No. 32 Picture No. 18 Picture No. 26 Picture No. 04 Picture No. 22 Picture No. 17 Picture No. 35 Picture No. 05 Picture No. 09 Picture No. 11 Picture No. 23 Picture No. 27 Picture No. 15 Picture No. 33 Picture No. 21 Picture No. 36 Picture No. 07 Picture No. 06 Picture No. 03 Picture No. 08 Picture No. 10 Picture No. 02 Picture No. 37 Picture No. 38 Picture No. 24

Nearby Streets

NameAverage PriceAverage SqftDistance
Tarbert Mews £ 000.00 KM
Russell Road £ 672,50000.00 KM
Lawrence Road £ 471,87500.00 KM
Newsam Avenue £ 000.00 KM
Latimer Road £ 000.00 KM

Nearby Transport

NameNLCTLCDistance
Seven Sisters6931SVS0.48 KM
South Tottenham7404STO0.88 KM
Stamford Hill6968SMH1.02 KM
Bruce Grove6958BCV1.61 KM
Stoke Newington6934SKW2.13 KM

Nearby Listings

AddressPriceTypeScoreDistance
Braemar Road, London, N15 £ 625,000BUY6 / 100.00 KM
Seaford Road, Tottenham, London, N15 £ 725,000BUYUnknown0.07 KM
Seaford Road, London £ 775,000BUY8 / 100.08 KM
Chiltern Works, Southey Road £ 500,000BUY6 / 100.11 KM
Roslyn Road, London, N15 £ 700,000BUY6 / 100.12 KM

Nearby Properties

AddressPriceDistance
67 Braemar Road £ 86,0000.01 KM
61 Braemar Road £ 289,9500.01 KM
75 Braemar Road £ 730,5000.01 KM
52 Braemar Road £ 615,0000.06 KM
42 Braemar Road £ 172,0000.06 KM