Jenkinson Estates says ..
Jenkinson Estates are pleased to bring to the market this mid terrace home in the popular residential location in Delane Road, Deal. The property comes to the market with no onward chain complications and really must be viewed to appreciate and is situated within close proximity to local primary ...
Property Oracle says ..
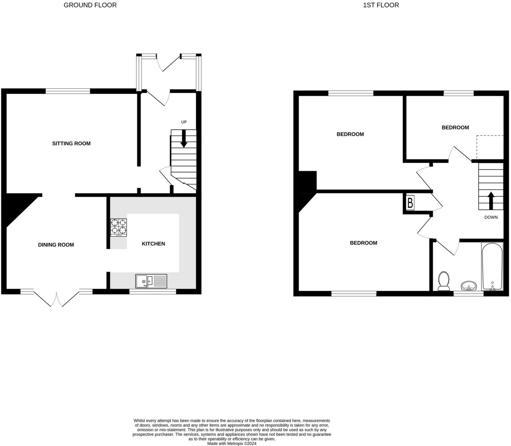
This three-bedroom terraced house in Deal, Kent, offers a convenient location and a relatively well-maintained interior. The property is situated on Delane Road in Middle Deal, benefitting from proximity to Deal train station (offering links to London and other destinations), and several well-regarded primary and secondary schools. The interior images reveal a modestly presented home that appears clean and habitable; no significant structural damage or outdated features are immediately apparent. While not lavish, the property presents comfortably and would appeal to a family or first-time buyer. The property benefits from a garden area, though its exact size is undisclosed. The garden features a greenhouse and an outbuilding providing added utility space. The house comes with a parking space immediately adjacent to the property. In terms of value, the list price seems competitive when compared with similar properties in Deal. Additional information, especially regarding plot size and the property’s energy efficiency rating, would refine the overall assessment. Overall, this property represents a suitable option for buyers seeking a comfortable family home or first-time purchase in a convenient location.
Therefore, we give this property 6 / 10. *Disclaimer: This is our option and does constitute a recommendation or financial advice. Do your own research. *
- Price
- 7
- Condition
- 6
- Location
- 7
- Land
- 5
- Bedrooms
- 3
- Bathrooms
- 1
- Sqft (est)
- 1,000.00
The heatmap indicates the level of crime in the area. The color of the heatmap indicates the crime severity and recency.
Metrics Year-on-Year
- Average area value
- 420,000.00 £Decreased by 25.30 %
- Est sale value
- 278,000.00 £Decreased by 27.23 %
- Average area rental value
- 898.00 £/moDecreased by 22.79 %
- Est letting value
- 0.00 £/mo
- Est rental Yield
- 2.57 %Increased by 3.63 %
- Crime Rate
- 15.00 %Unchanged by 0.00 %
Agent Activity
Jenkinson Estates created the listing.
Nearby Schools
| Name | Type | Ofsted | Distance |
|---|---|---|---|
| Warden House Primary School | Academy Converter | Outstanding | 0.47 KM |
| Brewood Secondary School | Other Independent Special School | Good | 0.79 KM |
| Goodwin Academy | Academy Sponsor Led | 1.16 KM | |
| Sholden Church Of England Primary School | Academy Converter | 1.23 KM | |
| Hornbeam Primary School | Academy Converter | 1.28 KM |
Images
Nearby Streets
| Name | Average Price | Average Sqft | Distance |
|---|---|---|---|
| Garden Close | £ 373,988 | 0 | 0.00 KM |
| Court Close | £ 354,625 | 0 | 0.00 KM |
| Fox Road | £ 447,500 | 0 | 0.00 KM |
| St. Leonard's Road | £ 636,100 | 0 | 0.00 KM |
| Cowper Road | £ 602,000 | 0 | 0.00 KM |
Nearby Transport
| Name | NLC | TLC | Distance |
|---|---|---|---|
| Deal | 5011 | DEA | 1.53 KM |
| Walmer | 5041 | WAM | 2.05 KM |
| Martin Mill | 5040 | MTM | 6.98 KM |
| Sandwich | 5026 | SDW | 7.14 KM |
Nearby Listings
| Address | Price | Type | Score | Distance |
|---|---|---|---|---|
| Delane Road, Deal, CT14 | £ 282,500 | BUY | 6 / 10 | 0.00 KM |
| Delane Road, Deal, CT14 9RZ | £ 285,000 | BUY | 7 / 10 | 0.04 KM |
| Delane Road, Deal | £ 280,000 | BUY | Unknown | 0.04 KM |
| Church Lane, Deal, CT14 | £ 259,950 | BUY | Unknown | 0.09 KM |
| Church Lane, Deal, Kent, CT14 | £ 250,000 | BUY | 7 / 10 | 0.10 KM |
Nearby Properties
| Address | Price | Distance |
|---|---|---|
| 14 Delane Road | £ 153,000 | 0.05 KM |
| 22 Delane Road | £ 157,000 | 0.05 KM |
| 11 Delane Road | £ 124,000 | 0.05 KM |
| 52 Delane Road | £ 162,000 | 0.05 KM |
| 50 Delane Road | £ 200,000 | 0.05 KM |