Manor Road, Stourbridge, DY8
By Select Property Management Ltd
£ 220,000
Reviews
3 out of 5 stars
Select Property Management Ltd says ..
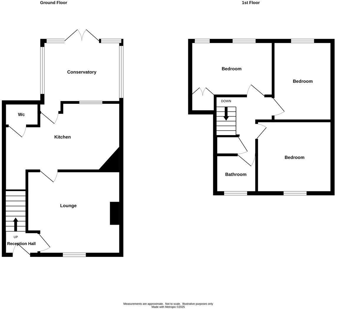
We are pleased to offer FOR SALE this THREE bedroomed house comprising of a living room, a kitchen/dining area, conservatory and WC on the ground floor. Upstairs, you'll find three good sized bedrooms and a newly updated bathroom with shower. Outside, the private, mature south facing rear gard...
Property Oracle says ..
This terraced house on Manor Road in Wordsley, Stourbridge, offers a good opportunity for buyers looking for a property with potential. The house has three bedrooms and one bathroom, with a total area of 1,192 sqft. The property includes a garden and is located in a residential area with access to local amenities and schools. While the house could benefit from some modernization, the bathroom has been recently updated. The asking price of £220,000 appears reasonable given the property’s size, location, and condition, making it a competitive option in the local market. The property is conveniently located near several schools and transportation links.
Therefore, we give this property 7 / 10. *Disclaimer: This is our option and does constitute a recommendation or financial advice. Do your own research. *
- Price
- 8
- Condition
- 6
- Location
- 7
- Land
- 7
- Bedrooms
- 3
- Bathrooms
- 1
- Sqft (est)
- 1,192.00
The heatmap indicates the level of crime in the area. The color of the heatmap indicates the crime severity and recency.
Metrics Year-on-Year
- Average area value
- 260,247.00 £Increased by 8.41 %
- Est sale value
- 306,344.00 £Increased by 7.08 %
- Average area rental value
- 1,136.00 £/moIncreased by 16.51 %
- Est letting value
- 1,192.00 £/mo
- Est rental Yield
- 5.24 %Increased by 7.60 %
- Crime Rate
- 6.00 %Unchanged by 0.00 %
Agent Activity
Select Property Management Ltd created the listing.
Nearby Schools
| Name | Type | Ofsted | Distance |
|---|---|---|---|
| Fairhaven Primary School | Community School | Requires improvement | 0.64 KM |
| Ashwood Park Primary School | Community School | Good | 0.79 KM |
| Pens Meadow School | Community Special School | Good | 0.88 KM |
| Belle Vue Primary School | Community School | Good | 1.14 KM |
| Wordsley Children'S Centre | Children's Centre | 1.14 KM |
Images
Nearby Streets
| Name | Average Price | Average Sqft | Distance |
|---|---|---|---|
| Manor Road | £ 0 | 0 | 0.00 KM |
| Church Road | £ 230,000 | 0 | 0.00 KM |
| The Haven | £ 242,950 | 0 | 0.00 KM |
| Meadowhill Drive | £ 242,500 | 0 | 0.00 KM |
| Blandford Drive | £ 300,000 | 0 | 0.00 KM |
Nearby Transport
| Name | NLC | TLC | Distance |
|---|---|---|---|
| Stourbridge Town | 4643 | SBT | 3.42 KM |
| Stourbridge Junction | 4646 | SBJ | 4.67 KM |
| Lye (West Midlands) | 4640 | LYE | 5.56 KM |
| Hagley | 4577 | HAG | 6.45 KM |
| Cradley Heath | 4639 | CRA | 8.05 KM |
Nearby Listings
| Address | Price | Type | Score | Distance |
|---|---|---|---|---|
| Manor Road, Stourbridge, DY8 | £ 220,000 | BUY | 7 / 10 | 0.00 KM |
| Mount Road, Wordsley, Stourbridge | £ 190,000 | BUY | 6 / 10 | 0.15 KM |
| Kinver Street, Wordsley, Stourbridge, West Midlands, DY8 | £ 280,000 | BUY | 7 / 10 | 0.17 KM |
| New Street, Wordsley, Stourbridge, DY8 | £ 210,000 | BUY | 7 / 10 | 0.20 KM |
| New Street, Wordsley, Stourbridge, West Midlands, DY8 | £ 230,000 | BUY | 7 / 10 | 0.22 KM |
Nearby Properties
| Address | Price | Distance |
|---|---|---|
| 4 Manor Road | £ 104,000 | 0.10 KM |
| 18 Church Road | £ 125,000 | 0.11 KM |
| 34 Church Road | £ 180,000 | 0.11 KM |
| 4 Church Road | £ 175,000 | 0.11 KM |
| 13 Church Road | £ 105,000 | 0.11 KM |