PA
School Street, Peterlee, Durham, SR8 3PR
By Pattinson Estate Agents
£ 199,999
Pattinson Estate Agents says ..
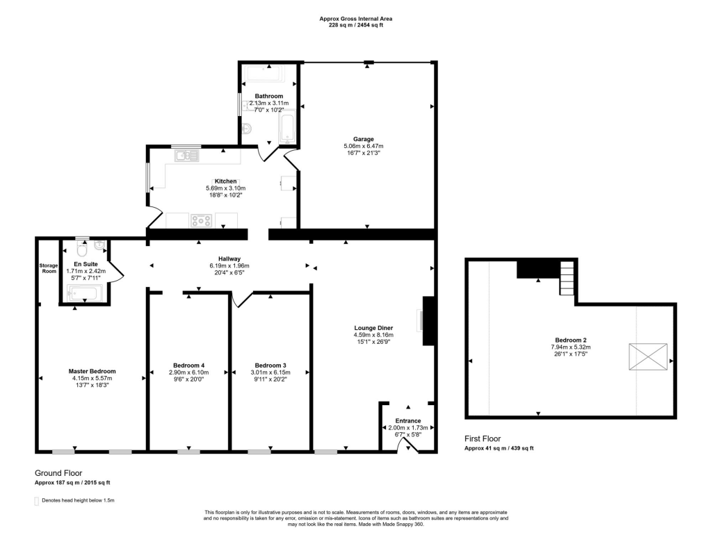
For Sale via Online Auction – No Onward Chain Spacious Three-Bedroom Bungalow with Extensive Renovations Total Floor Area: 155 sq. metres We are pleased to present this generously sized three-bedroom bungalow, offered with no onward chain and available for sale via online auction. Located in...
- Bedrooms
- 3
- Bathrooms
- 2
The heatmap indicates the level of crime in the area. The color of the heatmap indicates the crime severity and recency.
Metrics Year-on-Year
- Average area value
- 211,000.00 £Increased by 2.49 %
- Average area rental value
- 961.00 £/moDecreased by 14.43 %
- Est rental Yield
- 5.47 %Decreased by 16.49 %
- Crime Rate
- 23.00 %Unchanged by 0.00 %
from 205,865.00 £
from 1,123.00 £/mo
from 6.55 %
from 23.00 %
Agent Activity
Pattinson Estate Agents created the listing.
Nearby Schools
| Name | Type | Ofsted | Distance |
|---|---|---|---|
| Easington Colliery Primary School | Community School | Good | 0.87 KM |
| Easington Children'S Centre | Children's Centre | 0.96 KM | |
| Our Lady Star Of The Sea Roman Catholic Voluntary Aided Primary | Voluntary Aided School | Good | 1.87 KM |
| Easington Academy | Academy Converter | Good | 2.61 KM |
| Rosemary Lane Nursery School | Local Authority Nursery School | Outstanding | 2.65 KM |
Images
Nearby Streets
| Name | Average Price | Average Sqft | Distance |
|---|---|---|---|
| Thomas Street | £ 20,000 | 0 | 0.00 KM |
| James Street | £ 45,000 | 0 | 0.00 KM |
| Oak Road | £ 93,736 | 0 | 0.00 KM |
| Memorial Avenue | £ 134,995 | 0 | 0.00 KM |
| Tennyson Road | £ 350,000 | 0 | 0.00 KM |
Nearby Transport
| Name | NLC | TLC | Distance |
|---|---|---|---|
| Seaham | 7814 | SEA | 5.90 KM |
Nearby Listings
| Address | Price | Type | Score | Distance |
|---|---|---|---|---|
| School Street, Peterlee, Durham, SR8 3PR | £ 199,999 | BUY | Unknown | 0.00 KM |
| School Street, Peterlee, Durham, SR8 3PR | £ 80,000 | BUY | Unknown | 0.00 KM |
| Seaside Lane South, Peterlee, County Durham, SR8 | £ 95,000 | BUY | Unknown | 0.04 KM |
| Seaside Lane South, Easington, Peterlee, County Durham, SR8 3PN | £ 74,950 | BUY | 5 / 10 | 0.04 KM |
| 8 Vincent Street, Peterlee, County Durham, SR8 3PP | £ 10,000 | BUY | 3 / 10 | 0.10 KM |
Nearby Properties
| Address | Price | Distance |
|---|---|---|
| 12 Seaside Lane South | £ 57,850 | 0.09 KM |
| 2 Seaside Lane South | £ 69,950 | 0.09 KM |
| Bourne Holme | £ 70,000 | 0.09 KM |
| 10 Seaside Lane South | £ 71,000 | 0.09 KM |
| Parklands | £ 270,000 | 0.09 KM |