Roman Court, Bearsden

Rettie & Co says ..

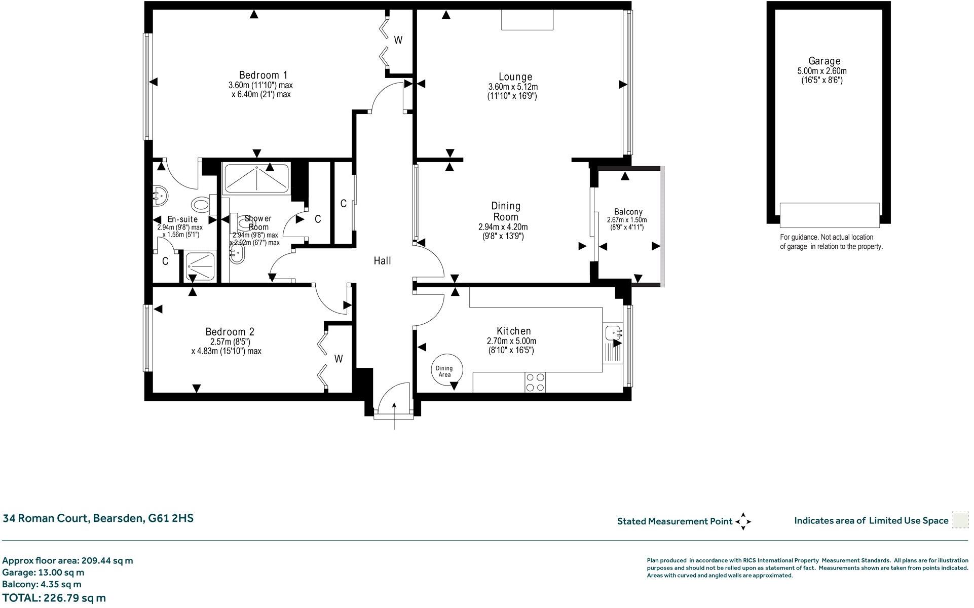
• Large two bedroomed second floor apartment • Forming part of Bearsden’s consistently popular Roman Court development • South facing balcony, lovely aspects over ancient Roman ruins • Spacious, well appointed accommodation • Large tandem garage,...

Property Oracle says ..

This two-bedroom apartment in Roman Court, Bearsden, presents a good opportunity for buyers seeking a well-located property with modern features. The interior is well-maintained, with a contemporary kitchen and bathrooms. While the building’s exterior and some internal elements could benefit from updating, the apartment offers comfortable living space and a private balcony. The location in Bearsden provides access to excellent schools, transport links, and local amenities, making it an attractive option for families and professionals. The price is competitive for the area, reflecting the property’s condition and location.

Therefore, we give this property 6 / 10. *Disclaimer: This is our option and does constitute a recommendation or financial advice. Do your own research. *

Price
7
Condition
7
Location
7
Land
4
Bedrooms
2
Bathrooms
2

The heatmap indicates the level of crime in the area. The color of the heatmap indicates the crime severity and recency.

Metrics Year-on-Year

Average area value
512,500.00 £
Increased by 58.76 %
from 322,824.00 £
Average area rental value
1,100.00 £/mo
Decreased by 47.62 %
from 2,100.00 £/mo
Est rental Yield
2.58 %
Decreased by 66.97 %
from 7.81 %
Crime Rate
0.00 %
from 0.00 %

Agent Activity

  • Rettie & Co created the listing.

Images

Picture 1 Picture 2 Picture 3 Picture 4 Picture 5 Picture 6 Picture 7 Picture 8 Picture 9 Picture 10 Picture 11 Picture 12 Picture 13 Picture 14 Picture 15 Picture 16 Picture 17 Picture 18 Picture 19 Picture 20 Picture 21 Picture 22 Picture 23 Picture 24 Picture 25 Picture 26 Picture 27 Picture 28

Nearby Streets

NameAverage PriceAverage SqftDistance
Manse Road Gardens £ 440,00000.00 KM
Grange Road £ 000.00 KM
Roman Court £ 272,50000.00 KM
Roman Road £ 795,00000.00 KM
West Chapelton Crescent £ 379,33300.00 KM

Nearby Transport

NameNLCTLCDistance
Bearsden9966BRN0.55 KM
Hillfoot9983HLF0.86 KM
Westerton9998WES1.86 KM
Milngavie9985MLN2.79 KM
Anniesland9972ANL3.48 KM

Nearby Listings

AddressPriceTypeScoreDistance
Roman Court, Bearsden £ 285,000BUY6 / 100.00 KM
77 Roman Court, Bearsden, G61 2NW £ 285,000BUYUnknown0.00 KM
Grange Road, Heaton Grange £ 240,000BUY6 / 100.09 KM
53 Roman Court, Bearsden, G61 2NW £ 280,000BUY5 / 100.18 KM
69 Roman Court, Bearsden, G61 2NW £ 295,000BUYUnknown0.20 KM