Vivian Avenue, Wembley, HA9
EL

Vivian Avenue, Wembley, HA9

By Ellis & Co

£ 650,000

Reviews

2 out of 5 stars

Ellis & Co says ..

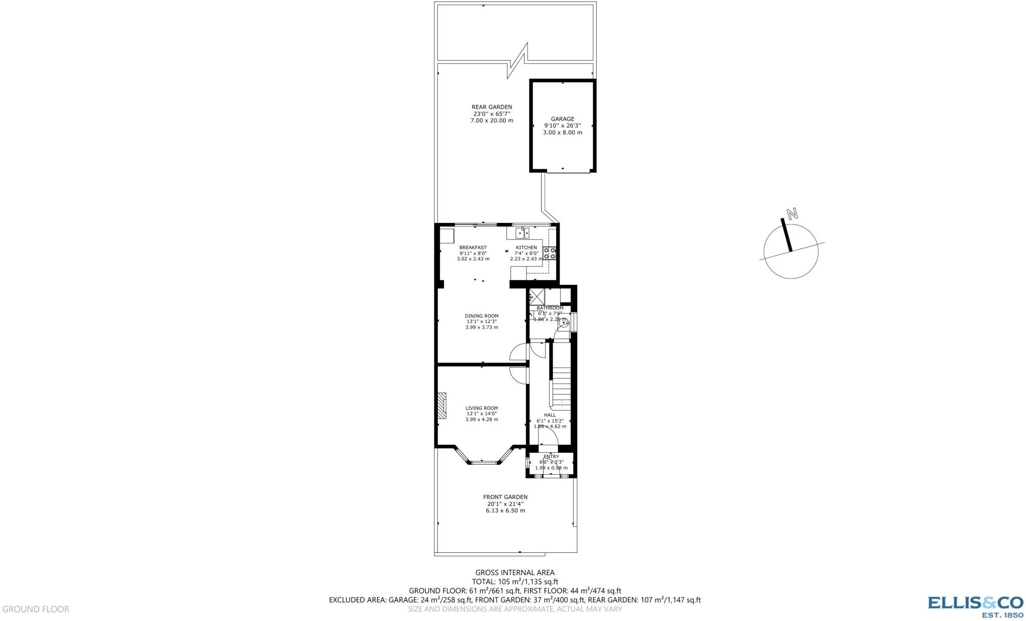
**Stunning Semi-Detached Family Home in Prime Location** Introducing this beautiful 3-bedroom semi-detached house, perfect for families seeking a peaceful and modern living space. Situated in a prime location, this property boasts a spacious 1,135 sq ft of living space, ideal for comfo...

Property Oracle says ..

This three-bedroom semi-detached house in Wembley, HA9 is listed at £650,000. The property benefits from a good location, relatively close to public transport links and schools. However, the property is in need of modernisation and some repairs. The kitchen and bathrooms appear dated and require updating. The garden is a decent size and includes a garage. Compared to the average price per sqft in the area (£533), the list price seems slightly high considering the condition of the property. The average house price in the area is £518,580, and while this property is larger than average at 1130 sqft (compared to the average of 972 sqft), the condition may affect its final sale price. Nearby comparable properties show a range of prices, some higher and some lower than the asking price, making a definitive statement on value difficult without a full survey.

Therefore, we give this property 5 / 10. *Disclaimer: This is our option and does constitute a recommendation or financial advice. Do your own research. *

Price
6
Condition
4
Location
7
Land
6
Bedrooms
3
Bathrooms
2
Sqft (est)
1,130.21

The heatmap indicates the level of crime in the area. The color of the heatmap indicates the crime severity and recency.

Metrics Year-on-Year

Average area value
567,500.00 £
Increased by 23.85 %
from 458,232.00 £
Est sale value
1,218,366.38 £
Increased by 96.72 %
from 619,355.08 £
Average area rental value
2,508.00 £/mo
Increased by 2.66 %
from 2,443.00 £/mo
Est letting value
4,520.84 £/mo
Increased by 100.00 %
from 2,260.42 £/mo
Est rental Yield
5.30 %
Decreased by 17.19 %
from 6.40 %
Crime Rate
5.00 %
Unchanged by 0.00 %
from 5.00 %

Agent Activity

  • Ellis & Co created the listing.

Nearby Schools

NameTypeOfstedDistance
Oakington Manor Primary SchoolAcademy Converter0.31 KM
St Raphaels Children'S CentreChildren's Centre0.54 KM
Brentfield Primary SchoolCommunity SchoolGood1.06 KM
Phoenix Arch SchoolCommunity Special SchoolGood1.12 KM
Edith Kay Independent SchoolOther Independent Special SchoolGood1.15 KM

Images

Picture No. 44 Picture No. 17 Picture No. 18 Picture No. 22 Picture No. 30 Picture No. 26 Picture No. 31 Picture No. 32 Picture No. 33 Picture No. 20 Picture No. 38 Picture No. 34 Picture No. 36 Picture No. 37 Picture No. 50 Picture No. 40 Picture No. 49 Picture No. 47 Picture No. 43 Picture No. 51

Nearby Streets

NameAverage PriceAverage SqftDistance
Macarthur Close £ 000.00 KM
Overton Close £ 000.00 KM
Derek Avenue £ 000.00 KM
James Dudson Court £ 375,00000.00 KM
Russell Close £ 000.00 KM

Nearby Transport

NameNLCTLCDistance
Stonebridge Park1454SBP0.73 KM
Wembley Stadium1509WCX1.59 KM
Harlesden1521HDN2.18 KM
Wembley Central1423WMB2.71 KM
Willesden Junction1457WIJ3.59 KM

Nearby Listings

AddressPriceTypeScoreDistance
Vivian Avenue, Wembley, HA9 £ 650,000BUY5 / 100.00 KM
Wembley Way, London, HA9 6 £ 850,000BUY5 / 100.08 KM
West End Close, London, NW10 £ 375,000BUY6 / 100.14 KM
Chalfont Avenue, Wembley, HA9 £ 650,000BUY7 / 100.14 KM
Chalfont Avenue, Wembley £ 800,000BUY5 / 100.14 KM

Nearby Properties

AddressPriceDistance
166 Vivian Avenue £ 660,0000.00 KM
164 Vivian Avenue £ 315,0000.00 KM
146 Vivian Avenue £ 164,0000.00 KM
27 Wembley Way £ 250,0000.06 KM
1 Wembley Way £ 250,0000.06 KM