Chancellors says ..
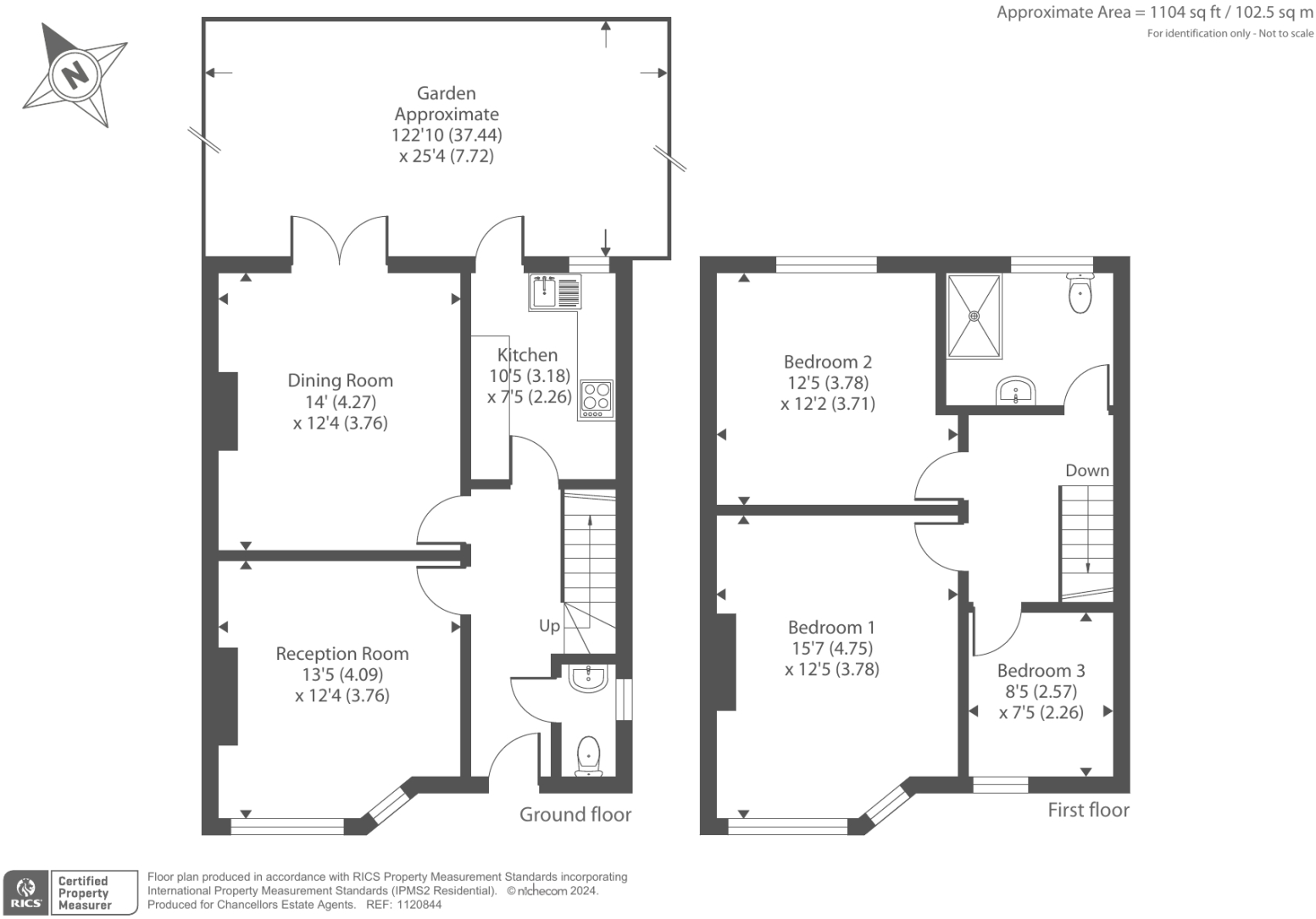
Family home situated on a large plot offering ample accommodation and parking. Property is comprised of three bedrooms, two reception rooms, a ground floor w/c and studio annexe. Offered with no onward chain.
Property Oracle says ..
This three-bedroom, two-bathroom property in Cowley, East Oxford, presents a mixed bag. The location is a definite plus, with good schools in close proximity. Transportation links are also within a reasonable distance, although details are limited. However, the property’s condition is a mixed bag. While the bathroom is relatively modern, several rooms require some level of renovation or updating to meet modern standards (kitchen, cosmetic upgrades to the living space are suggested). The property also includes a garden, though it appears somewhat overgrown and could use landscaping to reach its full potential. Given the list price, the property’s valuation should be considered taking into account the potential costs of needed improvements. The property could be suitable for first-time buyers or those willing to undertake some renovation projects. Further investigation into the specifics of the plot size and exact distances to essential amenities would be necessary for a more thorough and accurate appraisal.
Therefore, we give this property 6 / 10. *Disclaimer: This is our option and does constitute a recommendation or financial advice. Do your own research. *
- Price
- 7
- Condition
- 6
- Location
- 7
- Land
- 4
- Bedrooms
- 3
- Bathrooms
- 2
- Sqft (est)
- 1,103.30
The heatmap indicates the level of crime in the area. The color of the heatmap indicates the crime severity and recency.
Metrics Year-on-Year
- Average area value
- 312,500.00 £Decreased by 31.71 %
- Est sale value
- 806,512.30 £Increased by 36.13 %
- Average area rental value
- 1,568.00 £/moDecreased by 14.08 %
- Est letting value
- 3,309.90 £/moIncreased by 50.00 %
- Est rental Yield
- 6.02 %Increased by 25.68 %
- Crime Rate
- 9.00 %Unchanged by 0.00 %
Agent Activity
Chancellors marked this listing as sold.
Chancellors created the listing.
Nearby Schools
| Name | Type | Ofsted | Distance |
|---|---|---|---|
| St Christopher'S Church Of England School, Cowley | Academy Sponsor Led | Good | 0.18 KM |
| Our Lady'S Roman Catholic Primary School | Academy Converter | Good | 0.29 KM |
| Kings Education (Oxford) | Other Independent School | Good | 0.41 KM |
| Tyndale Community School | Free Schools | Good | 0.75 KM |
| Church Cowley St James Church Of England Primary School | Voluntary Controlled School | Good | 0.76 KM |
Images
Nearby Streets
| Name | Average Price | Average Sqft | Distance |
|---|---|---|---|
| Littlehay Road | £ 0 | 0 | 0.00 KM |
| William Morris Close | £ 372,500 | 0 | 0.00 KM |
| Chancellor's Court | £ 0 | 0 | 0.00 KM |
| St James Place | £ 350,000 | 0 | 0.00 KM |
| Mayfair Road | £ 0 | 0 | 0.00 KM |
Nearby Transport
| Name | NLC | TLC | Distance |
|---|---|---|---|
| Radley | 3118 | RAD | 6.16 KM |
| Oxford | 3115 | OXF | 6.55 KM |
| Culham | 3107 | CUM | 9.36 KM |
Nearby Listings
| Address | Price | Type | Score | Distance |
|---|---|---|---|---|
| Cowley, East Oxford, OX4 | £ 475,000 | BUY | 6 / 10 | 0.00 KM |
| Temple Cowley, Oxford, OX4 | £ 280,000 | BUY | 6 / 10 | 0.11 KM |
| Cowley, Oxfordshire, OX4 | £ 280,000 | BUY | Unknown | 0.11 KM |
| Gerard Place, Oxford, OX4 | £ 465,000 | BUY | 6 / 10 | 0.13 KM |
| East Oxford, Oxford, OX4 | £ 230,000 | BUY | 7 / 10 | 0.16 KM |
Nearby Properties
| Address | Price | Distance |
|---|---|---|
| 151 Oxford Road | £ 250,000 | 0.11 KM |
| 165 Oxford Road | £ 217,000 | 0.11 KM |
| 149 Oxford Road | £ 290,000 | 0.11 KM |
| 157 Oxford Road | £ 480,000 | 0.11 KM |
| 143 Oxford Road | £ 346,000 | 0.11 KM |