Trinity Road, Limbury, Luton, Beds, LU3 1TP
By Indigo Land & New Homes
£ 950,000
Reviews
3 out of 5 stars
Indigo Land & New Homes says ..
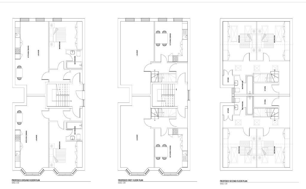
Large family home with Development Opportunity, 4 bedroom detached with planning permission for 4 flats and 2 semi detached houses, large plot with secluded entrance.
Property Oracle says ..
This property in Limbury, Luton presents a compelling investment opportunity, primarily due to its substantial plot size and approved planning permission for additional housing units. The existing four-bedroom house, while appearing reasonably well-maintained, offers scope for modernization or significant refurbishment if desired.
The location in Limbury offers convenient access to schools that consistently receive good Ofsted ratings and several transport links, increasing its appeal. The surrounding area shows evidence of an increase in property values as shown through the sale of nearby properties, which is a positive indicator. The relatively large garden is a desirable feature, providing ample space, although it currently looks to be in need of some maintenance.
The significant aspect that influences the overall assessment is the development potential. The approved plans for new houses and flats substantially increase the property’s value beyond that of a standard residential dwelling, albeit at a potentially risky investment in the market. This development potential should attract developers or investors who want a ready to develop property. A comprehensive review would involve a detailed valuation of the existing structure and land, factored alongside the potential revenue from the new builds, to fully ascertain the overall investment viability. The lack of precise square footage data hinders a full market value assessment that solely relies on the property itself.
Therefore, we give this property 7 / 10. *Disclaimer: This is our option and does constitute a recommendation or financial advice. Do your own research. *
- Price
- 7
- Condition
- 6
- Location
- 7
- Land
- 8
- Bedrooms
- 4
- Bathrooms
- 2
The heatmap indicates the level of crime in the area. The color of the heatmap indicates the crime severity and recency.
Metrics Year-on-Year
- Average area value
- 350,000.00 £Increased by 5.06 %
- Average area rental value
- 1,400.00 £/moDecreased by 10.43 %
- Est rental Yield
- 4.80 %Decreased by 14.74 %
- Crime Rate
- 5.00 %Unchanged by 0.00 %
Agent Activity
Indigo Land & New Homes created the listing.
Nearby Schools
| Name | Type | Ofsted | Distance |
|---|---|---|---|
| Icknield Primary School | Community School | Good | 0.57 KM |
| St Joseph'S Catholic Primary School | Voluntary Aided School | Good | 0.71 KM |
| Flying Start North Children'S Centre | Children's Centre | 0.77 KM | |
| William Austin Junior School | Community School | Good | 0.96 KM |
| Jamiatul Uloom Al - Islamia | Other Independent School | Good | 1.00 KM |
Images
Nearby Streets
| Name | Average Price | Average Sqft | Distance |
|---|---|---|---|
| Almond Close | £ 0 | 0 | 0.00 KM |
| All Saints Close | £ 300,000 | 0 | 0.00 KM |
| Garden Court | £ 130,000 | 0 | 0.00 KM |
| Galliard Close | £ 395,000 | 0 | 0.00 KM |
| Fallowfield | £ 456,250 | 0 | 0.00 KM |
Nearby Transport
| Name | NLC | TLC | Distance |
|---|---|---|---|
| Leagrave | 1534 | LEA | 2.26 KM |
| Luton | 1536 | LUT | 3.59 KM |
| Luton Airport Parkway | 3645 | LTN | 5.84 KM |
| Harlington (Bedfordshire) | 1533 | HLN | 9.08 KM |
Nearby Listings
| Address | Price | Type | Score | Distance |
|---|---|---|---|---|
| Trinity Road, Limbury, Luton, Beds, LU3 1TP | £ 950,000 | BUY | 7 / 10 | 0.00 KM |
| Almond Close, Luton | £ 400,000 | BUY | 6 / 10 | 0.05 KM |
| Lonsdale Close, Icknield, Luton, Bedfordshire, LU3 2ND | £ 650,000 | BUY | 7 / 10 | 0.06 KM |
| Almond Close, Luton, Bedfordshire, LU3 | £ 398,000 | BUY | 6 / 10 | 0.06 KM |
| Trinity Road, Luton, Bedfordshire, LU3 | £ 280,000 | BUY | 5 / 10 | 0.07 KM |
Nearby Properties
| Address | Price | Distance |
|---|---|---|
| 4 Almond Close | £ 311,000 | 0.05 KM |
| 3 Almond Close | £ 240,000 | 0.05 KM |
| 13 Trinity Road | £ 205,000 | 0.08 KM |
| 19 Trinity Road | £ 134,301 | 0.08 KM |
| 5 Trinity Road | £ 240,000 | 0.08 KM |