Brimley Road, Bovey Tracey, TQ13
By Chamberlains
£ 300,000
Reviews
3 out of 5 stars
Chamberlains says ..
Situated within an exclusive development of just five spacious apartments in the highly sought-after area of Brimley, Bovey Tracey, this property offers a blend of luxury and elegance.
Property Oracle says ..
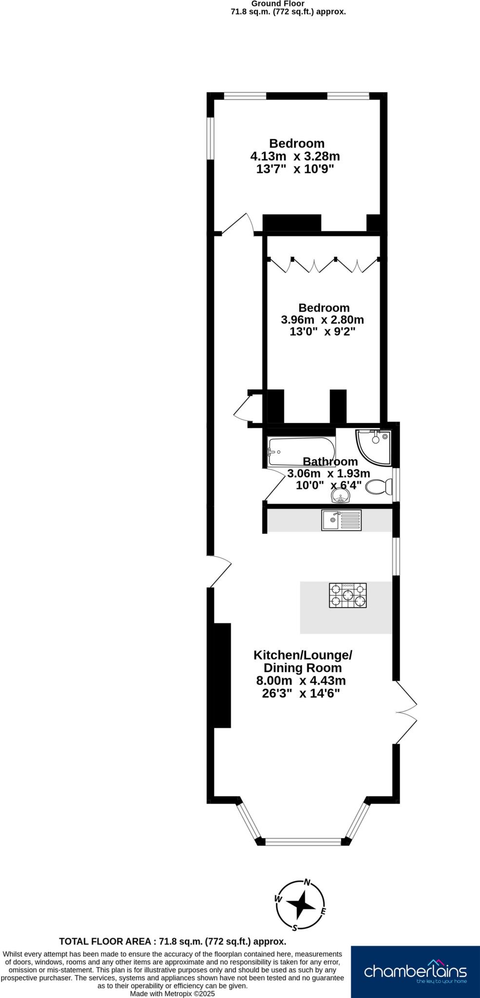
This ground floor flat in Bovey Tracey presents a good opportunity for buyers seeking a well-maintained property in a desirable location. The modern interiors and garden space enhance its appeal, while the reasonable price makes it a competitive option in the local market. While some nearby schools require improvement, the overall location offers a good quality of life with access to amenities and the surrounding countryside. The property is a modern apartment and appears to be in good condition.
Therefore, we give this property 7 / 10. *Disclaimer: This is our option and does constitute a recommendation or financial advice. Do your own research. *
- Price
- 7
- Condition
- 8
- Location
- 7
- Land
- 6
- Bedrooms
- 2
- Bathrooms
- 1
The heatmap indicates the level of crime in the area. The color of the heatmap indicates the crime severity and recency.
Metrics Year-on-Year
- Average area value
- 372,222.00 £Decreased by 5.24 %
- Average area rental value
- 1,495.00 £/moIncreased by 30.11 %
- Est rental Yield
- 4.82 %Increased by 37.32 %
- Crime Rate
- 3.00 %Unchanged by 0.00 %
Agent Activity
Chamberlains created the listing.
Nearby Schools
| Name | Type | Ofsted | Distance |
|---|---|---|---|
| Bovey Tracey Primary School | Community School | Requires improvement | 1.88 KM |
| Ilsington Church Of England Primary School | Academy Converter | Good | 3.28 KM |
| Blackpool Church Of England Primary School | Academy Converter | Outstanding | 3.37 KM |
| The Greater Horseshoe School | Other Independent Special School | Good | 3.93 KM |
| St Catherine'S Cofe Primary School | Voluntary Aided School | Good | 3.95 KM |
Images
Nearby Streets
| Name | Average Price | Average Sqft | Distance |
|---|---|---|---|
| Moor Lane | £ 0 | 0 | 0.00 KM |
| Rose Cottages | £ 0 | 0 | 0.00 KM |
| Salder Green | £ 0 | 0 | 0.00 KM |
| Wood Close | £ 0 | 0 | 0.00 KM |
| Kiln Road | £ 345,000 | 0 | 0.00 KM |
Nearby Listings
| Address | Price | Type | Score | Distance |
|---|---|---|---|---|
| Brimley Road, Bovey Tracey, TQ13 | £ 300,000 | BUY | 6 / 10 | 0.00 KM |
| Brimley Road, Bovey Tracey, TQ13 | £ 300,000 | BUY | 7 / 10 | 0.00 KM |
| Brimley Court, Brimley Road, TQ13 | £ 335,000 | BUY | 7 / 10 | 0.10 KM |
| Brimley Grange, Bovey Tracey | £ 860,000 | BUY | 7 / 10 | 0.16 KM |
| Brimley Road, Bovey Tracey | £ 285,000 | BUY | 7 / 10 | 0.18 KM |
Nearby Properties
| Address | Price | Distance |
|---|---|---|
| 11 Chapple Cross | £ 320,000 | 0.12 KM |
| 7 Chapple Cross | £ 375,000 | 0.12 KM |
| 3 Chapple Cross | £ 290,000 | 0.12 KM |
| 1 Chapple Cross | £ 450,000 | 0.12 KM |
| Brambles | £ 355,000 | 0.22 KM |