Tiverton Square, Sunderland, SR3
By McGowan Housing
£ 100,000
Reviews
3 out of 5 stars
McGowan Housing says ..
Buy-to-Let Opportunity | Tenants Currently Situated | 3 bedroom Semi-Detached House | Spacious Lounge | On-Street Parking | Private Rear Garden | Easy Access to Local Amenities | Prime Rental Location- Sunderland
Property Oracle says ..
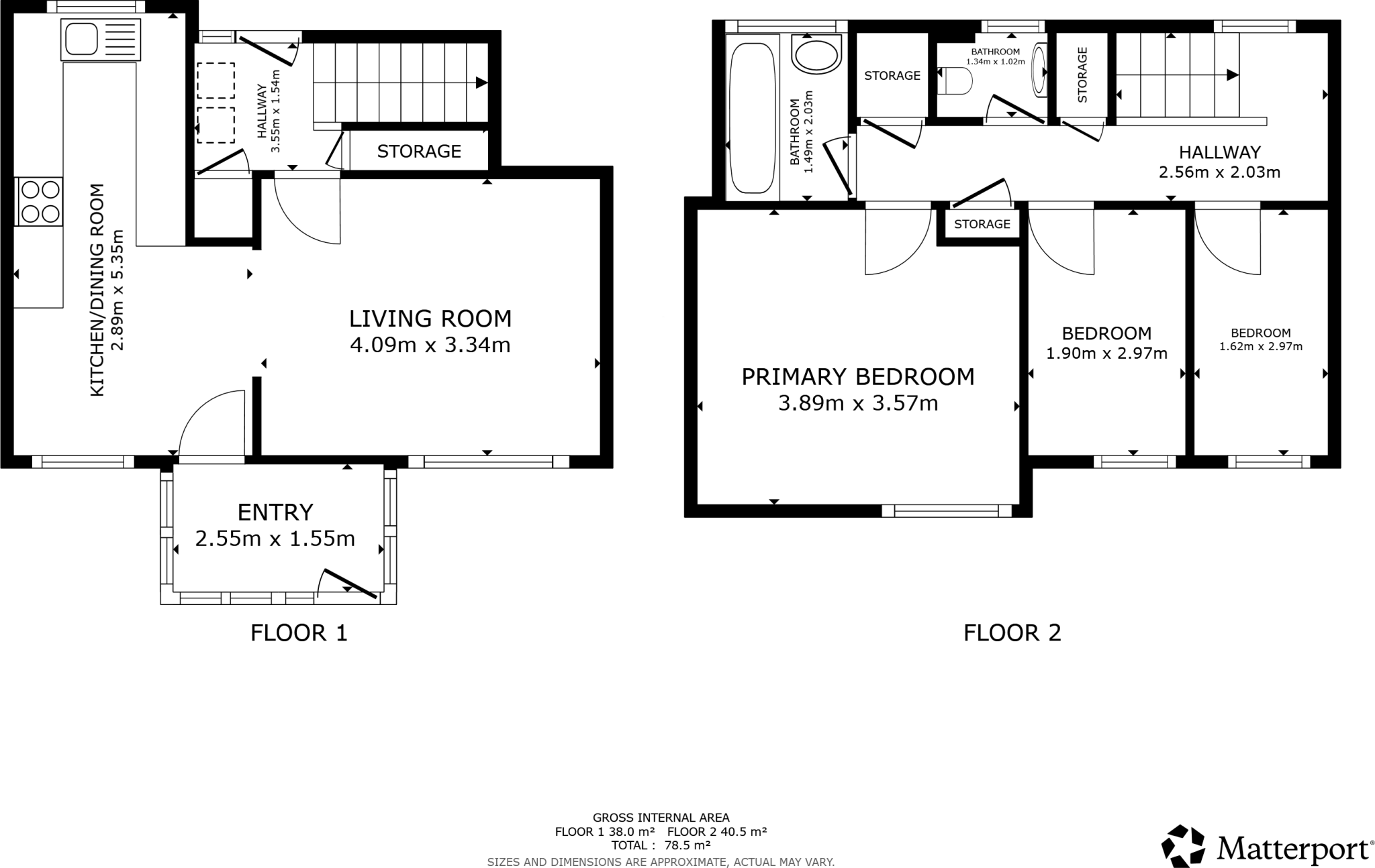
This is a 3-bedroom semi-detached house located in Sunderland. The property has 2 bathrooms and a garden. While some areas have been modernised, other parts of the house could benefit from renovation. The property is located near schools and is a fair distance from the train station. The asking price of £100,000 appears to be good value compared to similar properties in the area.
Therefore, we give this property 6 / 10. *Disclaimer: This is our option and does constitute a recommendation or financial advice. Do your own research. *
- Price
- 8
- Condition
- 5
- Location
- 6
- Land
- 6
- Bedrooms
- 3
- Bathrooms
- 2
- Sqft (est)
- 703.20
The heatmap indicates the level of crime in the area. The color of the heatmap indicates the crime severity and recency.
Metrics Year-on-Year
- Average area value
- 124,985.00 £Increased by 9.26 %
- Est sale value
- 142,046.40 £Increased by 81.98 %
- Average area rental value
- 625.00 £/moDecreased by 20.18 %
- Est letting value
- 703.20 £/mo
- Est rental Yield
- 6.00 %Decreased by 26.92 %
- Crime Rate
- 14.00 %Unchanged by 0.00 %
Agent Activity
McGowan Housing created the listing.
Nearby Schools
| Name | Type | Ofsted | Distance |
|---|---|---|---|
| Hasting Hill Academy | Academy Sponsor Led | Good | 0.45 KM |
| Sunderland Children'S Centre West | Children's Centre | 0.68 KM | |
| Sandhill View Academy | Academy Sponsor Led | Good | 1.16 KM |
| Grindon Infant School | Community School | Good | 1.19 KM |
| Thorney Close Primary School | Community School | Good | 1.24 KM |
Images
Nearby Streets
| Name | Average Price | Average Sqft | Distance |
|---|---|---|---|
| Tay Road | £ 0 | 0 | 0.00 KM |
| Tuscan Road | £ 75,000 | 0 | 0.00 KM |
| Thorne Road | £ 0 | 0 | 0.00 KM |
| Tintagel Close | £ 105,830 | 0 | 0.00 KM |
| Teddington Road | £ 0 | 0 | 0.00 KM |
Nearby Transport
| Name | NLC | TLC | Distance |
|---|---|---|---|
| Sunderland | 7640 | SUN | 6.70 KM |
Nearby Listings
| Address | Price | Type | Score | Distance |
|---|---|---|---|---|
| Tiverton Square, Sunderland, SR3 | £ 100,000 | BUY | 6 / 10 | 0.00 KM |
| Tadcaster Road, Thorney Close, Sunderlandm SR3 | £ 129,950 | BUY | 6 / 10 | 0.17 KM |
| Tadcaster Road, Sunderland, SR3 | £ 110,000 | BUY | 7 / 10 | 0.21 KM |
| Tay Road, Thorney Close, Sunderland | £ 129,995 | BUY | 6 / 10 | 0.23 KM |
| Thorpeness Road, Sunderland SR3 | £ 134,995 | BUY | 7 / 10 | 0.24 KM |
Nearby Properties
| Address | Price | Distance |
|---|---|---|
| 15 Tiverton Square | £ 85,000 | 0.00 KM |
| 22 Tiverton Square | £ 97,000 | 0.02 KM |
| 4 Tamworth Square | £ 55,000 | 0.10 KM |
| 130 Tadcaster Road | £ 69,500 | 0.12 KM |
| 82 Tadcaster Road | £ 67,000 | 0.14 KM |